查看完整案例


收藏

下载
《茶经》是唐代陆羽所著,是中国乃至世界上现存最早、最完整、最全面的茶学专著,被誉为“茶叶百科全书”。
《茶经》开篇第一句:
茶者,南方之嘉木也。
品茶谈工作已经很普遍
茶楼的设计也越来越风格多样
今日分享木色纯净感觉的茶楼设计
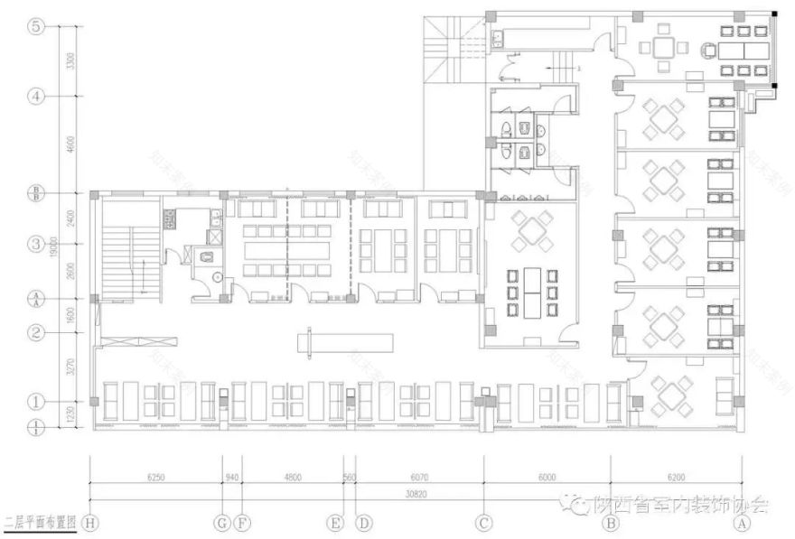
效果图及平面图:
设计说明:
设计定位:禅中(禅意中式)------浅墨入画、禅意入境。
设计思路:化繁为简、返璞归真。
精神感受:
《茗悦天下》 应情
耕烟处存身,茗悦里品茶。
水墨间养志,琴声外天下。
《茗悦天下》 应景
耕烟处水墨间,茗悦里一盏茶。
静听琴声悠悠,待品香茗天下。
“老板电器杯”陕西省第十届室内设计大赛获奖作品
作品类别:公共空间方案类
获奖奖项:铜 奖
项目名称:茗悦天下茶楼
设 计 师:沈 峰
lotus
参赛单位:陕西创建建筑装饰工程有限公司
项目地点:位于陕西咸阳清泰街
设计面积:600平米
主要用材: 特伦灰大理石瓷砖、木地板、橡木、硅藻泥、壁布
主创设计师 沈 峰
参赛图版
大赛简介
陕西省室内设计大赛是陕西室内装饰协会常设的一项专业性设计大赛,是陕西省室内装饰行业的最具有权威性、专业性和影响力的设计大赛,受到了全行业高度关注和社会各界广泛参与。大赛在推出设计新锐和精英、扩大设计团队及个人的公众认知度、加强“设计创新”等方面获得极大的社会影响;获奖团队和个人作品带来“设计驱动”,在创意设计、室内装饰、关联产业等领域取得了显著成效。该赛事进一步提高了我省室内设计水平,推动了全行业和相关产业的创新发展。
2018年陕西省第十届室内设计大赛,由“老板电器”独家冠名赞助。
陕西省室内装饰协会家装专业委员会
地址:大明宫建材家居·钻石店
- END
-
客服
消息
收藏
下载
最近












