查看完整案例


收藏

下载
“悲观者往往正确,但乐观者往往成功。
这亦是我爱这个时代的原因。
2019年竟然已经过去100多天了,
这意味着今年只剩下三分之二了。
过去的这些天里,
我们看到了很多指数正在恢复生机;
我们看到了机场的深夜
依然人来人往,从未停歇;
我们看到了人们从狂热回归理智;
我们看到大量企业的资产负债表正在修复;
我们看到了各行各业都涌现了全新的创业机会。
归根结底,
是中国有全世界最多的渴望改变命运的人。”
今日分享酒店空间设计
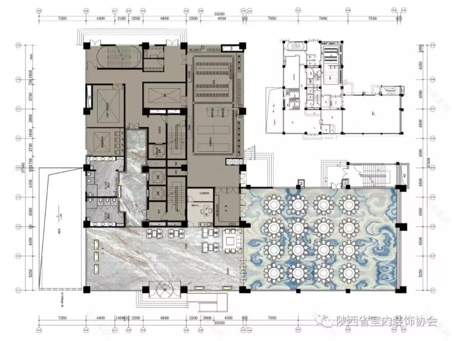
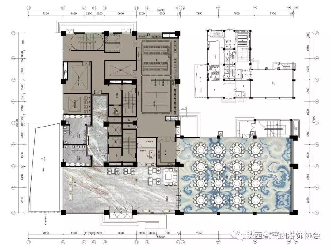
效果图及平面图:
设计理念:
该星级酒店装修风格时尚,格调高雅。拥有豪华套房,单人间,双人标准间,商务间,大堂,接待区,休息区,服务台,公共卫生间等。各个区域通过各类形式的造型将空间进行组合。这样不仅可以增加装饰面,而且又能很好的划分区域,给客人留下有相对大气的空间直觉感,彰显大厅的大气与舒适感
“老板电器杯”陕西省第十届室内设计大赛获奖作品
作品类别:公共空间方案类
获奖奖项:银 奖
项目名称:贵州省六盘水凉都县凉都酒店
设计团队:韩永红
许 晶 韩庆文 赵 毅
参赛单位:陕西选择建筑设计有限公司
项目地点:
贵州省六盘水市凉都县
项目面积:
12600平米
主要用材:
金属隔断、石材、布艺硬包、皮革硬包、木饰面
完成时间:
2017年8月
主创设计师 韩永红
参赛图版
大赛简介
陕西省室内设计大赛是陕西室内装饰协会常设的一项专业性设计大赛,是陕西省室内装饰行业的最具有权威性、专业性和影响力的设计大赛,受到了全行业高度关注和社会各界广泛参与。大赛在推出设计新锐和精英、扩大设计团队及个人的公众认知度、加强“设计创新”等方面获得极大的社会影响;获奖团队和个人作品带来“设计驱动”,在创意设计、室内装饰、关联产业等领域取得了显著成效。该赛事进一步提高了我省室内设计水平,推动了全行业和相关产业的创新发展。
2018年陕西省第十届室内设计大赛,由“老板电器”独家冠名赞助。
陕西省室内装饰协会家装专业委员会
地址:大明宫建材家居·钻石店
- END
-
客服
消息
收藏
下载
最近
































