查看完整案例


收藏

下载
5.1假期刚过
5月也是装修的好季节
一个温暖的家
将会是消解疲惫的最好场所
家装委平台与大家分享
家系列
的设计案例
有家
有爱
今日分享现代简约风格住宅设计
现代简约风格是以简约为主的装修风格。 在建筑装饰上提倡简约,简约风格的特色是将设计的元素、色彩、照明、原材料简化到最少的程度,但对色彩、材料的质感要求很高。
现代简约风格
The Modern Concise Style
起源
20世纪初期的西方现代主义
特色
对色彩、材料的质感要求很高
源于
包豪斯学派
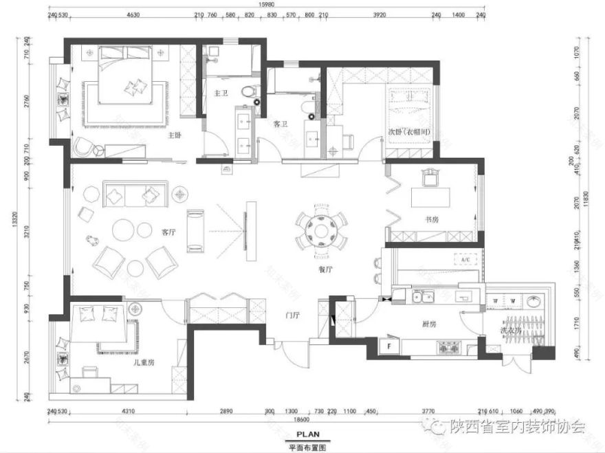
效果图及平面图:
设计理念:
本案以简洁的表现形式来满足人们对空间环境那种感性的、本能的和理性的需求,这是当今国际社会流行的设计风格——简洁明快的简约主义。
现代设计追求的是空间的实用性和灵活性,居室空间是根据相互间的功能关系组合而成的,而且功能空间相互渗透,空间的利用率达到最高。空间组织不再是以房间组合为主,空间的划分也不再局限于硬质墙体,而是更注重会客、餐饮、学习、睡眠等功能空间的逻辑关系。
“老板电器杯”陕西省第十届室内设计大赛获奖作品
作品类别:公共空间方案类
获奖奖项:银 奖
项目名称:逸翠园三
设计团队:谭 巍
张燕军
参赛单位:陕西品景行设计装饰工程有限公司
项目时间:
2018年4月
项目地点:
陕西西安
项目面积:
190㎡
项目风格:
现代简约
主要材质:
仿大理石瓷砖 仿木地板瓷砖 艺术涂料 爵士白大理石
主创设计师 谭 巍
点击下方蓝字,了解更多设计师信息:
设计师崔 巍500平米中医馆:木质出色,自然成彩
参赛图版
大赛简介
陕西省室内设计大赛是陕西室内装饰协会常设的一项专业性设计大赛,是陕西省室内装饰行业的最具有权威性、专业性和影响力的设计大赛,受到了全行业高度关注和社会各界广泛参与。大赛在推出设计新锐和精英、扩大设计团队及个人的公众认知度、加强“设计创新”等方面获得极大的社会影响;获奖团队和个人作品带来“设计驱动”,在创意设计、室内装饰、关联产业等领域取得了显著成效。该赛事进一步提高了我省室内设计水平,推动了全行业和相关产业的创新发展。
2018年陕西省第十届室内设计大赛,由“老板电器”独家冠名赞助。
陕西省室内装饰协会家装专业委员会
地址:大明宫建材家居·钻石店
- END
-
客服
消息
收藏
下载
最近












