查看完整案例


收藏

下载
今日分享
陕西省第十届室内设计大赛银奖作品
公共空间方案设计——
西煤机养老院室内装饰设计
“老板电器杯”陕西省第十届室内设计大赛获奖作品
作品类别:公共空间方案类
获奖奖项:银 奖
项目名称:西煤机养老院室内装饰设计
设计团队:张纪军
陈 阳 李云莉
参赛单位:西安理工大学艺术与设计学院
项目时间:
2018年4月
项目地点:
西安市
设计主材:
墙面:
采用抗菌防污壁纸、自然环保木饰面;
顶面:
医用级别铝塑板和轻钢龙骨;石膏板吊顶,医用级别乳胶漆饰面;
地面:
采用纳百利医用塑胶地面,防滑纳米级瓷砖。
主创设计师 张纪军
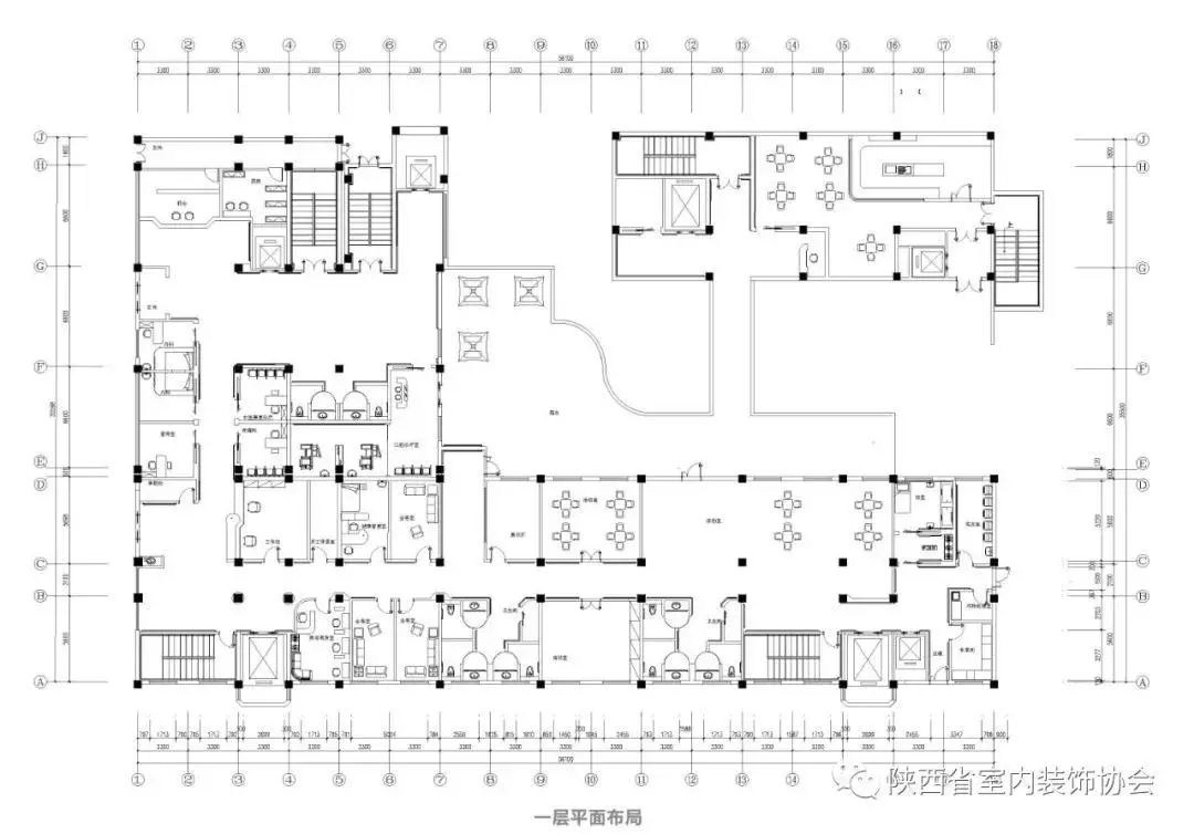
以下为效果图及平面图
设计理念:
当下人口老龄化日益严重,养老问题异常严重,养老院设计发展更需受到重视,如何使老人从心理上和身体上都享受到更好的照顾成为我们本次设计主要主题。
本次养老院项目设计基于“以人为本”的设计理念,致力于可达性的设计,考虑专为老年人服务的设计理念。通过分析老年人群的生理、心理和行为特征,致力于满足老年人群对生活空间的基本需求和更高需求(包括不同生理阶段的特殊需求),从而设计出适合老年人群生活的疗养空间。
从空间布局,色彩搭配,灯光设计,材质选择,家具选择,导视系统的设计等方面充分结合分析老年人的生理结构,心理现象,进行无障碍设计,在设计风格上也突破传统养老院的单调,冰冷,大量运用木材及暖色调,打造出轻松有温度的氛围。
参赛图版
大赛简介
陕西省室内设计大赛是陕西室内装饰协会常设的一项专业性设计大赛,是陕西省室内装饰行业的最具有权威性、专业性和影响力的设计大赛,受到了全行业高度关注和社会各界广泛参与。大赛在推出设计新锐和精英、扩大设计团队及个人的公众认知度、加强“设计创新”等方面获得极大的社会影响;获奖团队和个人作品带来“设计驱动”,在创意设计、室内装饰、关联产业等领域取得了显著成效。该赛事进一步提高了我省室内设计水平,推动了全行业和相关产业的创新发展。
2018年陕西省第十届室内设计大赛,由“老板电器”独家冠名赞助。
陕西省室内装饰协会官方网站:
陕西省室内装饰协会家装专业委员会
地址:大明宫建材家居·钻石店
- END
-
客服
消息
收藏
下载
最近

















