查看完整案例


收藏

下载
设计师殷朝伟
行业里颇为知名
今日分享他的作品守拙园
这是处于群山环抱间的石头建筑
这个用了300吨石头的小屋
究竟是什么样的
我们今日一睹风采
“老板电器杯”陕西省第十届室内设计大赛获奖作品
作品类别:公共空间方案类
获奖奖项:银 奖
项目名称:守拙园
设 计 师:殷朝伟
参赛单位:殷朝伟设计工作室
主创设计师 殷朝伟
实 景 照 片 及 部 分 施 工 图
设计理念:
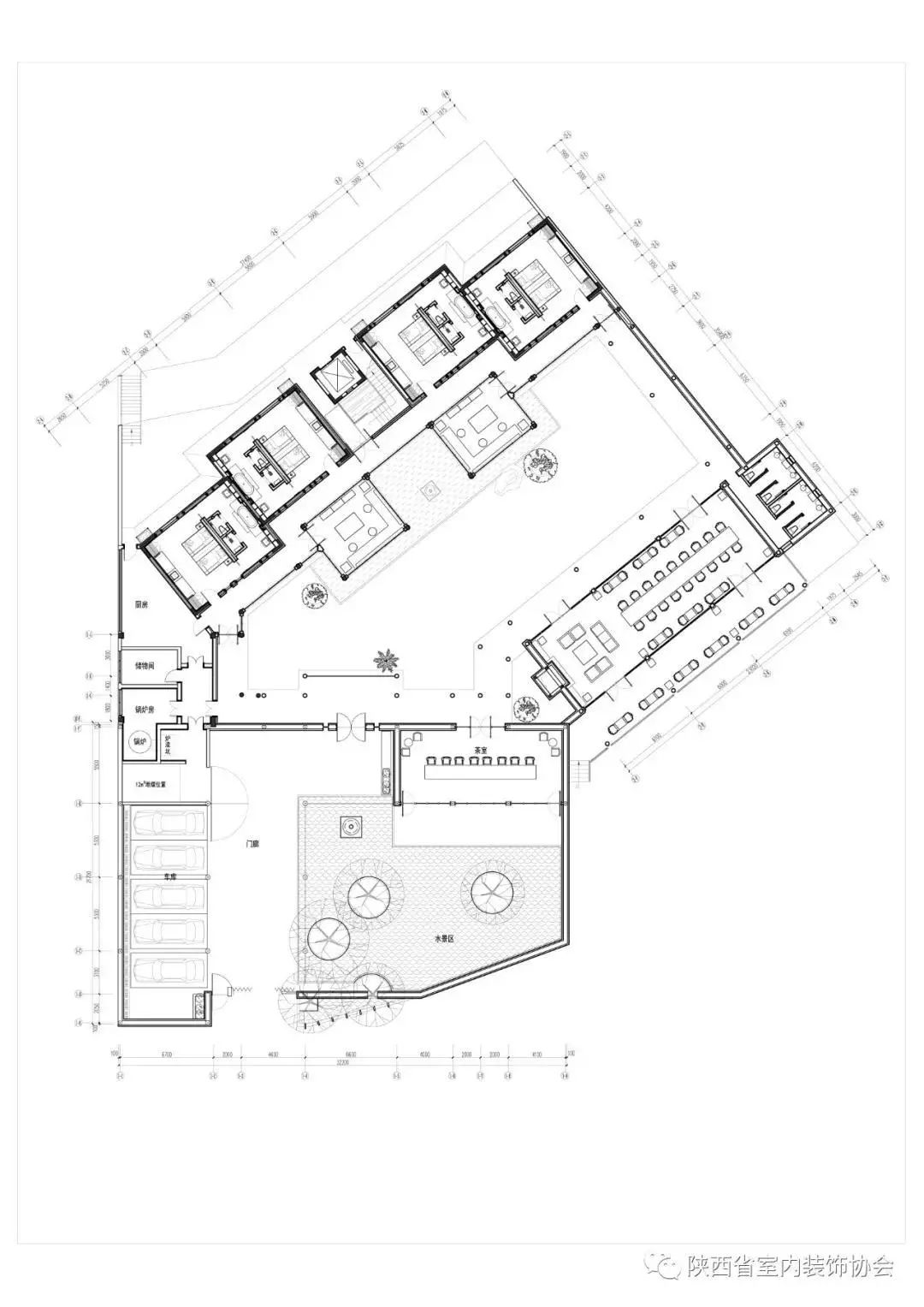
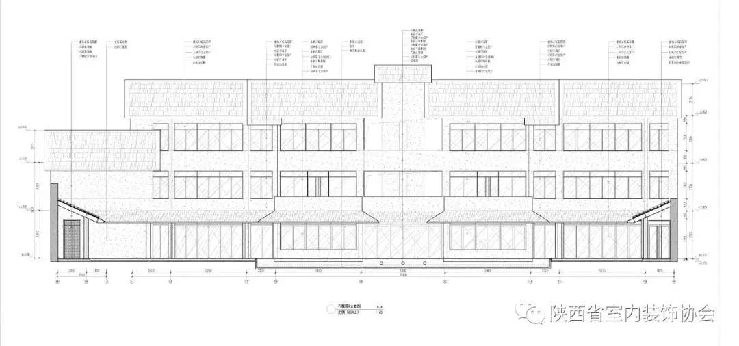
这个用了300吨石头的三层小楼,名曰“守拙园”,取自“抱朴守拙”之意,从空中俯瞰,满眼石头的建筑中夹着一个竖长的小院。小楼位于安康宁陕县山清水秀的蒿沟村,走过水刷石工艺的小桥,就可以一窥小楼内景了。
群山环抱间,两栋坡屋顶的“石头建筑”相互对望,左边是多功能厅,右边是住宿区。多功能厅内可以喝茶、聊天、阅读……墙体的大部分是由石头磊建而成。屋顶铺满石头的三层小楼既清新又拙朴。这里总共有12间客房,自然有12个好听的名字:望月、听风、问松……客房内是水磨石地面和原木门窗,室内没有空调,只挂蚊帐和吊扇,夏天,打开窗,任山风吹来。
小院地上铺的是石,屋顶铺的是石,连烟囱也被石头层层包裹,仿佛整个建筑是从大山里自然而然长出来的。过去,陕南的大山里,人们要盖房子,由于交通和经济条件的限制只能就地取材,开山取石,再用錾子把不规整的石头修整成长条形或方形,然后进行搭建,这样的房子看似危险,其实在不受外力的作用下,可屹立数百年不倒,而且冬暖夏凉。传统的技艺需要不断传承,而且建筑以天然材料为原料,不仅能与自然环境相依相随,即使将来改建、拆建对环境的影响都是最低的,所以我们改变了原来的设计方案,院内的多处墙体、院外的墙体等都采用‘干砌石’。
参赛图版
大赛简介
陕西省室内设计大赛是陕西室内装饰协会常设的一项专业性设计大赛,是陕西省室内装饰行业的最具有权威性、专业性和影响力的设计大赛,受到了全行业高度关注和社会各界广泛参与。大赛在推出设计新锐和精英、扩大设计团队及个人的公众认知度、加强“设计创新”等方面获得极大的社会影响;获奖团队和个人作品带来“设计驱动”,在创意设计、室内装饰、关联产业等领域取得了显著成效。该赛事进一步提高了我省室内设计水平,推动了全行业和相关产业的创新发展。
2018年陕西省第十届室内设计大赛,由“老板电器”独家冠名赞助。
陕西省室内装饰协会官方网站:
陕西省室内装饰协会家装专业委员会
地址:大明宫建材家居·钻石店
- END
-
客服
消息
收藏
下载
最近

























