查看完整案例


收藏

下载
01
北京 SPRING
从思考、创意和观察,空间配合多元化课程引导小孩「学习」,以空间鼓励小孩探索发掘,培养一切未知的美好,为小孩创造不同学习模式
"A very little key will open a very heavy door." - Charles Dickens
多层视觉透过不同形状、符号、线条、弧度创造草地、树林、岩石、隧道等各种素材让小孩感受不同触感,滑梯下的球池、走廊上的跑道、餐厅中的鞦韆、玻璃屋的烹饪室,不断探索、学习、暸解世界
落地玻璃让天然光自由穿梭于室内,全面打开感官,将简化色彩令小孩能更专注,自然细腻的木纹肌理,色泽深浅恰如其分安抚心情,让学习空间温暖而平和
白色的纯淨朴素能与所有色彩构成明快的对比以调和关係,无论是春天郁葱的森林或晨光中的田野,一抹绿色添上清新与活力
多元的感官室,多角度 "Sensory" 训练他们的空间感与方向感,刺激小孩身体机能手眼协调,从动态至静态,鼓励家长让儿童主动思考投入各项设施,满足一切好奇心
木材的温润塑出穹顶的 Spa,感受自然和谐的触感,清澈的水声使人专注于声音的同时,也放鬆了心境
环圈的空间形式让各空间既相连亦分隔,这是学习探索的纽带,无限的可能性自然衍生, 让空间启发小孩 发展他们的「我」。
项目资料
项目: 北京 SPRING
位置: 中国 北京
室内设计: P A L DESIGN GROUP
主创设计师: 何宗宪 Joey Ho
设计师团队: 林锦玲 Joslyn Lam, 陈伟业 David Chan
摄影师: 张骑麟
年份: 2019
面积: 2,200 平方米
照片版权: P A L DESIGN GROUP
02
Sydney Nubo Chatswood
想像力能带领我们超越以往范围的把握和视野。
——美国演说家安东尼·罗宾斯
对孩童来说,想象是新鲜的,因为他们对于初见的世界充满了好奇。对于设计师而言,想象是无界的,即便原有的建筑框定了尺寸,但无阻他对空间的肆意构想。
回望想象力诞生的瞬间,源于我们对世界的初次触碰。悉尼NUBO学习中心,设计师
通过空间情景化的营造,打造一个多元的互动体验乐园
,满足触觉上的舒适感的同时,以丰富的色彩和流动的线条塑造空间,满足他们视觉上的触感,激发孩子们好奇心,从中体验到学习的乐趣。
花园式的体验乐园
人们总是爱好感觉,而在诸多感觉中,尤重视觉。
无论我们有所作为或无所作为,较之其他感觉,我们都更爱观看。
--亚里士多德
空间的语言,色彩的故事很多时候无声胜有声,视觉的传达能触碰到他们对空间的依恋。在Nubo的用色上,设计师以浅色淡雅的颜色装点,搭配木材打造自然舒适的体验乐园。
入口接待处是一个开放的空间,两个大型圆弧的拱门像是邀请孩子及其家人进入中心,探索其中的奥秘。走入室内,是提供休憩与享受家庭时光的咖啡厅,享受美食的同时能促成家长与孩子更多的互动。
体验乐园的核心区域是以
“纯玩”
的概念打造的欢乐园。主体以两层树屋的形式打造,顶部不受空间的限制像树木般向上延伸。树屋可以通过一旁的隐藏的圆形通道进入,另一层则设置了滑梯增加趣味。
花园玩乐区是发挥创意与鼓励彼此合作的空间,设计师在此设置整面的创意墙,孩子们可以通过创意将一个个原本独立的模块组合成任意的图形。父母亦可在此与孩子一起完成创意的构想,带着孩子般的好奇心,开始天马星空的创作。
“将乐趣进行到底”
是设计师设计时的初心,因此在卫生间的设计也隐藏着别样的趣味。卫生间以柔和的天空蓝铺陈,因为"Nubo”在拉丁语中有云朵的意思,所以设计师将洗手台化为云朵的形状,孩子们在云朵下洗手,水像瀑布般落下。简单的过程亦可通过游戏融入到日常生活当中,教导孩子们卫生护理的同时也增加了乐趣。
多重触感的智艺空间
儿童的求知欲是一个持续的过程。想象力的培育,美感的培养都伴随着幼儿的认知、理解和想象能力的发展而逐渐发展,对美的符号化、形式化具有感知力,是幼儿美感发展中重要的一步。
为了更好的体验和理解,学习中心内设有感官室,室内是充满水,沙和光影的空间,房间各个角落安装独立的魔术盒,让孩子们可以开启各种感官探索周围的环境。设计师认为,一些特殊的细节设计以及一些惊喜的小物件放入室内中,更能刺激儿童在好奇心。
学习室的核心设计不是限制在课堂内,而是在多功能无障碍的环境中激发儿童的创造力,并且让他们独自应对所有无压力的学习环境中,发挥他们的创意。
对于艺术美感的培养与自信的建立,设计师分别设置了三个不同的空间,引导启发孩子的表达能力,表现自我。艺术启发室主要是一面弧形的画布墙,上面陈列着孩子们创意的画作,空间没有完全封闭而是以透明的窗户让处在门外的人也能欣赏到孩子们的杰作。
戏剧室,是一个蓝色背景的迷你舞台,为戏剧教学和认知技能的发展提供理想的课堂。一旁的角色扮演室,为孩子们创造了一个村落般的公共空间,不同的场景设置,让他们能参与到生活场景当中,让他们有更多的自由来发展自己的想象力并建立自己的朋友圈。
"We can't make children learn, but we can let them learn."
正如美国心理学家Alison Gopnik所说的,学习的这一动作是自然的,主动和被动的差别只是差了一个充满趣味的体验空间。设计师将悉尼的Nubo学习中心,打造成多重触感的乐园,让孩子沉醉于不同的体验之中。设计师通过场景化,社交化的空间设计令体验感更强,打造一个多元触感的智趣乐园。
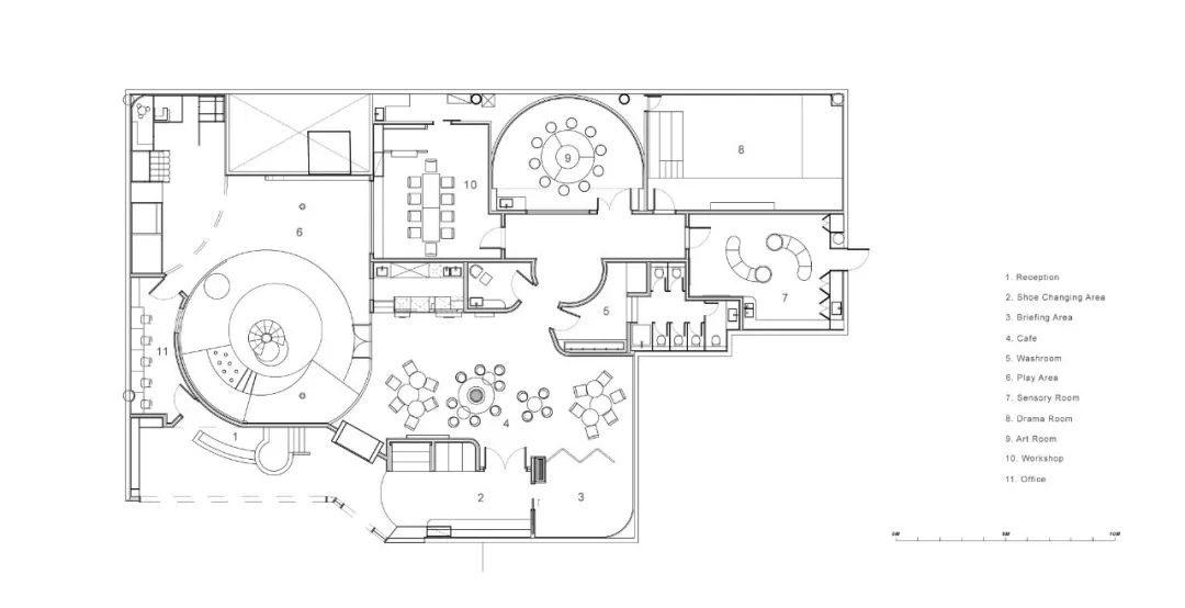
平面图
项目资料
项目: Sydney Nubo Chatswood
地点: 澳洲 悉尼
面积: 570㎡
年份: 2019
室内设计: P A L DESIGN GROUP
主创设计师: 何宗憲Joey Ho
设计师团队:林錦玲Joslyn Lam
影师: Amy Piddington, Dan Gosse, Minjie Zhang
照片版权: P A L DESIGN GROUP
何宗宪
P A L Design Group 设计董事
香港室内设计协会 会长
香港贸发局 设计市场及授权服务业咨询委员会委员
香港设计中心 董事会董事
香港专业教育学院 课程顾问
香港大学(建筑硕士) 及 新加坡大学(建筑学士)
何宗宪(Joey Ho)。荣获「2018金殿奖-年度杰出设计师」、「2018年中国室内设计十大年度人物」、日本杂志Studio Voice选为「亚洲创作VIP」之一及「香港十大杰出设计师」。毕业于香港大学建筑硕士、新加坡大学建筑学士,Joey的设计手法前卫、体现深邃前瞻的愿景且具功能性,多年来获颁超过120个本地及海内外设计大奖。设计范畴涵盖酒店、住宅、商业、教育及公共机构等不同领域,项目遍布香港、美国、澳洲、新加坡、印度和大中华等地区。
客服
消息
收藏
下载
最近




















































