查看完整案例


收藏

下载
精品酒店
酒店大堂设计是酒店空间设计的重点区域,它是客人来往的必经之地,大堂的主要区域为入口、总服务台、休息区、公共洗手间等。大堂是酒店对外展示的橱窗,大堂形象也就成为酒店形象的浓缩与升华。主要采用硬朗简洁的直线条,空间具有层次感。既使得中式家具古典、质朴的内涵显现,又符合现代人追求的时尚感、实用性。家具的颜色:主要是以深色为主,有深厚沉稳的底蕴。
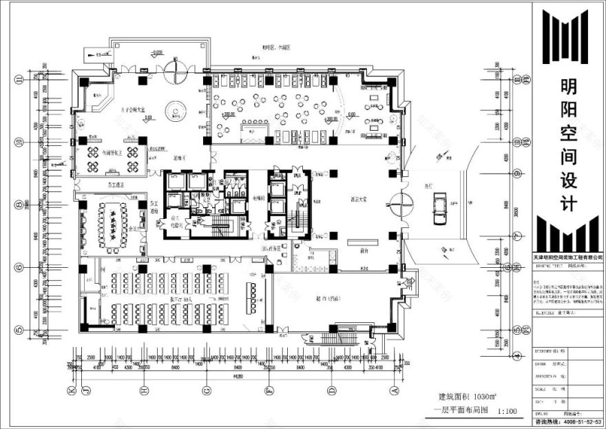
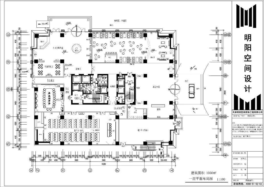
设计平面图
▼
设计师介绍
杨根明
毕业于天津商业大学,主修专业艺术设计专业,
曾获得国家二级摄影师
擅长的领域是酒店空间设计,办公空间,娱乐空间
设计理念以人为本
代表作品:津云中央平台办公空间、中际佳悦大酒店、网红轰趴馆等
张馨予
毕业于天津科技大学,主修环艺设计专业
在天津明阳空间装饰有限工程公司担任主案设计师
具备丰富的专业知识和独到的审美理念
设计理念:创造带有灵魂的作品
代表作品:紫乐府别墅,保利罗兰公馆,融创中央学府,合畅园,东丽湖东屿等
周圣明
毕业于天津商业大学艺术学院,主修环境艺术设计(室内设计)
现在在天津明阳空间装饰有限工程公司担任设计总监;
具备一定的专业知识和技能,能熟练掌握CAD,3D,PS等软件
擅长的领域是办公空间、酒店、家装
设计理念:形式追随功能,一切设计由概念出发,围绕功能进行细节设计
客服
消息
收藏
下载
最近

















