查看完整案例


收藏

下载
白天交予阳光,夜晚归于灯火。家,不是简单的一所房子,而是岁岁年年在这间房子里度过的生活。01 本案设计师
0
2
案例背景
本案是一家三口,老人偶尔小住,有一女儿,刚上小学。
谈及设计需求,业主希望:
厨房有洗碗机、蒸烤箱等电器;
餐厅有岛台;
卧室按照套房设计,储物空间要大,还要有休闲区;
儿童房需有学习区;
客卧简约实用。
0
3
设计解析
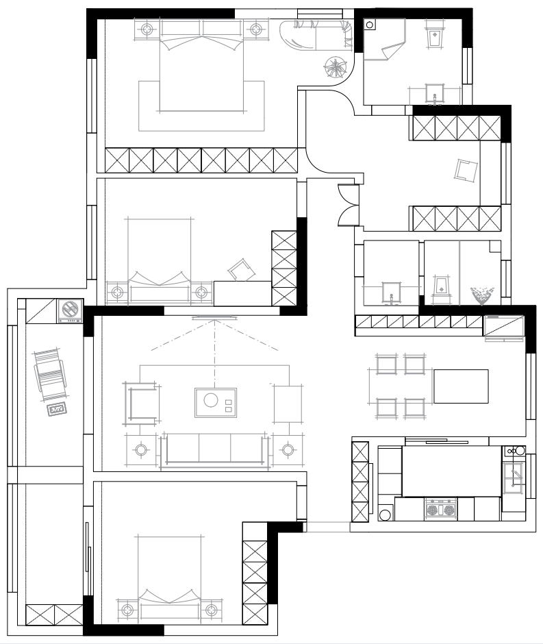
原始图/平面布局图
设计思路:以情感为价值导向,剔除无用之物,精选必要存在,根据业主需求,户型做了以下改动:
✦①打掉多余墙体,扩大餐厅使用面积,为岛台“腾”空间;
✦②考虑为女孩预留学习空间,拆除了墙体,增大空间面积;
✦③改变主卧进门位置,原进门位置修建新的墙体,更好满足业主套房设计需求;
✦④原衣帽间空间现做休闲区使用,拆除了墙体,并改变卫生间开门位置,让行动路径更顺畅。
本案以黑、白的简约基调,营造出质朴天地,每一处都在表达空间与艺术的关系,让业主认识生活,然后热爱生活并享受生活。
0
4
效果展示
玄 关
Porch
入户柜造型简单利落,内嵌形式与墙体融合,空间更美观,底部预留空间,方便日常换鞋,抽屉采用灰杉木,两色搭配,削弱了柜子的体积感,精巧又有个性。
客餐厅
The restaurant
超大横厅让人艳羡,高级灰的运用,空间更添时尚格调,轻松的生活氛围,唤起内心对生活的美好感知。
客 厅
living room
纯净的白色和灰色,传递出对生活纯粹的生活态度。简单的色调,用丰富的材质带来对比,形成丰富的层次感。
客厅空间
电视柜满墙设计,充分利用空间,实现收纳空间最大化,同时考虑美观性,采用了抬高设计,拉伸了视觉效果,减弱柜子的厚重感,搭配格栅,柜子变得更立体。沙发背景墙与电视柜相呼应,格栅的运用,增强空间的艺术表现,原木的点缀,空间变得鲜活起来。
餐 厅
Restaurant
简约的餐厅设计带来干净清爽的气质,岛台与餐桌的结合设计,打造多元化的功能形式,分散了厨房空间的压力,带来多方位、多层级的使用感受。餐边柜吊柜采用了玻门,增加了空间的通透感,侧边柜与客厅柜联系紧密,增强了空间的互动和对话。厨房 kitchen
经典的黑色,搭配原木的温暖质感来作为中和,空间变得灵动有趣,去繁就简,在简单的厨房空间,感受烟火气的幸福。
主 卧
Master bedroom
素雅的色彩,明净的基调,让人不自觉放松下来,舒缓情绪。
大面积灰杉木墙板的设计,丰富了空间视觉层次,其低调沉稳的气质,给人满满的安全感。
原衣帽间现改为休闲区,带圆弧造型的墙体,再搭配格栅设计,小资有情调。一扇窗下配置了休闲沙发、边几和落地台灯,组成悠闲的场所,在此地可静静听由时光鸣奏的乐曲。
业主对储物需求量大,依势墙体,采用内嵌方式,一排大衣柜落成。拉手采用了半高黑色长拉手,拉升了视觉效果,弱化柜子的压迫感,增添了时尚风味。
主 卧 衣 帽 间
Master bedroom cloakroom
衣帽间与卫生间相连,方便日常衣物的换洗叠放。
两排对称衣柜,展现了和谐美妙之美,搭配梳妆台的巧妙设计,满足业主的日常使用需求。通过设计,生活变得更有期待。
次 卧
Secondary decubitus
次卧以简单清爽为基调,连接了阳台,光线可以直接落入室内,采光和视野都达到了最佳状态。为避让中央空调,衣柜的侧边柜顶部采用开放设计,新颖造型吸引眼球,让柜子灵动感十足。
儿 童 房
Children’s room
以居住者的身份和喜好定基调,并在基调上用力发挥设计的魅力。儿童房粉白色调,梦幻的空间给足孩子温馨安全的感觉。衣柜+书桌的设计,增加了衣柜的设计感,侧边开放,提升了柜子的利用率,用于收纳日常物品,便于拿取。阳台 Balcony
一边是洗衣区,一边是储藏区,有序的功能分配,让空间得以有效利用。
盛涛为居住者量身定制的家,一切以实用为前提的“简”,但是不减情感,不减温馨,简而不减,在简约的空间里,过平凡温暖的日子。
//
文:小新
图:嚼红草
客服
消息
收藏
下载
最近
























