查看完整案例


收藏

下载
ENJOY LIFE
寻找生活的意义,不负生活的期待。
0
1
本案设计师
0
2
案例背景
在对未来生活场景的描述时,业主重复最多的词是轻松、活泼。业主有两个男孩,父母会偶尔来住,需要预留老人房,厨房设计为开放式,因为家里有孩子,储物空间要多。
0
3
设计解析
设计思路:
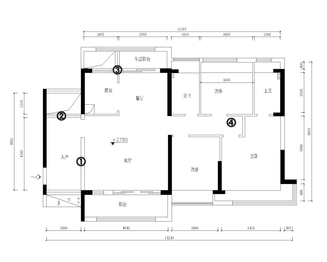
本案户型较为规整,但过道较长,在原有户型的基础上做了以下改动:
✔① 拆掉玄关墙体,打通入户、客餐厅空间,整体空间更通透,考虑实用性和美观性,玄关进行造景,将吧台和玄关柜结合,营销浪漫的小资氛围;
✔② 打掉墙体,纳入设备平台空间,入户空间变得更宽敞,设计一字型入户柜和休闲榻榻米,不仅增加了收纳空间,也“造”出了娱乐空间;
✔③ 拆除原生活阳台墙体,扩大厨房空间,利用柱子、柜体、吧台组合分区,分为开放式厨房和小书房,让生活产生更多互动;
✔④ 拆除墙体,并改变了主卧和次卧的开门方向,主卧空间变得更方正,行动路径更顺畅。
从生活角度出发,为平衡生活和娱乐,采用了现代风格,摒弃外部繁琐装饰,用材质本身的质感、形态、色调传递空间气度,一个简约质感的现代空间由此诞生。
0
4
效果展示
玄 关
Porch
入户敲掉原先墙体,进门视野变得更开阔,但从风水角度来说,进门不能直冲客厅,为化解格局,玄关设计了入户柜+吧台,为保证空间的通透性,搭配长虹玻璃,造型上更时尚新颖,氛围上也更小资浪漫,实现实用性+艺术性的双重效果。
进门
一字型入户柜,超大存储体量,满足储物需求。考虑家里有老人和小孩,设计了换鞋凳,上方挂钩也便于平时放置外套等物件。
因家里有两个孩子,把原设备平台改为榻榻米,为孩子设计了轻松愉快的娱乐场所,让他们在此健康快乐成长。
客 餐 厅
The restaurant
空间南北通透,采光好,低调沉稳的配色,简约高级。
一字型电视柜挑高设计,便于日常卫生的清理,材质使用了纹理细腻的银梨灰,天然质感带来自然的触感和温度,营造出舒适、温馨的生活氛围。
餐厨区纳入原生活阳台空间,扩大使用面积,依势墙体,设计了开放式厨房和小书房,一动一静,增强了空间的联系,让空间通过设计,拥有万种可能。
厨房采用了门型拉手,协调的设计比例,延伸了视觉效果,增加了柜子的层次感,整体更具设计感。
餐厅简单爱餐椅搭配绅士风范Ⅲ岩板餐桌,延续空间干净清爽的基调。为分散吧台的储物压力,设计了侧边储物柜,小物件拿取更方便。
原阳台位置设计为小书房,弥补空间无书房的遗憾,大人或小孩都可以在此办公、学习。小书房右侧玻璃酒柜和开放展示柜的组合设计,虚实结合,美观时尚。
主 卧 Master bedroom
巧施空间挪移术,主卧通过拆除墙体、改变开门方向,打造了居住更加舒适的空间。灰白两色,搭配稳重木色,探寻简约与温暖的平衡点。
床使用了志邦成品欲望都市,利索的线条,牛皮的质感,带来简约的高级感,为业主带来更好地休憩体验。
生活不能没有美感,为满足储物需求,设计了整排衣柜,并巧用玻门和开放格,柜子变得灵动活泼,靠窗位置,设计了梳妆台,时尚的设计造型,整个空间更有灵韵。
次 卧
Secondary decubitus
简单爱的床搭配鎏金白、银梨黄墙板,柔和的色调,是家的模样,给人岁月静好的温柔。考虑到房间未来十年的使用,采用了衣柜+书桌的组合搭配,灵活的组合有效地利用了空间,不论是老人或孩子居住都非常合适。
儿童房
Children’s room
因业主有两个孩子,设计了上下两床,楼梯使用了抽屉,可培养孩子分类收纳的能力。一组衣柜+书桌,空间使用最大化,打造了学习、休息、娱乐一体的功能性空间。
倾听发生着的点点滴滴,烙上独一无二的家的记忆。朱筱媛通过设计,为业主营造了归属地。每一张桌椅、每一盏灯,每一个柜子,都在守一方天地,见证岁月静好的温柔。
//
文:小新
图:嚼红草
客服
消息
收藏
下载
最近















