查看完整案例


收藏

下载
志邦玻璃通透柜设计标准
01前言
1.1、概述
铝框+玻璃,作为时下流行的极简风、轻奢风必不可缺的装饰元素,以其细腻光泽的高级质感,时尚饱满的视觉享受,呈现出极具艺术感与氛围感的家居空间。
1.2、产品亮点
1. 透明玻璃让空间“开阔、灵动、不死板”;
2. 铝框的金属质感起到强调作用,更能凸显玻璃下的鞋包、衣物;
3. 柜内氛围灯的渲染下,扑面而来的陈列感,鞋包的观赏性更强。
1.3、产品应用
1. 空间装饰柜如餐客厅隔断柜;
2. 卧室、衣帽间衣柜。
特别说明:禁做门洞内嵌式设计,地板铺好以后安装柜体。
02 产品规范
2.1、下单规范:
1. 下单编码:志邦铝框玻璃柜(JWG00016)
特别说明:此编码包括铝框玻璃柜体、自制木质顶底板、配套铝框玻璃门板、天地铰链和配套的五金功能件;
2. 下单图纸:根据工艺图提供的模块布局进行绘制,结构固定,不可更改;
3. 自制木质顶底板下单:仅限 25mm 厚柜体板花色使用,顶底板为固定尺寸;
2.2、设计尺寸标准:
1. 标准宽度:标准单元柜柜体宽度为 1000mm,组合形式为共侧结构,总宽可以根据需求任意定制;
2. 标准高度:柜体总高 H:300≤H≤2700mm;
3. 标准深度:柜体深度:D:530/580mm;
4. 门板尺寸:固定宽度 500mm,不可更改。门板高度尺寸不限;
03、配置明细
序号
名称
图片
备注
1
罗马灰色圆框玻璃门
1.含 4mm 灰玻
2.默认含拉手
2
萨郦奇天地铰链
一扇门一付 3 玻璃柜侧框架或中立柱
/
4
玻璃柜门楣
25mm 厚 5 带灯衣通玻璃层板
/
6
带灯玻璃层板
/7 铝框玻璃侧板
/
8
铝框玻璃背板
04标准模块
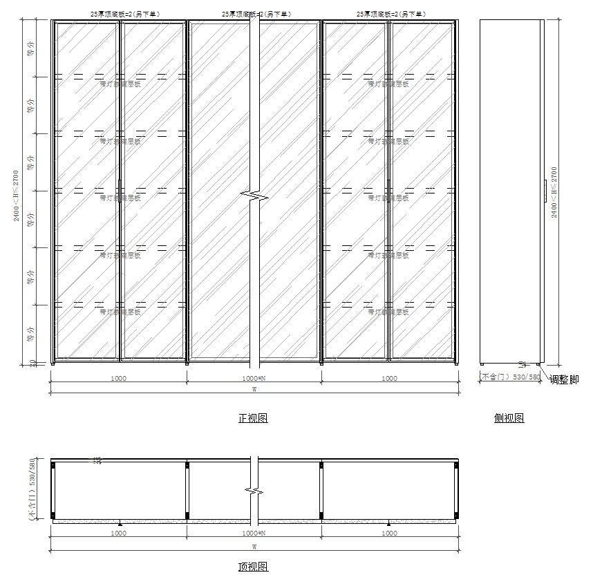
4.1、2400<H≤2700 五层带灯玻璃层板模块说明:
名称
单元柜
共侧柜
图例
其他
说明
含 5 片带灯玻璃层板等分,2 扇对开玻璃门,设计下单工艺编码:JWG00016,工厂见图加工
含若干片带灯玻璃层板等分,若干扇对开玻璃门,设计下单工艺编码:JWG00016,工厂见图加工
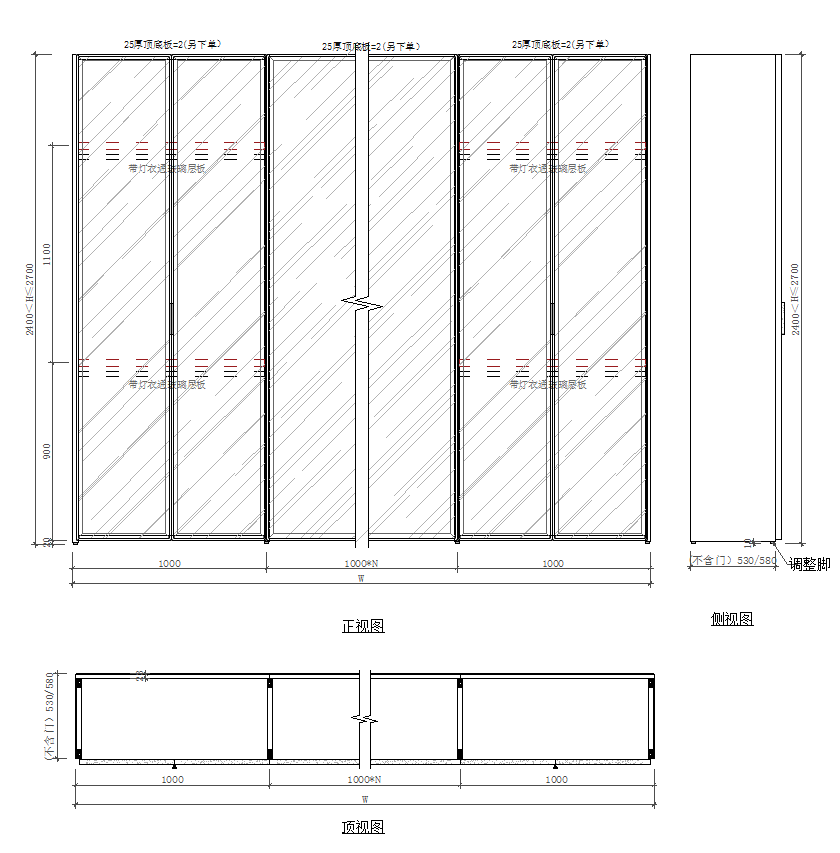
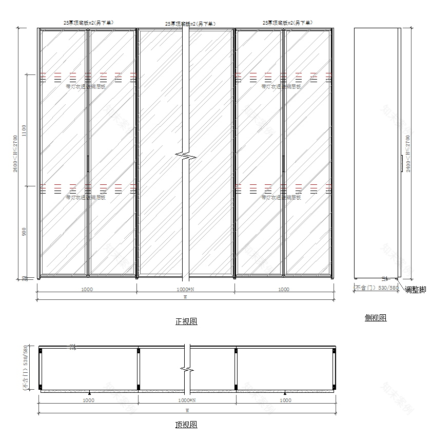
4.2、2400<H≤2700 带灯衣通玻璃层板模块说明:
名称
单元柜
共侧柜
图例
其他说明
含带灯衣通玻璃层板,2 扇对开玻璃门,设计下单工艺编码:JWG00016,工厂见图加工
含带灯衣通玻璃层板,若干扇对开玻璃门,设计下单工艺编码:JWG00016,工厂见图加工
4.3
、2400<H≤2700 带灯衣通玻璃层板模块说明:
名称
单元柜
共侧柜
图例
其他说明
含带灯衣通玻璃层板和带灯玻璃层板,2 扇对开玻璃门,设计下单工艺编码:JWG00016,工厂见图加工
含带灯衣通玻璃层板和带灯玻璃层板,若干扇对开玻璃门,设计下单工艺编码:JWG00016,工厂见图加工
4.4、2100≤H≤2400 带灯衣通玻璃层板模块说明:
名称
单元柜
共侧柜
图例
其他说明
含带灯衣通玻璃层板,2 扇对开玻璃门,设计下单工艺编码:JWG00016,工厂见图加工
含带灯衣通玻璃层板,若干扇对开玻璃门,设计下单工艺编码:JWG00016,工厂见图加工
4.5、2100≤H≤2400 带灯衣通玻璃层板模块说明:
名称
单元柜
共侧柜
图例
其他说明
含带灯衣通玻璃层板和带灯玻璃层板,2 扇对开玻璃门,设计下单工艺编码:JWG00016,工厂见图加工。
含带灯衣通玻璃层板和带灯玻璃层板,若干扇对开玻璃门,设计下单工艺编码:JWG00016,工厂见图加工。
4.6、1800<H≤2400 四层带灯玻璃层板模块说明:
名称
单元柜
共侧柜
图例
其他说明
含 4 片带灯玻璃层板等分,2 扇对开玻璃门,设计下单工艺编码:JWG00016,工厂见图加工
含若干片带灯玻璃层板等分,若干扇对开玻璃门,设计下单工艺编码:JWG00016,工厂见图加工
4.7
、1400<H≤1800 三层带灯玻璃层板模块说明:
名称
单元柜
共侧柜
图例
其他说明
含 3 片带灯玻璃层板等分,2 扇对开玻璃门,设计下单工艺编码:JWG00016,工厂见图加工
含若干片带灯玻璃层板等分,若干扇对开玻璃门,设计下单工艺编码:JWG00016,工厂见图加工
4.8、600<H≤1400 二层带灯玻璃层板模块说明:
名称
单元柜
共侧柜
图例
其他说明
含 2 片带灯玻璃层板等分,2 扇对开玻璃门,设计下单工艺编码:JWG00016,工厂见图加工
含若干片带灯玻璃层板等分,若干扇对开玻璃门,设计下单工艺编码:JWG00016,工厂见图加工
4.9
、300≤H≤600 无带灯玻璃层板模块说明:
名称
单元柜
共侧柜
图例
其他说明
无带灯玻璃层板,2 扇对开玻璃门,设计下单工艺编码:JWG00016,工厂见图加工。
无带灯玻璃层板,若干扇对开玻璃门,设计下单工艺编码:JWG00016,工厂见图加工。
05自制板件工艺规范
5.1、顶底板尺寸标准:
1.铝框玻璃柜仅顶底板为自制木质板件,限定厚度为 25mm,具体可选颜色参照产品手册柜体花色。
2.规格尺寸:顶底板长度=柜体内宽度,顶底板宽度=柜体净深-45mm;
3.单元柜布局顶底板尺寸:940×(462/512);
4.共侧柜布局两侧边柜顶底板尺寸:957×(462/512),共侧柜中间柜顶底板尺寸:975×(462/512);
图示详解尺寸:
5.2、顶底板生产组装规范:
顶底板孔位加工图:
玻璃柜顶底板门楣安装示意图:
06设计注意事项
6.1、空间放置要求
禁做嵌入式设计,如下图所示:
6.2、顶部空间预留尺寸:
由于玻璃柜是横放在地面上进行整体框架组装,因此顶部需要预留一定的空间保证柜体立起来。
顶部最小预留空间为 80mm,设计师下单时需注意;
※本文由研发试制技术中心张晶、张正武提供
客服
消息
收藏
下载
最近







































