查看完整案例


收藏

下载
粗略一算,黄静步入设计行业已有25年,15年的硬装设计,4年的软装设计,3年的家装设计,再3年的定制设计。每一阶段的选择,都在一点点补全“设计的版图”,深化对设计的认识,为成为更优秀的全案设计师打下了坚实的基础。
2021年10月,黄静的又一全案设计,一套240㎡三层别墅正式完工,经过8个月的等待,最终不负业主的期望,实现了业主对家的最初美好想象。
1
▲
与业主的相识,用方案打动客户
▲
2021年,年关刚过,大家都还沉浸在过年的氛围中,店面冷冷清清。午后,一对夫妇散步来至店面,黄静接待了他们。在谈话中,了解到男业主自营一家建筑公司,女业主是家庭主妇,儿子已上大学,他们已接触了几家装饰公司,但是都不是很满意。
对于装修诉求,希望风格简约,关于其他,就比较模糊。
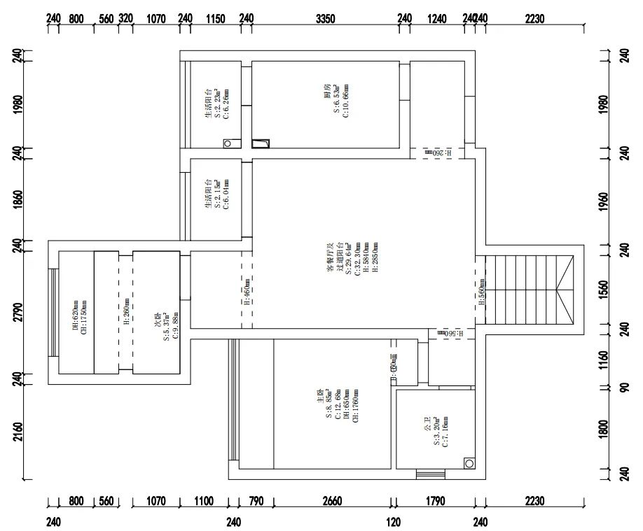
鉴于此,黄静就先从户型入手。这是一套三层别墅,负一层是生活区,一层是休闲区,二层是休息区。
负一层结构复杂,梁柱多而杂,在空间布局上重要的就是处理梁和柱的关系,顺应梁柱的结构而建墙,做到顺梁隐柱,生活动线顺畅,空间布局合理。
此区域作为生活区,围绕着舒适和放松,划分了多功能厅、美容室、中厨和卫生间。
负一层复杂
的梁柱结构
此空间最大的难点是多功能厅和美容室间承重柱尺寸大,中间还有一个斜柱子,为保证空间的美观性,把斜柱包在墙里,多功能厅位置采用餐边柜的形式巧妙化解柜子外漏的难题,不仅增加了多功能厅的收纳空间,而且让空间整体更和谐统一。此外,为了解决多功能厅梁的问题,特别建造了室内景观,增强了空间的趣味性。
对于负一层来说,最大的难题就是采光。为了增加采光和天然气的安全使用,在不影响主体结构安全和一楼的美观度,在中厨和室内景观位置的天花板分别开了天窗,此设计让业主欣喜万分。
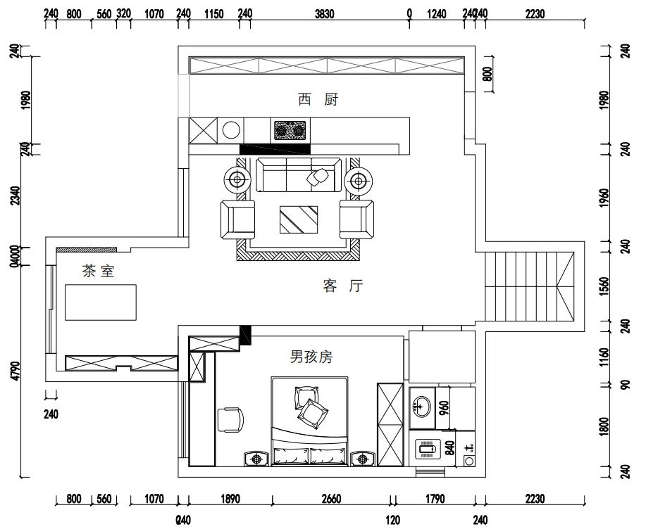
一层是家人的主要活动场所,为了让生活更自由,无拘束,此区域的设计思路是每个区域既相互独立,又相互联系。
进门打通墙体设计西厨,一进门便给人大气时尚之感。开放的西厨与客厅相呼应,增强了人与人,空间与空间的互动,让关系变得更亲密。客厅打掉了多余的墙体,整体空间更开阔明亮。考虑到男业主的工作属性,经常会邀请朋友回家做客,一间茶室必不可少。在连接庭院处,一方天地正是品茶的好地方。坐在茶室品茶,咫尺之外就是充满自然活力的小庭院,满眼的绿,满嘴的香。
因儿子目前还在上大学,在家时间短,他的卧室便设计在一层。
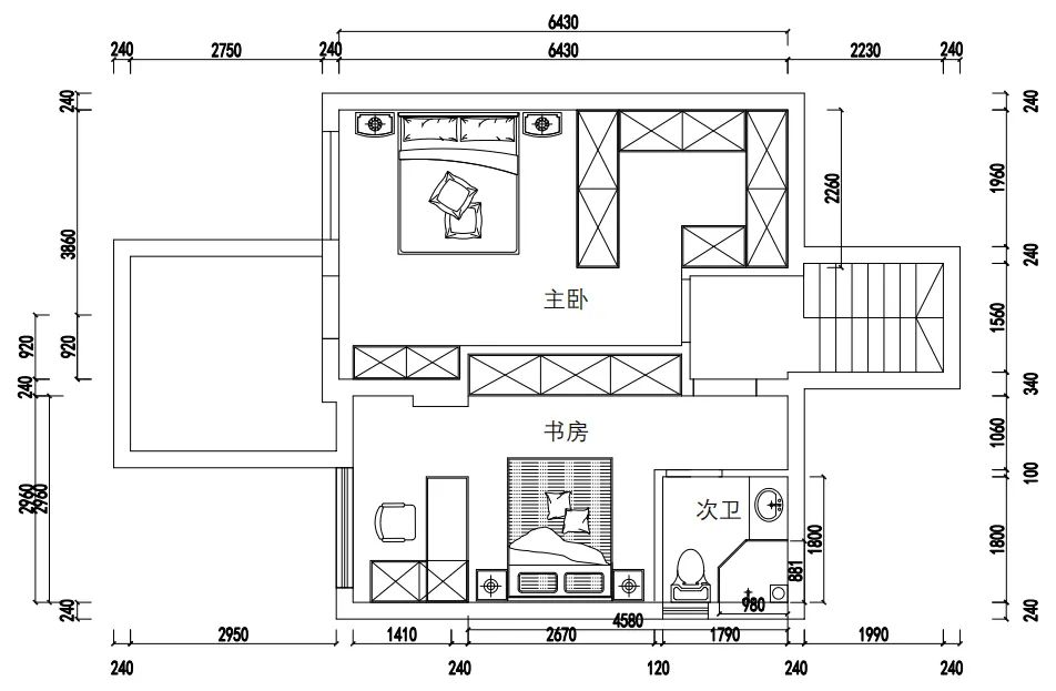
二层是休息区,一间主卧和一间书房,宽松而休闲。
休息区改动较小,其最大的亮点在于,为了扩大储藏空间,重建了主卧与书房的墙体,“z”字型的墙体,预留了柜子的空间,内嵌柜子填补了“空白”,让整体空间更美观和谐。主卧大容量的衣帽间解决了业主在未来生活中因衣物的增加而对收纳空间需求增多的问题。书房拆除了飘窗,设计了书桌,满足男业主日常办公的需求。
每一处的小改动,都是从客户的信息中分析出他的喜好和痛点,一招击中内心的触点。
细腻的设计方案,让客户一下就拍案认定了黄静。
2
▲
与客户的相熟,用设计征服客户
▲
精致的生活不仅需要“里子”,更需要“面子”。
自客户认定方案后,黄静便开始着手设计效果图。在设计前,黄静从客户口中得到的仅有“简约”、“大气”、“清爽”,三个有用的词汇,其他的一概不知。其实主要是客户对于未来的家,他也是模糊而没有概念的。
黄静从客户的年龄、身份和工作属性入手,五十岁的老板,见多识广,经常出入高档会所。于是他就走遍万州的高档会所,从中找寻灵感。在经过多天的思考,黄静的思路出来了,风格是简约中带有轻奢风味,并加入中国风的韵味。在设计时,柜体选用了落叶松,门板选用了高光pet,清爽利落的造型,干练简约,散发着大自然蓬勃的气息,大气而又生气十足。
负一层空间开阔,进门到顶的入户柜,简单大方,配上换鞋凳,方便业主进出门换鞋,一门到顶的柜子搭配金属长拉手,拉高了视觉比例,更显沉稳大气。
打麻将已成为重庆人生活的一部分,考虑餐厅面积大,餐桌+麻将桌的组合,不仅更合理地利用了空间,更是满足业主足不出户就可以享受娱乐休闲的体验。麻将桌旁是特别设置的室内景观,阳光透过天窗,丝丝洒落,明媚而美好,给予视觉最大的享受。
餐边柜背后是斜柱子,为了让整体更美观,新建了墙体,餐边柜以内嵌形式巧妙设置,柜子有开有合,有藏有露的考量,便于展示又便于收藏,方便业主更自主选择。
这样的设计,不仅让空间更完整、大气,生活其中也更舒畅、顺心。
厨房面积大,U型设计让分区更明确,烹饪区、备菜区、洗涤区各自独立,互不干扰。色调采用了大道至简的白色,经典又时尚。业主一家身高都很高,从实用和美观两方面考虑,厨房的亮点是吊柜设计成双排上翻门柜子,不仅把空间最大化利用,而且上翻门吊柜开合更顺手,使用更便捷。
一楼进门打掉原先墙体,设计了整排柜子,效果大气高端,玻门的使用增添时尚的质感,奢华有档次,彰显对生活品质的追求。
厨房与吧台相连,不仅在空间上起到分隔的作用,还可以当小餐桌,喝酒聊天,美观实用。年轻化的设计为空间带来青春的活力,提升家的格调。
客厅打通生活阳台,空间更宽敞明亮。沙发背靠吧台,加强了西厨和客厅的联系,让空间关系更紧密。客厅落叶松的使用,不规则的木纹带着原始的力量,稳重的气质和中式气韵相通,增添古朴和诗意的味道。
茶室使用了哑光深蓝色,更显高级大气。柜子采用纯粹的对称设计来彰显质朴的美感,藏露相间的小心思,用活泼的设计营造休闲的氛围。
业主儿子已上大学,此空间是儿子的卧室,平时也做书房使用。大面积开放书柜方便业主拿取书籍。书桌底部设计了一排30cm的柜子,不仅可以起到支撑加固书桌的作用,而且还起到修饰墙面的效果,整体看起来更整洁美观。
二层主卧以白色为主,空间明亮通透,半开放的衣帽间满足业主对收纳的需求。靠墙位置内嵌的梳妆台,空间更统一,搭配格栅的设计,增添了趣味和情调。
书房是男业主的专属空间,为了满足日常办公需求,拆掉了原先的飘窗,设计了一组简单的桌椅,更方便办公。一排内嵌衣柜,简约大气有格调。考虑男业主有时办公太晚,可直接在此休息,带有人情味的设计,是对生活的细致考量。
3
▲
与客户成为朋友,用专业说话
▲
客户于11月底正式入住新房,乔迁当天业主特别邀请了黄静一起分享这份喜悦之情。从设计到落地,8个月的时间,让业主见证了所见即所得,见证了设计的魅力。黄静也不负期望,用专业和实力完美还原了效果图中的家。
下面让我们跟随黄静的镜头,一起感受实景的美。
负一层
一层
二层
全案设计不仅仅需要从业主的喜好、生活习惯、工作性质等各方面入手,还要考虑户型的优劣、硬装设计、软装设计、色彩搭配等。黄静凭着二十多年的设计经验,根据对户型和业主的了解,通过设计艺术的加工,完美还原了业主对家的想象,把效果图搬进了现实中。在充满温情和大气的家中,相信业主的生活也会越来越红火。
//
文:小新
图:红豆拌饭
客服
消息
收藏
下载
最近
















































