查看完整案例


收藏

下载
美丽的景色,扛得住季节的变迁。实用的设计,经得住实景的拍摄。接下来这套颜值与实力并存的案例,是一家六口的生活场所。面对不同年龄段,需要满足多种功能。设计师又是怎样去做的呢?
说说背景
本套住宅面积为 136 平,是个大家庭,日常居住一家六口,一对夫妻,两个孩子,还有两位老人。特别提出需要足够的收纳空间,满足日常的存储。
聊聊户型
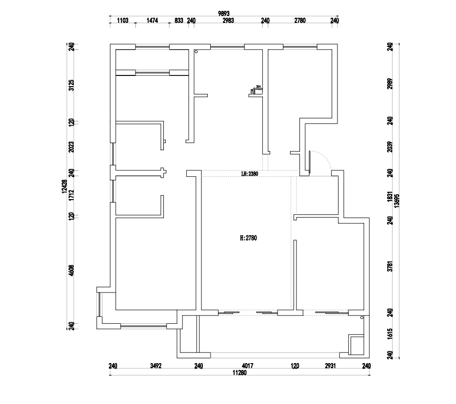
▲原始平面图
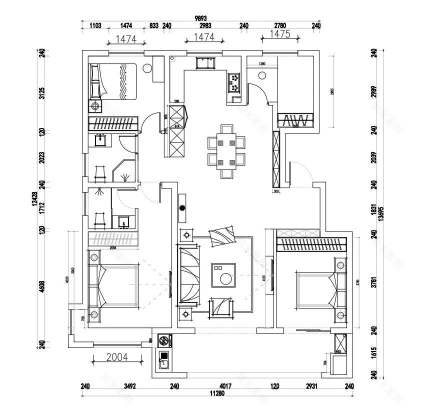
▲平面布置图
本案面积:136㎡
户型改造:为满足足够的收纳空间,在此基础上进行户型改造。敲掉父母房与玄关处的隔墙,从而用玄关柜和衣柜作为墙体隔断;父母房与客厅之间的门闭合,建成实墙,仅预留连通阳台的门作为进入父母房的入口;取消女儿房与餐厅之间的墙体,将女儿房的面积缩小,让出空间给餐厅,让厨房和餐厅增加的互动性和实用性;男孩房内的阳台处进行拆除,房内面积增大。
看看细节
0
1
玄关
矩形色块经过墙体改造后,玄关空间增大,一整排到顶的鞋柜,可容纳一家六口的常穿的鞋子。侧边墙体也要利用起来,一组穿衣镜搭配换鞋凳,方便生活之余增了添时尚感。
鞋柜引人注目之处当属红色套格的存在,打破大地色系的柜体色彩,一抹红艳欢快跳脱,作为临时存放处实用性强。
0
2
客餐厅
矩形色块
客餐厅相连,视野开阔,作为一家人的联络枢纽,空间宽敞通透。原户型中,电视背景墙有一扇门通往父母房,填充过后,整面墙大气美观,电视也可以居中摆放了。
餐桌椅位于餐厅中央,四周留有足够的流线,这应该归功于缩小了女儿房的面积,让步给餐厅。餐厅两侧分别有厨房的延伸区和酒柜,左侧延伸区置入蒸箱、烤箱、冰箱,多功能辅助厨房,右侧酒柜,加入了入户的一抹红,延续时尚风格,收纳空间更不用说,充分利用了每一寸空间。
矩形色块
厨房与餐厅相连,虽然不大,但五脏俱全,洗切烧位置连贯,电器区空间足够。五角柜的使用扩大了使用空间和存储空间。抽屉是厨房利用率很高的部分,一个厨房拥有一组抽屉才完整。
0
4
主卧
矩形色
客户需求是需要多的储藏空间,所以做了连排的衣柜。主卧入口处空间窄小,所以只做了深度浅的柜子,预留开门的空间和过道的宽度。两组柜子用转角开放格做衔接,为深柜和浅柜做了过渡,让一整排的柜子美观完整。接着将化妆台也纳入其中,不得不说这组连排的柜子功能强大,储藏力爆表。
主卧视野好,整扇大窗让光线充分的照进房间,坐在飘窗上感受温暖。
05 少年房
男孩房的色调采用灰色和深蓝色的搭配,整体设计沉稳大气。书桌穿插入衣柜,L 型设计合理利用房间布局,紧凑安逸。06 女孩房
女孩房选择了榻榻米的设计,衣柜、书桌、休息区互为一体,连贯的动线给孩子提供了方便。更不用说榻榻米能收纳多少的衣物被褥,这间房间可以说是很小很强大了。
0
7
父母房
矩形色块
父母房重点讲究舒适,便没有做过多的设计和装饰。一门到顶的衣柜和带有软包的床,简单的设计,沉稳的色彩,给老人打造一个放松的空间。
满满的储藏空间应该是本案例最大的亮点,给与客户满满的安全感和实用性,很好地诠释了设计带给生活的方便。
//
文/图:红豆拌饭
客服
消息
收藏
下载
最近




















