查看完整案例


收藏

下载
写在开头上矩形是那一眼的难以忘怀,留下深深的羁绊,而后日思夜想,才知便是心中最想要的,用专业打动客户,让家变得更温暖。下矩形本案介绍
本案面积为 150㎡,三口之家,男主人注重家庭教育,小男孩已经 7 岁了,女主人自由职业者,喜爱烘焙,经常在家组织烘培活动。
对于喜欢的风格,他们给出了一个笼统的方向,现代轻奢。
拿到此方案,了解客户需求,先从户型分析入手,然后设计。
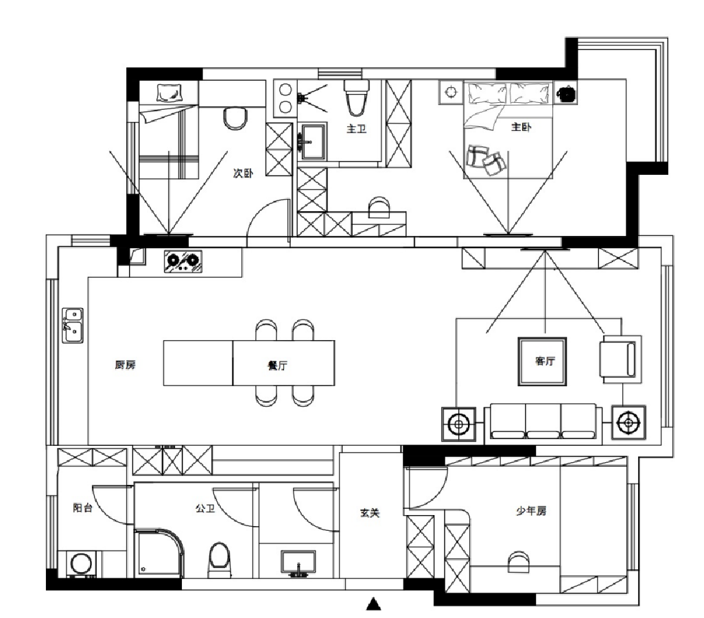
户型分析
本案户型方正,但有四大难点:
一是玄关狭小,入户收纳不足;
二是餐厨分区不明确;
三是主卧面积小,不能满足储物需求;
四是无阳台晾晒区域。
从日常生活方式为出发点,本案设计师刘成倩做了两组方案,以下为大家呈现。
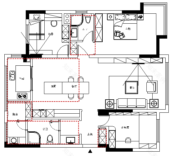
方案一
①入户左边将原先卫生间空间一分为三,一部分做了雾化空间,进门清洁让家人更健康,一部分做了卫生间,最后一部分隔出生活阳台,作为洗衣晾晒使用,此外为了弥补入户空间收纳不足的缺点,囊括了部分餐厨区域打造一个小的杂物间,一组柜子存放换季物品,让生活更有条不紊,右边一组收纳柜,以满足当季鞋子的收纳需求;
②将餐厅、厨房区域划分明确,考虑女主人喜爱烘焙,设计了吧台和餐桌相连,3600mm 的操作台,让使用更便捷,但是此设计有一不足便是灶具离烟管较远,排烟较弱;
③主卧调整门洞位置,增加一组衣柜,满足衣物收纳。
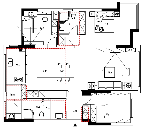
方案二
①与方案一相比,方案二未做杂物间,仅将墙面后移,打造一组收纳柜,存放换季物品;
②餐厨一体化的设计,让采光和通风更佳;
③主卧减小卫生间空间,增加衣帽间空间,让收纳更充足。
两组方案,各有千秋,设计师刘成倩根据方案二做了以下的效果图呈现。
设计师介绍:
设计中心丨刘成倩
4 年全屋定制经验,7 年家具与室内设计教育经历;
2019 年荣获《新设计需知-首届创意空间设计大奖》“最美空间设计”奖项;
设计理念:设计师是一个造梦者,为客户圆梦,少了情怀和感性,很难感知不同的人生所要的精彩。
效果呈现
PRESENT
﹀
﹀
﹀
入 户
入户一组简约高柜,无拉手配置,将极简风演绎到极致,中间开放格,放置随手物品。入户柜简单实用,满足当季鞋子收纳,柜子内部层板也可根据鞋子高度自由调节,让生活更随心所欲,无所拘束。客厅
放眼望去,客厅气质冷艳,线条感极强,多了些许硬朗,橘色和红色的注入,增添了柔和明媚之感,冷与暖的碰撞,增强了空间的设计张力。细品之,客厅每一处设计都尽显设计师的用心,3*3*3 的设计法则,处处可见,深浅搭配,层次鲜明,创造满满的艺术质感。
电视柜外观根据二八原则设计了开放格,萨博石纹的灰在光影的渲染下华丽有灵气,更能凸显业主的收藏物。铝框玻璃门的搭配增强了电视柜的品质,弱化了柜子的体量感,整体更低调奢华。
沙发背景墙采用了白木纹与拉斯加橡木结合的设计形式,暖暖的色调融化了灰白拼接的窗帘带来的冷傲,空间温馨十足。为化解空间低饱和度颜色带来的距离感,橘色沙发和红色单人沙发的配置,不仅整体和谐统一,更彰显个性。餐厨一体化
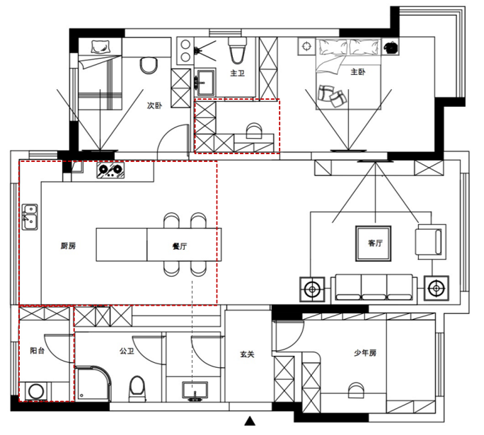
餐厨一体化设计,无形中增加了使用空间的面积,让空间充满更多可能。
吧台与餐桌相连,大面积的操作台,可让女主人不受拘束。
靠墙高柜嵌入烤箱等电器,整体整洁有序,有效减少女主人烘焙行动路线,更好发展兴趣。
高柜嵌入电器,上柜收纳酒水,下柜放置面粉等物品,合理分配,让生活通过设计井井有条。
中厨与吧台设计相呼应,灰色门板搭配金色拉手,时尚感十足,白色大理石中和了灰色带来黯淡,简约素雅。L 形的厨房操作路线流程,让做饭不再手忙脚乱,享受做饭的快乐。
客餐厅相通,采光极佳,空间通透明亮,兼具温情和艺术的场所让家人在此感受生活的乐趣。
主 卧
白色+棕色
作为时尚界经典的颜色搭配,奠定了主卧大气时尚的基调,配以金属艺术装饰,空间格调满格。窗帘的颜色延续背景墙,棕、白的顺序让颜色更统一和谐。
衣帽间
将卫生间分隔一部分空间作为衣帽间和女主人的化妆间,不仅增加了收纳空间,更让洗漱、化妆、穿衣一气呵成,有效节约了时间成本,让生活更便利。
主卧衣柜采用了一门到顶的设计,白色高光 PET 门板配以黑色拉手,简约有型,品质感满分,满足业主对品味的追求。
次 卧
次卧
材质采用了大理石与木质的碰撞,冷与暖的交融,营造高级的氛围。一盏折叠铁艺壁挂灯,点缀的设计充满文艺气息,更方便业主根据需求调整,好看实用。柜子沿用主卧搭配,白色+灰色的高级配色,使人内心舒适放松,心情愉悦。
儿童房
儿童房是孩子成长的空间,在设计时考虑孩子的各方面需求,于是设计了榻榻米+书桌+书柜+衣柜的组合,满足睡觉、学习、收纳的功能,一组展示柜更是为空间添彩,大肚量的收纳可放置孩子喜欢的玩具和奖品,一览无余,创造一个属于小朋友自己的小天地。
因空间柜子较多,如果设计不好则会造成空间的压抑,此空间在设计时耗费很长时间,也处处体现设计师的用心。未到顶的吊柜,增加空间的通透感;开放格的打造,延伸了视觉空间,让空间变得开阔,置身其中让人感觉轻松快乐。
设计问答
★问:对于轻奢风格,你有什么样的设计心得?
★答:现代轻奢风主要以现代简约风为基础,融入了精致的软装元素,彰显了高品质的生活品味,与时下流行的“轻硬装、重软装”理念非常符合,硬装上主打简约、线条流畅,不会过于浮夸。
在色彩选择上,现代轻奢风格色彩偏向高级感,比方说驼色、奶咖、象牙白、黑色、碳灰色等等,演绎一种“低调的奢华”,让空间的质感更加饱满,充满简约、轻奢气质。
材质上常常会运用大理石、壁纸、纺织品、黄铜元素、镜面、丝绒、木饰品、瓷砖、皮饰等,其中木饰面元素具有温润自然的气质,用在现代空间恰到好处。
文:小新
图:红豆拌饭
客服
消息
收藏
下载
最近

























