查看完整案例


收藏

下载
每个家都有自己独特的风格
追求心灵的归宿
不盲目从众,不浮夸
彰显主人独特的品味
独特的现代轻奢设计
打开了幸福舒适的品质生活
现代风格,追求时尚与潮流。
本期为大家分享的是来自
贵州张秀洋
设计师笔下的美好家,色彩柔美有连贯性,家具实用而有设计感,让简约的家居,卓尔不凡。
1
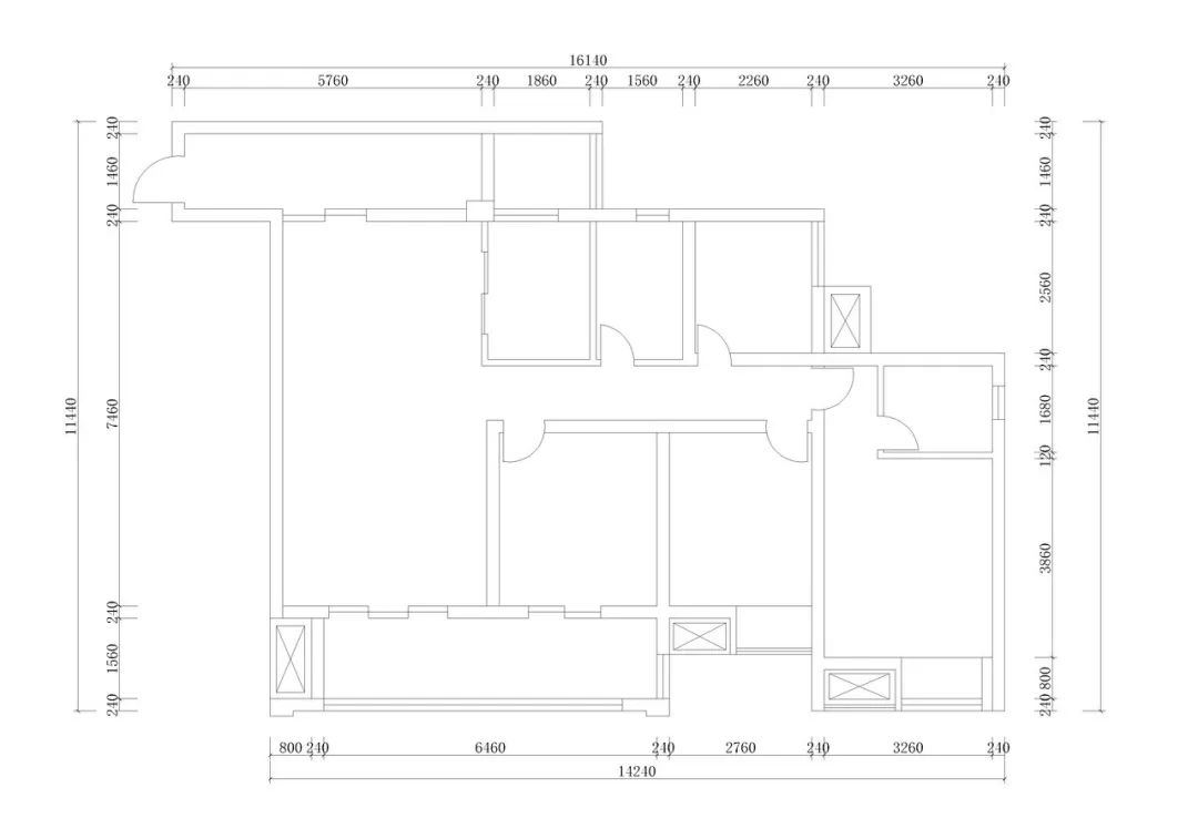
户 型 解 析
▲
原始平面图
▲
优化后平面图
∆面积
:120m²
∆户型分析
:四室两厅一厨两卫,南北通透,采光良好,动静分离,中国式典型三代同堂。将北边小阳台打通,扩大厨房使用空间。
∆客户诉求
:希望装修成现代轻奢风,以暖色调为主,简洁明朗。
2
玄 关
卸下“负担”,开启极致生活。玄关柜,靠入户处设计成换鞋凳,穿衣镜及底部镂空的设计,细节处体现精致感与简约感。
由于入户狭长,应用设计手法用于隔断,隔离出储物间,用于储藏男主喜爱的红酒,巧设布局,合理利用入户空间。
3
餐 厅
餐厅是家的“中枢神经”,连接厨房、入户、客厅 ,餐边柜靠墙,留出充足的行走路径。一侧留出一部分来放置充满民族感情的神龛,让家充满真情与信仰。
4
客 厅
开放式的布局,墙面与顶面造型干净利落,体现出现代简约生活的品质感。软装契合整体空间基调,既随性又经得住推敲。
悬空式的电视柜方便清理卫生,遵循二八收纳原则,设计感与实用性并存。沙发为围合式的半圆沙发, 以茶几为中心,造型感十足。
5
厨 房
原本厨房空间较小,拆除原来的阳台,将其纳入厨房空间。厨房布局呈U字型展开,在满足厨房的基本功能需求外,还设置了嵌入式电器高柜,将整个空间打造得现代且别致。
6
主 卧
卧室是一个相对私密的空间,需要一份安静和美感的同时,更要注重舒适,存储收纳自如。采用高颜值的平开门设计,整体风格采用轻奢元素,温馨又时尚。
7
儿 童 房
蓝色可以说是男孩的代表色,有着海洋般的广阔和青春气息,而点缀的灰色增加稳重感。软装的搭配,让少年房充满童真与趣味。
8
多 功 能 房
通过定制榻榻米床的设计,可以将小空间利用更加透彻,结合书桌、收纳柜的组合设计,让小空间显得更加合理实用。
9
长 辈 房
老人房与生活阳台连通,方便老人的使用。大多老人都不喜欢过于花哨,无论是空间的色彩还是灯光的设计上,都比较简约朴素。温暖的木地板,优雅的灰,为老人打造了一个温馨而舒适的起居空间。
10
阳 台
客厅储物空间不足,阳台空间来凑。储物区+洗衣家务区结合,最大化利用,台下盆设计更合理,无卫生死角,嵌入洗衣机整体协调,简洁养眼。
另一侧是闲暇时间,可以带上自己的小宠物一起打个小盹的美妙之地。日有阳光、夜有月光,这里,可以拥有心中的诗和远方。
扫码观看720全景~
“轻”是一种生活态度,不张扬,不做作。
“奢”是对生活的诉求,有品质,有格调。
这样的家,你pick了吗?
客服
消息
收藏
下载
最近





























