查看完整案例


收藏

下载
你的家也是mini size吗?在选择小户型居住时,也许你会担心,家中空间不够,无法容纳生活所需,如:社交,待客,储物...其实,这些问题都可以通过合理的布局以及定制适合的家具来解决!
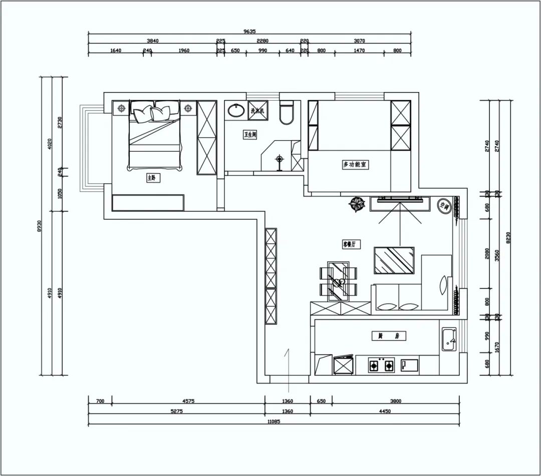
本期要分享的是一套86㎡小户型家装案例,以现代简约风为主基调,还巧妙地融入了一些轻奢元素,看起来精致又浪漫。
本期,我们一同走进
山东青岛首席设计师张雪
眼里的美好家~
方案背景
风格:
现代简约
面积:
86㎡
户型:
两室一厅一厨一卫
屋主需求:
两人居住,朋友较多,会经常小聚,有餐边柜和酒柜需求。女主人喜欢烘焙,厨房要求储物多。
设计分析:
本案是一对年轻的小夫妻,因为是两室,储物区不多,所以后期加大了储物的位置:
✔
入户增加一排储物柜,但不是满墙,防止拥挤
✔
因卫生间过小,后期向主卧借用了空间
✔
两间卧室分别增加了大衣柜,并将次卧做成多功能房
效果图展示
带有生活气息的高颜值
入户
▼
鞋柜与酒柜一体化,玻璃门与通高门板相呼应,灰白相间,进门处的黑板墙,开敞的换鞋凳,以及穿衣镜,
满足当代年轻人的浪漫情怀与小资格调的同时,最大化的增强空间视觉效果。
绿植让入户更有生活气息,忙碌的工作有时疲惫不堪,回到家中在此处便能回归宁静,这一隅空间,保持着对生活的热爱。
拥有独特个性的多彩客餐厅▼
客餐厅采用一体化开放式布局,让视线一览无余,气质利落贯通。上下分离的餐边柜,可满足平常小电器与餐盘的摆放,闲暇时,三五好友饮酒谈乐,温情、惬意。
蓝色冷静而神秘、白色纯净而凝练、黑色雅酷而极致、红色热烈而鲜艳,粉色清新而可爱,绿色明朗而活波...
整个空间呈现出丰富的颜色,各个颜色用自己独特的个性共同勾勒出艺术的维度
,融合碰撞、仿佛画卷的展开立体又鲜明
。
“奇妙超能力”的全能屋榻榻米▼
全能屋
榻榻米是小户型救星,它能够让小房间化身“全能屋”
。榻榻米铺上软垫,平时周末懒得动,可以窝在窗边看一整天书或者视频,也可以约上三五个朋友,一起聊聊天打磨时光。
除此之外,这里也可以是卧室,可以是书房,甚至可以是储物间!屋里的绿植,花束都编织着生活的仪式感,对空间氛围起到画龙点睛的作用,也让空间气质瞬间提升。
活泼自然又温柔素雅的心灵休憩地▼
卧室设计通体式衣柜,左侧开放格可放置书籍摆件,既不会因吊灯床头柜遮挡打不开门,又能使衣柜整体活泼自然。
右侧衣柜可满足当季的衣物存放。电视柜与梳妆台一体,存储梳妆两不误。
高低错层的设计更有层次感,在这样光线充足的一角,画个精致的妆容,此刻连阳光都变得温柔起来。
床头背景墙采用深青色,与白色门板形成鲜明对比,让整个卧室空间更加安静,舒适
。飘窗是窗前的一抹亮色,坐在这里饱览窗外美景,也可静坐看书刷剧,在充满欢愉的间隙里,听时光从肩头划过的声音,慢生活,小确幸。
每天都要享受的
“
美味”厨房
▼
为了营造视觉通透的效果,
厨房采用白色大理石纹与菱形小砖做墙面铺设,灰杉木与米白吊柜相结合,整洁大方
,最大程度的保证厨房的明亮整洁。厨房里惬意的烹饪,温暖的烟火气从这一刻开始。
扫码观看720全景哦
城市越喧嚣,越向往回归理想的人居生活。渴望一方净土怡然自得,却又不敢远离俗世,现代轻奢风便是不容错过的选择。本案通过设计,让这个家充满浪漫气息,时尚与轻奢感并存,让小户型也能享有情调生活!
客服
消息
收藏
下载
最近






















