查看完整案例


收藏

下载
家是什么?
家是满屋子的喜欢和欢喜。
最近热播的《小欢喜》,小编身边的人看完以后,都纷纷夸赞各位演员的演技,也有细心的朋友发现三家的不同的装修风格,很贴切每个家庭的人物的性格,体现出不同人物细腻的情感和个性
。
装修风格大抵反映了一个人的喜好和性情,本期设计师王雪雨,根据业主喜好和个性,为这个幸福的三口之家,演绎一份简欧轻奢的浪漫。
下面就让我们一起揭开《小欢喜》
的面纱!
方案背景
设计说明:
空间灵感与生活美学兼顾,营造出温馨时尚的理想主义家居,给灵魂一席安静栖息地,无论繁忙日常还是情调生活都能平衡得完美。
成员背景:
一家三口,夫妻两在公司上班,有小资情调,有一个女儿。
设计要求:
喜欢简欧轻奢风格,要有时尚感。
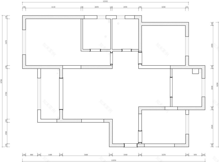
原始
户型图
户型缺陷:
卫生间的门正对着入户大门。
方案一
方案二
改造方案
:
1、 将
卫生间的门进行了移动
,并对入户柜和电视墙的位置新建了部分墙体,用以遮挡卫生间的门与入户门之间的关系;
2、 在主卧的位置,做了2种不一样的方案,第一种是正常布局,第二种是将卫生间进行了扩大,做成
三分区
,对主卧卫生间进行压缩,改成衣帽间,
扩大存储
。
入户
玄关入口处映入眼帘的是一抹纯净的白色鞋柜,配上金色的拉手,看起来高雅美丽。左边设计了坐凳,让归家的主人能够舒服的换鞋,还配有镜子和灯带,这样,在出门前还能检查一遍仪容,着实贴心,让人爱上回家的感觉。
设计师特意延长了沙发背景墙墙体,正好与电视背景墙相对齐,正好留出了内嵌式入户鞋柜的空间。
客厅
客厅给人清新亮丽,又不失豪华、浪漫的印象。用简约金属线条代替繁复的花纹,跳跃性的橙色增加空间的活泼感,结合现代线条感的挂画,将整个空间从欧式的感觉中挣脱了出来,添加了时尚感。
餐厅
在餐厅的色彩上运用的清新可爱,选择优雅白、香芋粉为主色调,些许绿色、橙色提亮整体灵动感,用金属的线条装饰来增加空间的时尚感。
厨房
Gourmet breakfast
Gourmet dinner
厨柜采用高级灰色,配上金色拉手和白色瓷砖给人优雅精致的高级感。 为满足冰箱放置其中,对此特意成小U型厨房,因下水和烟道的管子设置在一起,所以对于五区的排序已经固定了位置,过大的柱子,影响了切配区的使用,利用专利五角水槽柜,来增加切配区的面积,在灶具下面设计了碗篮、锅篮,方便收纳,更在旁边增加了三抽,用来放置一些常用的厨房用品。
主卧方案1
用白色、粉色打造浪漫的卧室情调,华丽尊贵的金色和雅致的蓝色在空间内与之和谐交融,营造出了多元、大气、
华丽又不乏独特品味的家庭环境。
在主卧的设计上,设计师将衣柜放置在床的正对面,让房间的深度比例更加和谐,并利用
“二八”比例
,开放部分占20%,放常用的物件,其余80%太高和太低的地方,做成有柜门的形式,藏起不常用的物件,显得更清爽。
在床头的位置,使用梳妆台代替一个床头柜的使用,在不减少存放空间的同时,又增加了梳妆的条件。
主卧方案2
由于业主是一家三口,一个卫生间可以满足一家的需求,所以设计师扩大了公用卫生间面积,压缩了主卧的卫生间,将之改成了
步入式衣帽间
,不仅增加了收纳功能,又对公用卫生间形成了三区的分离。
多功能房
■
■
■
■
■
现有的两个卧室已经满足家庭人员需求,所以将第三个卧室,改成了多功能房间,
榻榻米
+衣柜+书桌一体式
设计
,既
可当
书房功能,有客人来访时,又可以在此休息,还可以作储藏室。
阳台
在阳台的两侧,分别做了便于储藏的杂物柜和洗衣柜。在洗衣柜中设计了高低台面,便于洗衣机的嵌入,在吊柜上,加入了开放柜的应用,便于拿取物品。相对于洗衣柜,杂物柜的设计就简单很多,主要用于储存大件物品等收纳的问题。
时尚与现代融合,实用和浪漫并存
在低奢中沉淀细节,在细致中品味人生
温馨是它对家的完美诠释
用这份简欧轻奢
演绎人间真实《
小欢喜
》
献给懂生活的你!
文案:托妮托妮酱
客服
消息
收藏
下载
最近


































