查看完整案例


收藏

下载
需求引领空间,设计提升价值,设计除了要满足空间基本功能外,更需要满足居住者深层次的需求,得以提升空间更多的价值!
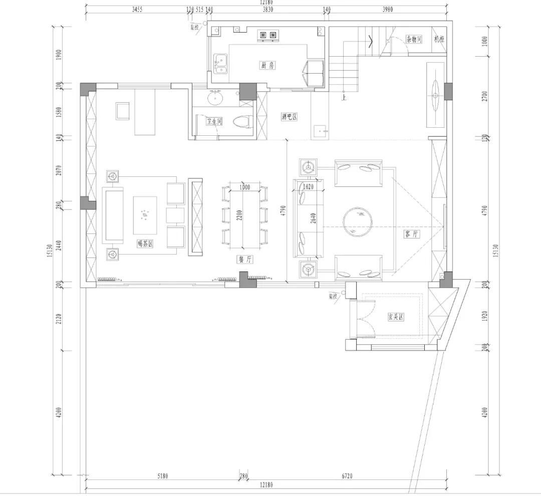
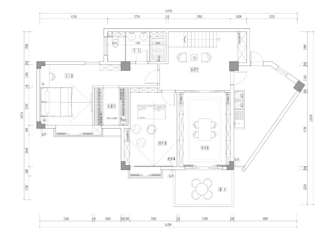
平面图
平面图
施工过程
本案户型是复式楼,业主是一对热爱生活的年轻夫妻,男主人爱喝茶交友,女主人是个资深手办迷,他们互相支持着对方的兴趣爱好,相伴成长。
设计师根据两位业主的兴趣与生活习性,对区域重新进行了规划,满足业主所有的需求。
一间独立的茶室,让男业主可以招呼朋友,杯茶言欢。
一间独立的手办书房,让女业主可以展示爱好,享受独属于自己的 DIY 时刻。
客厅
建筑是凝固的风景,光影是流动的景观。柔和的动线把空间划分出不同的功能区域,沿着动线,客厅、餐厅、茶室连贯串通。通铺的灰色大砖在光影的交错中释放出高级感,同色系的墙板、家具、茶几、窗帘提高了整个空间的格调。
餐厅
沿着动线,通过隔断分区,背靠沙发的位置安置了餐厅,波浪形的餐厅灯延伸了餐厅的空间,敞阔了整个视觉空间。开放性的餐厅增加了业主与家人的互动,当业主亲手烹煮美食佳肴时,食物的美味与空间的韵味相互映衬。
吧台
过道与吧台相连,午后,小憩茶香,让生活情不自禁的慢了下来。智能灯光的点缀,增加了空间的层次感。闲暇时光,品一杯红酒,抿一杯咖啡,让忙碌的生活更加有了情调。
茶室
阳光透过落地窗洒进茶室,为充满东方古韵的茶室增添了蓬勃的生命力。在这里,男主人可以独自品茗,卸下一切,放空自己,暂时忘却世间的浮躁,一个人反复回味一杯清茶的滋味,也可以邀三两好友,以茶为媒,共话桑麻。
一间茶室,一隅宁静,闲来细啜慢饮,享受岁月静好。
卧室
简约却不单调的床品,简单的陈设,在暖意灯光的映衬下冷暖有调。卧室内嵌大大的衣帽间,木调底板铺垫出温雅的自然情调,铝框架构的金属特性自带年轻与摩登个性,结合着通透的玻璃饰面,无不显示着主人的格调。
手办室
这是女业主专属的空间,一间时尚功能齐全的手办工作室。大大的落地窗,简洁宽敞的工作桌,整屋的展示柜摆满了女主人收藏或者亲手制作的精美手办,还配有专属氛围灯。透过手办工作室玻璃向外看着城市的点点灯光,身边是心爱的手办,有一种梦想照进现实的踏实感。
每件心爱的手办看起来都是精美绝伦的艺术品。走进这个空间,就能深深的感受到女业主对生活的热爱,对自我的爱好的追求。
不张扬,不炫目,将认真生活的样子藏在洒脱的态度之下。这里是家,一切都是自己喜爱的模样。
项目名称:鑫润花园
项目地址:广州市番禺
项目面积:220㎡
装修风格:现代简约
设计师:梁璟堂
往期案例赏析
理想家居
END
广州公司客户服务热线:020-37883377
咨询装修设计、工艺报价。了解华浔广州公司最新动态。现在预约,即享受免费上门量房服务。
客服
消息
收藏
下载
最近





































