查看完整案例


收藏

下载
本案是亚太空间设计新锐设计师周应钦 2021 年最新的全案住宅改造案例,项目位于广州市越秀区环市东路君汇世家,总面积为 210㎡。为了给客户提供优秀设计,设计师多次实地测量分析并与客户深度沟通,凭借专业的知识、独特的设计思维对空间进行颠覆性的设计改造。
△深化设计
△手绘解析
△开工质量锤,一锤定音
△装修前现场
△施工现场
△初见雏形
ONE | 入门万象,纳万景
设计师通过空间置换转移的手法,合理规划新的空间领域,让原本略显狭小的玄关区得以延伸拓宽,正对大门的艺术屏风配合镜面的反射效果,视觉上极具韵律感的线条结构给人带来仪式感与秩序感。
△装修前后对比
迎着玄关而进,空间一隅的水吧区很大程度地增强了空间的张力与延展性,丰富了空间的层次。同时,增加了更多元的生活方式场景。
往前可见一览无遗的客厅,柔和的意境从客厅开始,设计师引入自然光线营造空间的律动,阳光透过落地窗,将斑驳之影洒在沙发之上,在时间与空间的交错中,仿佛感受到时光的痕迹,细腻、流动、温暖。
TWO | 情感空间,筑故事
与客厅链接的厨餐厅,设计强调空间功能与场景的流动与融合性,并不只是线性的叙事,而是通过不同人在空间中的行为,定格一幕幕戏剧化的瞬间。一张圆桌、几张椅子、炊烟袅袅、餐前坐定,欢声笑语,故事由此展开。
THERE | 去芜存菁,溯本源
书房做为动静区的过渡空间,向外延展,向内合并,赋予空间更多的想象。整个空间去芜存菁,利用通透的空间形态,增加空间多层次的视觉效果,采用统一的色调,溯本源,让置于其中之人能沉浸在知识的海洋中,都市生活的疲惫与压抑能在此一概驱散,寻得片刻宁静。
ONE | 维度相融,展未来
对于孩子而言,儿童房是属于他们的快乐星球。步入儿童房,抬头可见艺术家手绘创作的充满志趣与未知的星空图案,灯光渲染与场景结合,提升了空间的维度感,并增强孩子对未知的探索,给孩子们的想象力插上翅膀,天马行空肆意翱翔,让他们在属于自己的快乐星球肆意玩耍与成长。
在设计布局上,设计师打破常规,利用飘窗台打造书桌学习功能,并在两侧设置相应的衣柜和书柜,也给中间腾出足够的娱乐空间,让孩子学习与娱乐两不误,松弛有度。
主卧通过木饰面的矮护墙板瞬间将人们带入另一种情绪,结合竖向的硬包材质,增加了空间的视觉高度,极简也不失温馨。
一天的开始与结束,清晨到夜阑,都在这里发生。卧室空间通过对人居需求进行细腻解读,重构日常场景。一阵微风、一束阳光,自然与空间相融,更增添舒适惬意的氛围。
灰调子的衣帽间中间背板,隐藏着可通风的门窗,巧妙的细节设计既美观又保证了日常的对流通风功能。
主卫采用干湿分区,独立垫高的浴缸区温暖浪漫,顶部的水波纹不锈钢板映衬着在水光作用下的云朵灯饰,泛出波光粼粼的戏剧美感。橙红色的水泥漆也在认真地描绘空间的喜乐。
本案设计师希望以一种现代简约的手法诠释一种“未来”的生活方式,让空间恢复纯净而清新的视觉效果,同时为理想家营造出愉悦而明亮的氛围,呈现一种先锋的空间表达语言。
相关图纸
▽
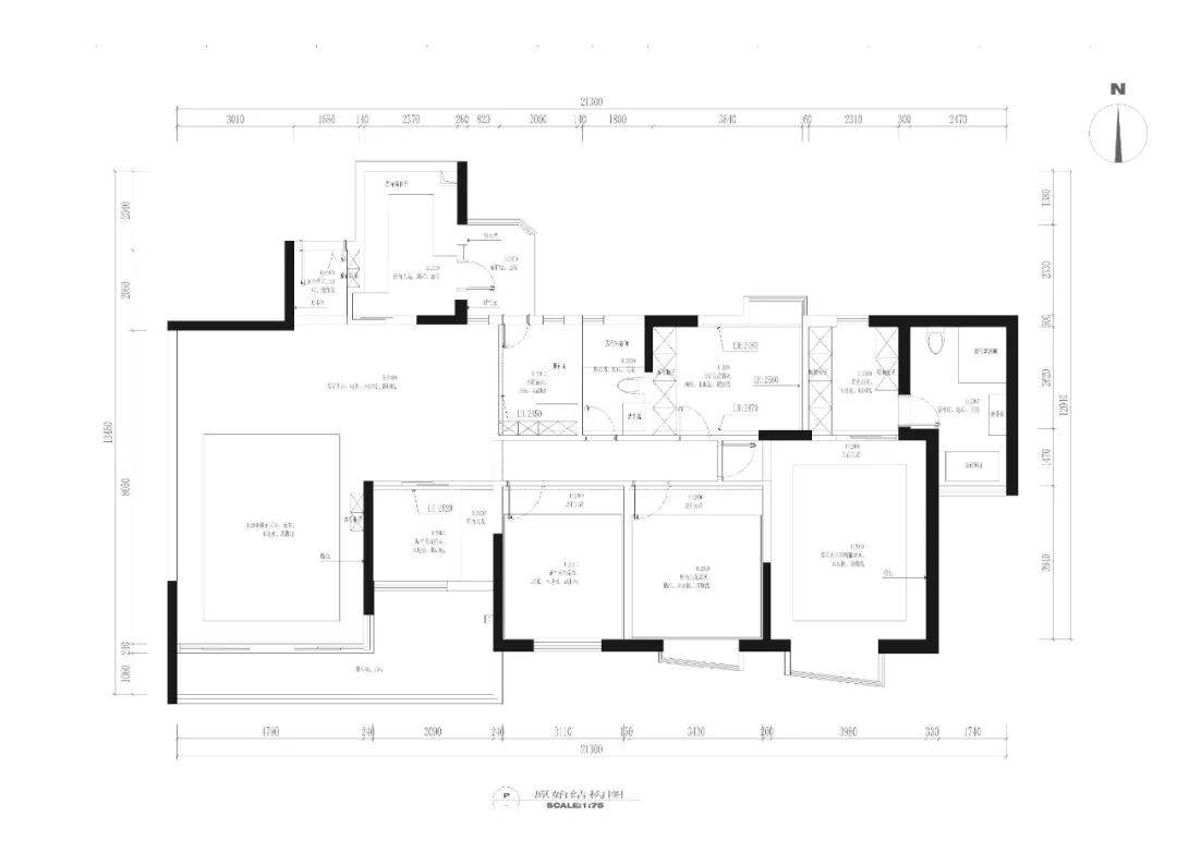
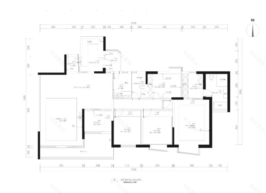
△原始平面图
△平面设计图
项目名称|君汇世家
项目地址|广东广州
设计单位|华浔品味装饰集团
设计总监|周应钦
主材团队|王维东
软装团队|曾若华
项目监理|严建华
完工时间|2020.12
空间面积|210㎡
周应钦
居然设计中心|设计总监
意大利米兰 HOAA 设计学院 设计师
国家注册高级室内建筑师
所获荣誉:
2006 年,作品入选《现代装饰》杂志。
2008 年,广州“信息时报”设计大赛最具创意奖。
2009 年,广州“南方都市報”年度设计大赛优秀作品。
2009 年,第三屆广州建筑设计大赛住宅空间类铜奖。
2011 年,第一届金馬克杯大赛优秀奖。
2013 年,第五屆广州建筑设计大赛办公室空间类银奖。
2015 年,第三届金馬克杯大赛金奖。
2015 年,中南地区国际空间环境艺术设计大赛铜奖。
2016 年,中国筑巢奖办公室空间类优秀奖。
2017 年,第四届金馬克杯大赛办公空间银奖。
2017 年,第四届戛迪杯设计邀请赛金奖。
2018 年,第三届中南地区国际空间大赛金奖。
2019 年,第五届金马克杯大赛大宅别墅类银奖。
2019 年,第五届金马克杯大赛最佳办公空间奖。
居然设计中心是华浔品味装饰广州公司旗下一支特别优秀的团队,专注于高端别墅、大宅的品位设计,擅长将自然与人文环境、业主需求相互融合,推陈出新,同时以提升空间内蕴之美,缔造理想的家居之所,用专业服务业主。
END
广州公司客户服务热线:020-37883377
咨询装修设计、工艺报价
了解华浔广州公司最新动态
现在预约 即享受免费上门量房服务
客服
消息
收藏
下载
最近















































