查看完整案例


收藏

下载
家永远是没有定义的,随着时间的推移,家庭的融合,我们对家的需求也是在不断的变化着。专属的室内设计,让我们的居住之所,不仅只是视觉的享受,更是能体现我们的思想状态与生活方式。
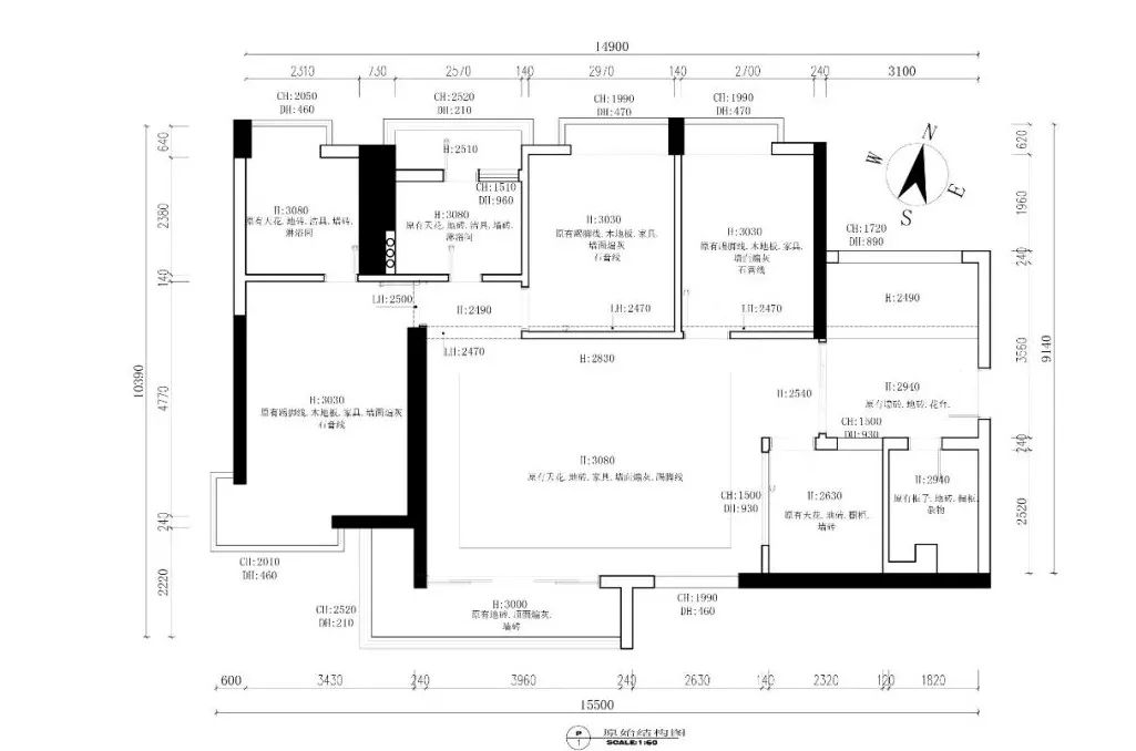
平面图
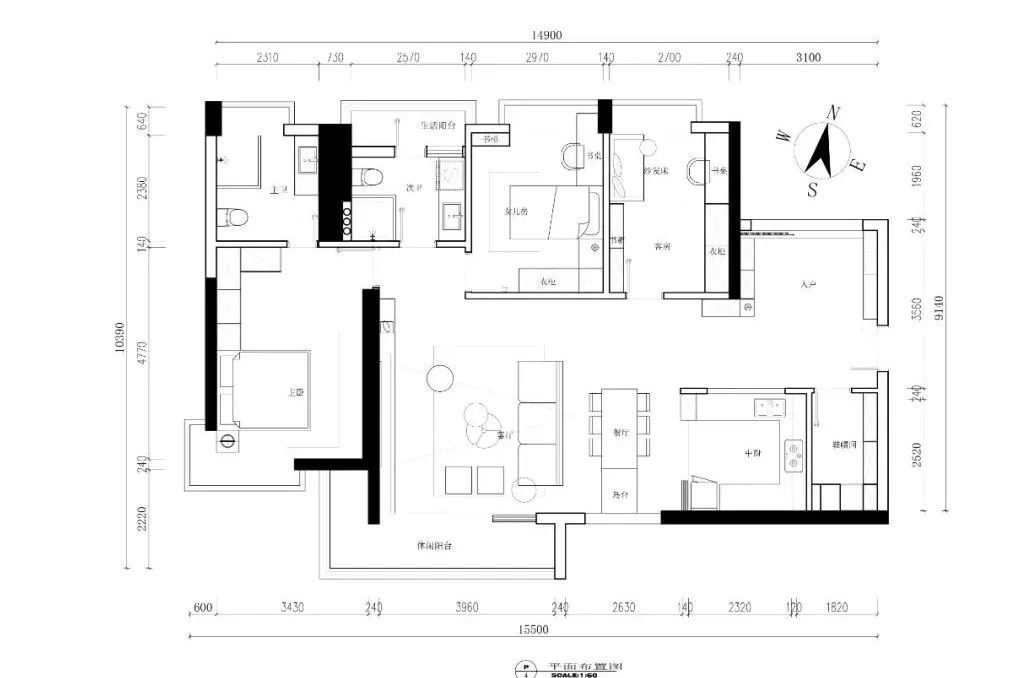
平面图
施工过程
本案的业主是平凡又幸福的三口之家,在房子已经住了很多年了,想改变多年来的陈旧设计,用新的设计迎接新的生活,设计师通过与业主的沟通,在设计与空间利用上做了大量的修改,旨在为业主提供良好的生活,学习,休闲放松的美好时光。
温馨小家暖人心
有木可栖助人长
客餐厅
光与色的融合能赋予生活宁静与美好,设计师引用自然光影与当代艺术进行糅合,用光与色交织一幅五彩斑斓的多彩生活画卷,让阳光照进生活。当业主推门而入,没有零碎的格局切割、也没有断绝视线的高墙,只有不断向前推进的敞阔视觉空间,以及映亮了角落的温煦日光。
客厅是家人共融的空间,餐厅是家人互动的空间,设计师将客厅与餐厅以动线贯穿起来,增强了空间的延伸感,也调动了空间的流动感。整个空间整体的色调都是比较明快和简约,摈弃复杂的造型和跳脱的色彩,回归最本质的朴素的环境,为居者带来一个温暖、愉悦的归心之所。
卧室与书房沿用了客厅的主色调,以绿植点缀整个空间,为房间增添了一丝生机勃勃的氛围,让人于房间中能自然地静下心来。
一个温馨暖调的家,给了业主在外拼搏可期待的港湾,业主新的生活也从现在开始。
项目名称:海滨
花园
项目地址:
广州市天河区
项目面积:
150㎡
装修风格:
现代风格
设计师:
黄娜
往期案例赏析
理想家居
END
广州公司客户服务热线:
020-37883377
咨询装修设计、工艺报价
了解华浔广州公司最新动态
现在预约 即享受免费上门量房服务
客服
消息
收藏
下载
最近





















