查看完整案例


收藏

下载
设计单位:万千设计
项目地点:中国天津
示范区面积约:2,567 平方米
总建筑面积约:68,000 平方米
建成状态:部分建成
设计师自述:蒋晓丹 万千设计创始合伙人 设计总裁
北方的城市和海域给了建筑师们别样的灵感,我们被她那粗犷的自然之美与细致的人文精神所吸引。当我们试图在建筑形式上去寻找一个代表性的语言,一个轻盈的飘浮于厚重基座上的形体,一座壮丽的海岸线上缓缓启航的明日方舟形象便出现了。
©建筑形体与滨海意象 | 万千设计
统一性与
对立性
「蹁跹而来,踏浪而去」
本案落址天津梅江,处于水上奥体、文化中心、梅江生态区三大黄金板块交汇处,占据城心主轴。整体规划围绕城市交通核心节点,集现代住宅及商业业态于一体并融入 TOD 发展模式。
建筑在城市中生长变化,改变城市,亦被城市所影响。
我们试图运用地域与文脉的统一性与在地性表达,提取以海滨城市为起源的“轮船、方舟”等形象语汇植入其中,以“游轮在绿谷林海启航”为空间线索,通过波澜起伏的立面曲线重新定义城市天际线,呼应天津海上门户的港口文化。
©效果图
万千设计
正如柯布西耶在《走向新建筑》一书中表示:当他从轮船中寻找建筑的可能时,他看到的是胆量、纪律、和谐与宁静、活力,还有刚硬的美。从最初构想再到草图勾勒,一座致敬时代的游轮巨艇跃然纸上。
©设计手稿 | 万千设计
我们通过强化线条与色彩材质的冲突感,而呈现一种全限的美学体验。在形体上,建筑上部弧线与下部基座的斜角形成柔软与硬朗的空间较量;在材质上,大面积光洁的玻璃面与基座上粗糙的石材面构成第二次对立。
形体与材质的二次对立
建筑的分层逻辑在玻璃与石材界面的虚实对立中得以体现,体量感的厚重与轻盈亦贯穿其中。基座与展厅作为浑然一体的整体,让建筑在递进而非单一,在地而非空想,折衷而非明了的设计语境中,达到一种微妙的平衡,呈现出张力感与和谐感。
空间序列与洄游动线
「因势合宜,穿越林海的归家之旅」
©效果
图 | 万千设
计
大区以“轴线礼序”的围合之势为整体规划逻辑,我们依据地势、朝向等因素构建多形态下的建筑、景观的序列组合——内部 5000㎡的一核·三庭中央花园与外部 10000㎡林谷公园呼应着“双核绿肺”的生态结构,从而定义自然延展、户户有景的空间多重叙事。
©总平面图
万千设计
基于对场所的感知,洄游动线依次布置为听海-起航-入境-揽盛-归港五进空间。
一进:天津独有的公园入户,穿越林谷绿海。
二进:20 米超宽的门户大堂,豁然远航。
三进:超大尺度观景架空甲板,秘境式流线。
四进:穿越门厅,5 千㎡中央庭院,一揽盛景。
五进:酒店式大堂,高定石材镶嵌,极致归家。
两条小径的叙事线索:「元素、符号、情境要素下的空间互感」
整个建筑共设置了两条互相缠绕且迥异的入口路径:一个蜿蜒而入,另外一个径直前行。正如博尔赫斯在《交叉小径的花园》中指出:我将我的交叉小径的花园,遗留给各种不同(并非全部的)未来。序列延展的方向不同,空间容器中叙事线索也将充满可能性。
不同路径下的空间叙事
沿着公园两端蜿蜒而入,映入眼帘的首先是仿若海滨粗糙岩石的横向建筑基座,光洁的弧形玻璃镶嵌于红色花岗岩当中,与园内起伏的地貌相呼应,形成流动变换的步道游线。通透的玻璃面继而成为主体空间的暗示,引导着人们朝着目的地进发,从而最终发现基座中央隐蔽在阴影下的入口。
建筑以一种自我诉说的方式,完成了一次序列指引——发现线索——主体展现的空间探索过程。
从公园两端蜿蜒而入,循迹过程中,建筑整体造型自然融入周围环境,同时又与周边景观相互呼应。弧形曲线剖面轮廓呼应着地形与远丘,周边蜿蜒的路径则成为建筑体量不规则立面的延伸。5000㎡中心花园、10000㎡林谷公园,超 10 万块小料石铺就 400 米彩色林谷跑环,一个漂浮的漫步绿洲与明日方舟形成强烈对话,有机融合成一个整体。
©效果图 | 万千设计
正如巴埃萨在建筑的外立面尽可能做到镜像对应与对称布置,进入场所的另一条路线同样呈现着轴线对称的空间序列。蜿蜒的线形、交叠的水池、绵延的绿意,广场对称分布的景观构成了一幅静谧中正的画卷。沿着中心广场径直前行,横向延伸的水平线以足够的广度带来空间的稳定感,玻璃面两侧的斜向线条又打破了绝对的静止,描摹出游轮在离港启航刹那间的动态,动静分解之中展示建筑的多面性。
从中心广场径直前行,不同路径勾勒出建筑序列的叙事风格,以元素(粗犷岩石与光滑玻璃的冲突)、符号(海滨之域景观的在地性表达)与情境(游轮启航的模拟动态)三要素形成空间互感,为置身其中的来者营造别样的游历体验。
场所精神下的三重奏:「层层递进,虚实相生」
在场所精神的营造上,我们通过物境、情境、意境的三境耦合与层层递进之中构筑三重空间,试图还原人们心中理想的家园。
第一重空间:物境,探索
充满未来感的入口空间似乎打开时空之门,超尺度无框玻璃移门与极具视觉冲击力的星空天棚让人仿佛置身于太空星舰之中。从流动的室内向外借景,透明的玻璃幕墙模糊了室内和室外的界限,绿意盎然的室外景观尽收眼底,体块营造的自然与科技相互融合,开启探索未来领航生活的第一重空间。
室内外界限模糊
第二重空间:情境,希冀
通透的开放式空间与轻盈立面融为一体,12m 高的挑空大堂框出中庭景观,圆形光顶将光线聚集于室内,折射出明与暗的形态变化。自我生长的空间想象于穹顶中冲破而出,照进生活的各个角落。以景述情,承载未来生活的希冀为第二重空间。
12m 高的挑空大堂
第三重空间:意境,领航
第三重空间作为不同维度的空间被并置于同一个空间线中,由室内过渡到室外,全幅外围景观与城市界面尽收眼底。
在时代浪潮奔涌向前的背景下,建筑滋养并更新城市的丰富性与多样性,也见证着其生命的沉淀、更替与发展,正回应了建筑的喻义:领航之心,大观天下。
©墙身透视|万千设计
室内室外过渡自然,更替发展。
从匠心品控到精准呈现。
「选材定制,数字模拟,施工优化,细节调控」
选材定制:石材凿毛研究
选用福建水头精选红色石材,与专业工匠研究凿毛工艺。定制雕刻石材经过火烧处理去除人工痕迹,并涂刷防护剂提升色彩。通过对材料的精挑细选以及工艺的反复尝试,实现了设计方案的预期效果。
数字模拟:入口穿孔板研究
入口穿孔板的设计和做法,经过了过多轮方案数字化模型推导和 1:1 打印模拟,实现了最佳的入口穿孔板吊顶效果。
施工优化:玻璃做法现场调整
原方案采用的超白玻璃现场较明显暴露室内结构,影响外立面形象,而且过于通透的玻璃使得室内感受不佳,现场及时作出研判,选择合适的贴膜进行调整。
原方案采用的隐框玻璃肋,由于打胶工艺无法保证完美效果,现场果断调整,采用定制不锈钢装饰条将内外拼缝以及玻璃肋进行包裹。
细节调控:高反射釉点玻璃、背板喷绘
高反射玻璃在白天对绿化景观有效反射,形成绿化景观与建筑的巧妙结合。
通过对釉点的 1:1 打印研究,有效控制内部灯光条件下外面玻璃对于内景的适度过滤。
为保证夜景情况下建筑两翼的灯光效果尽量统一,在没有样板房内景的一翼,采用 1:1 样板房外立面背板喷绘。
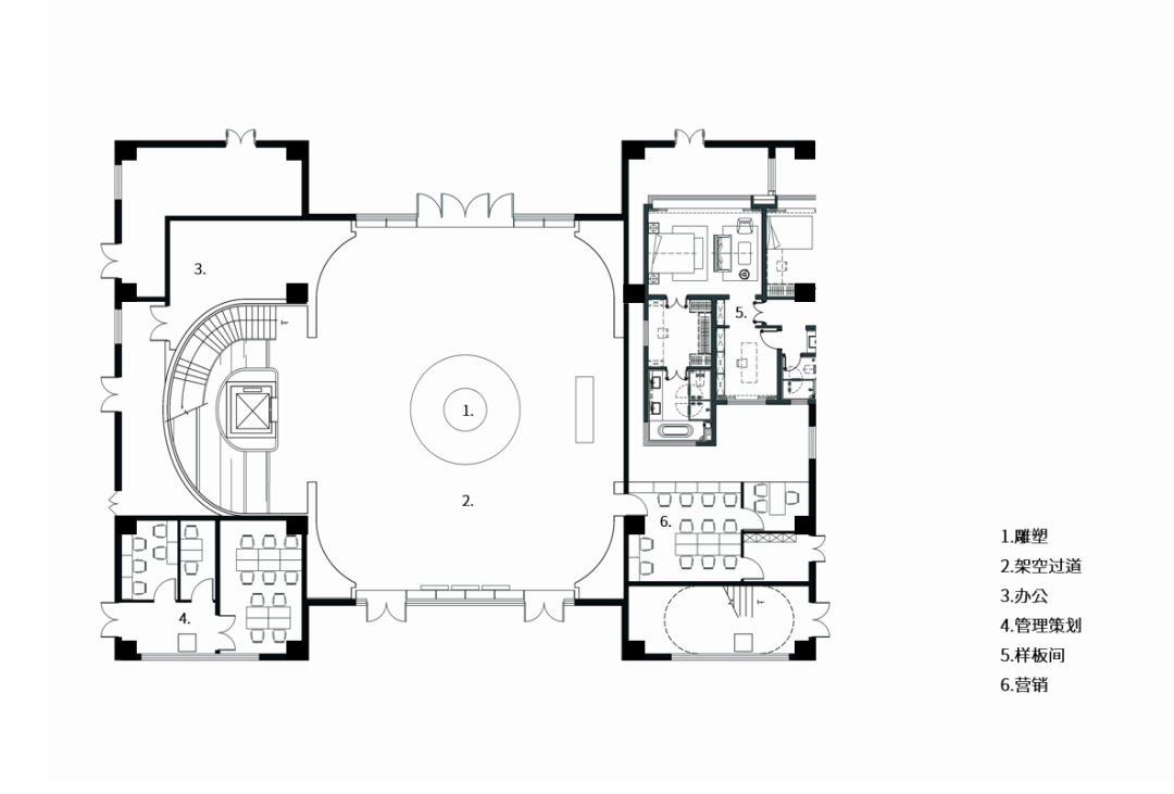
©一层平面图
万千设计
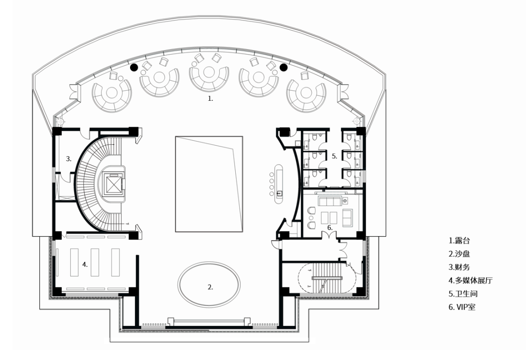
©二层平面图
万千设计
项目信息
项目名称:龙湖·天曜
项目类型:展示中心、大区
项目地点:中国天津
开发企业:龙湖集团
业主团队:樊悦 王莹 尹佳欢
建筑设计:万千设计
设计团队:蒋晓丹 雷毅 黄祥 陈兴 张凯 何承伟 邢晓华 姚明亮 黄震 覃本珍 钟景新 卢静 陈金金 高春雷 刘鹤 丁金龙 孙阳 刘哲
建筑摄影:10 Studio 远洋 乔云峰
设计主创
蒋晓丹
创始合伙人/设计总裁
作为万千设计的创始合伙人,在长达 20 余年的设计实践中,以严谨的设计态度与先锋的创作精神,引领万千设计不断革新与超越,为全国各地呈献了上百个极具特色的人居、商业、文教、办公等建筑设计作品,延续和传递着每一座城市的古今精神与在地文化。
代
表项目
END
居住 | 商业 | 酒店 | 办公
Add:中国上海 苏虹路 33 号 虹桥天地 3 号楼 6 层
Web:
合作 MARKET
Mail:
人才 TALENT
Mail:
设 计 无 限
客服
消息
收藏
下载
最近








































