查看完整案例


收藏

下载
项目名称:棉倉
业态类型:咖啡·轻食·服饰·亲子的新零售
项目业主:常州棉之初服饰有限公司、常州初食餐饮有限公司
项目地址:常州武进世贸中心
室内设计:杭州观堂室内设计有限公司
项目面积:约 2000 平米
竣工日期:2020 年 12 月
施工团队:杭州久维装饰工程有限公司
主要材料:红砖/水磨石/乱纹不锈钢/金属冲孔板
空间摄影:Wen Studio / 汤汤
姚坤先生说:“我们需要做些事情,能给这个社会和城市带来新的价值,而不仅仅是赚钱。”
2003 年姚坤先生创立“棉倉“服饰,是淘宝网首批入驻商家,2008 年成为淘宝网男装首家金冠店铺。
2012 年起,先后创建男装品牌“棉先生”、女装品牌“初棉/CHUMIAN”和童装品牌“棉叔叔/UNCLE COTTON”,三个品牌同一风格,共同服务于新中产家庭群体。
正如其品牌核心“棉/COTTON”所示,棉倉的产品柔软朴实,温暖干净,简洁亲和力强。
棉倉的联合创始人萌子从日常健康、运动与生活需求出发,于 2016 年创立精品咖啡·轻食品牌--“初饭/C’Fine”,秉承“简单、适量、健康、均衡”的理念,甄选新鲜食材,打造多品类、轻负担、社交化的就餐体验,激发人们对健康餐饮的热爱与分享。运营至今,初饭 C’Fine 渐具规模,拥有近 10 家线下门店,形成自身的品牌特色,拥有稳定且高品的客户群。
在这个社会组成中,绝大部分的零售消费围绕家庭与孩子产生,如何为他们提供一个休闲、亲子、餐饮的新型社交场所,又同时满足品质与美学追求,棉倉一直在思考与探索。
2018 年,姚坤先生在常州三晶工业园首次尝试了棉倉线下城市客厅,将三大服饰产品与初饭的咖啡轻食相结合,融入设计美学元素,同时拥有服饰售卖、亲子主题及餐饮供应,打造出棉倉首家生活美学馆,迅速成为当地火爆的打卡场所,吸引众多家庭携孩子前来消费体验。由此,棉倉在新零售业态的尝试中迈出一大步。
2019 年底,棉倉在常州世贸中心寻得 2000 平米空间,在资源整合更为成熟的基础上开始新店的拓展。
▲ 棉倉世贸店
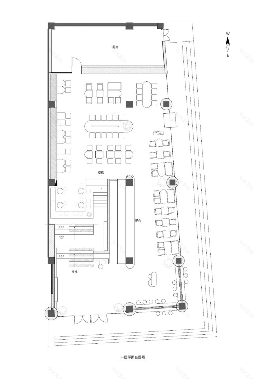
世贸店上下两层结构,一楼为初饭 C’Fine 用餐区;二楼为服饰售卖与亲子活动区,如何吸引客人进店并引流上楼,是设计重中之重需要考虑的。
楼梯是设计的一大亮点,从东面主入口推门而进,4 米宽剧院式大台阶分两段贯穿天井,模特在台阶上依次站列通往二楼。进店的客人在抵达餐区前,首先接收到二楼服饰品类的信号,伴随着强烈的视觉冲击,引起上楼一探究竟的好奇心。
▲ 主入口剧院式大台阶
一楼面积 400 平米,仅凭这一处楼梯引流恐怕不够,于是在空间结构上做了一个巧妙的交叉楼梯设计。用“打开”的手法在主台阶休息平台后增设了可上下的次台阶,用以直达中央用餐区,空间关系上变得更为灵动。从北面次门进店的客人,如想上二楼,无须绕行,径直穿过餐厅从次台阶即可抵达,这将是最便捷的动线。
▲ 从用餐区上楼的交叉楼梯
▲1F 平面布局+鸟瞰效果图,可以清楚的看到交叉楼梯结构。
初饭自 2016 年品牌创立至今,坚持以新鲜的食材和原始的烹饪法最大程度地保留食物原始汁味,不过分借助调料来进行深加工,追求用更简单、适量、健康、均衡的轻食来犒飨味蕾。
在世贸店设计中,增加了红砖的元素,与以往初饭冷静极简的风格形成差异化,更加温暖和感性,也体现出初饭品牌的包容性、多元化与高接受度。
初饭的愿景不仅是提供咖啡和轻食,更希望打造成一个多功能的社交空间,可以兼顾用餐、聚会、亲子、商务等需求,因此餐区设计灵活多变,桌椅木质轻巧,方便餐位变换组合,也有大长桌可满足办公需求。
食品的卫生与安全是餐饮的生命线,世贸店延续了以往的开放式厨房,将产品制作过程尽可能展现给顾客,让顾客可以放心食用,既显示出品牌的自信与勇敢,也表达了初饭的决心与标准,希望通过顾客的监督获得更多成长。
从一楼沿大台阶上至二楼,艺术家蔡烈超的马扎灯在中庭顶部大面积阵列,更像一场前卫的艺术装置,吸引着人们仰首往前。中庭周边设置了一些休闲餐位,客人们可以端着咖啡与轻食,在围栏边小坐,等候家人朋友慢慢挑选货品。
棉倉旗下三大服饰品牌
“亲子”是棉倉品牌非常注重的内容。世贸店的设计从“棉”中衍生出柔软的、圆润的理念,如太空舱般的白色弧度外立面,一楼餐区悬挂的白色圆球灯,餐桌的圆角变化设计,二楼服装展台、隔断、扶手选用的圆形冲孔板,无一不都体现了“圆润”,用柔软来创造美好的童年,用爱心来呵护孩子们的童趣。
世贸店里除专门的“棉叔叔/Uncle Cotton”童装销售区域外,还专门设置了大面积的儿童游乐区,孩子们可以和家人一起在此享受阅读、蹦床、游戏的美好亲子时光。
**C’Fine 初饭轻食咖啡创始店 -- 常州府琛店 · 2016 年 (请点击)**
**C’Fine 初饭轻食咖啡 -- 常州吾悦广场店 · 2018 年(请点击)**
杭州观堂设计
更多设计需求,敬请咨询
T / 0571-88016769
A / 杭州滨盛路之江花园之祥径 16 号
客服
消息
收藏
下载
最近










































