查看完整案例


收藏

下载
都说人不可貌相,其实,房子更是有着不可貌相的非凡潜力。今天给大家带来的案例位于上海市宝山区一个比较老旧的小区,二十多年房龄。
原房型结构相对比较完整合理,因为家里墙面与用具都偏老旧选择了进行重新改造。改造时原房结构基本保留,没有做过多的变动。
房子基本信息:
实用面积:104㎡
户型:三室两卫
位置:上海市宝山区
设计施工:桔装无忧
风格:北欧轻奢风
原户型存在不足之处:
1. 整体老旧脏乱;
2. 空间利用不合理,闲置浪费;
3. 客卫需要从厨房进入,动线不合理,使用体验感较差。
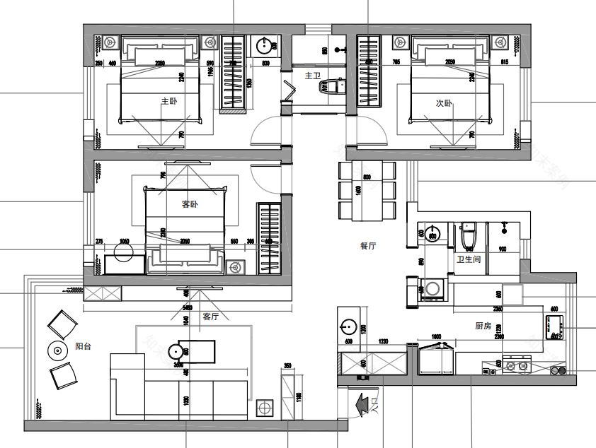
原户型图
改造策略
1、改变客卫门洞方向,在原门洞位置封墙设置储物柜,嵌入洗衣机;
2、打通客厅和阳台,设置休闲阳台,增加客厅采光;
3、厨房外利用闲置区域增设转角水吧台,改用封闭式地柜和吊柜存放物品,方便打理。
改造平面图
玄关
正对入户门,放置的是半高收纳鞋柜,还同时在入户门和客厅之间起到了隔断作用,功能分区很明确。
在鞋柜下面增加了感应灯带设置,方便换鞋。
客厅
鞋柜后面就是客厅,客厅整体以灰白色为主色调。沙发旁边的立地灯和顶灯营造出简约欧式风味。
L 形电视柜的设计,既可以用来摆放书籍、收纳物品,还可以用来摆放装饰品,一物多用,增强收纳,既实用又不影响美感。
通柜的感应灯带设计,可以照明,方便找拿物品,黄色灯光营造出一种温暖氛围。
白色岩板电视背景墙,简约大气。沙发背景墙采用硬包+金属条的设计,凸显质感。
原阳台与客厅打通,客厅至阳台地上通铺 800x800 白色地砖,拉升视觉空间感。
摆上 2 把休闲沙发椅,1 张小圆桌,搭配上旁边的立地灯,原阳台就变成了休闲放松的好地方。捧一本书,泡一杯茶,迎着温暖的阳光,静享惬意阅读亦或是慵懒下午茶时光。
鞋柜与沙发之间安排了一个金色小圆桌,解决手机、ipad 充电时无处安放的小困扰。
餐厅
保留原餐厅的基本陈列,能够容纳 6 人同时用餐。
欧式餐桌椅、2 副装饰壁画、一束干花作点缀,加上暖黄色吊灯,让用餐更多了几分仪式感!
厨房
厨房门外以前只有一个简单的开放式靠墙收纳柜,设计师将这里改造成了一个 L 型西厨吧台,靠墙一边用上面吊柜、下面地柜的设计增加收纳空间,中间的台面则可以放置一些西厨常用的烘焙等用具。这样,小小的改造,让家里轻松拥有了中西双厨。
中式厨房则由原来的 L 型改为 U 型设计,原来左侧墙面洗衣机移至卫生间,改正整个橱柜台面,扩大厨房操作空间,动线也更加合理。
两边的地柜和吊柜提升厨房的收纳能力。
厨房所有吊柜下面同样也安装了感应灯带,人到灯亮,人走灯灭。
进门右手边橱柜台面旁边一角放置冰箱。
次卧所有卧室全部采用圣象强化复合地板。
顶天立地衣柜,既可以增强收纳,还能减少清洁难度和频率。
感应灯带设计,让业主更容易找到目标衣服。
沿窗摆放一张书桌,自然光线充足,平常在这里办公、学习都很不错!
欧式不规则空心吊灯、床头灯相互配合,实用又美观。
主卧色调与次卧保持一致,没有过多的装饰。
一张床、一个衣柜、2 个床头柜、一盏床头灯打造主卧简约空间。
卫生间:
1. 主卫:主卫门原来是朝向床一侧的,改造后的卫生间门洞与床保持同一朝向。
洗手台外置,衣柜则在外置的洗手台和床之间起到了隔断作用,将休息区和洗浴区分离。
马桶区域和淋浴区用玻璃移门和挡水条实现了干湿分离。
2、客卫
原来的客卫需要从厨房进入,洗衣机也被放在厨房位置,影响使用体验。改造后的卫生间门洞与厨房门洞同一朝向,原卫生间门洞位置重新砌墙,并在卫生间一侧的墙面设置吊柜,可以收纳洗漱用品,一个置物台内嵌洗衣机,释放厨房空间。
洗手台外置,洗手台与卫生间之间采用长虹玻璃移门隔断,内外使用互不影响,保护隐私的同时,不影响室内采光。
马桶区和淋浴区同样也用玻璃移门及挡水条进行了干湿分离。
最后,再给大家总结一下今天分享案例的主要改造亮点:
1. 2 个卫生间门洞位置改变,让使用体验更加舒适,功能分区更加明确;
2. 主卧空间有限,巧用衣柜隔断休憩区和卫生间,空间利用最大化;
3. 随处可见的隐形灯带的设计,辅助照明方便拿取东西;
4. 客厅的开放式储物柜、中西厨上下柜体的设计,增加整屋的收纳空间,提升了空间的收纳能力。
今天的分享就到这里!
身边装修案例分享、有家装疑虑困惑、想了解目标风格设计案例……欢迎后台留言或私信小编~~
往期推荐
任务吗裂变宝是什么?
点击【阅读原文】即可在线一键预约免费量房+免费报价。
爱我请给我好看!
客服
消息
收藏
下载
最近









































