查看完整案例


收藏

下载
在上海,上个世纪八九十年代的房子,一字户比较常见。放到今天,虽然老破,但依然炙手可热。而这种房子存在的诸如采光差、房龄久、空间布局不合理等问题也很常见。如果买到了类似的条头糕户型,该怎么样才能获得更好的居住体验呢?今天桔子匠给大家分享的案例就属于典型的空间布局堪忧的条头糕户型,一起来看看屋主夫妻两人是如何将这个奇葩一字户化腐朽为神奇的~~
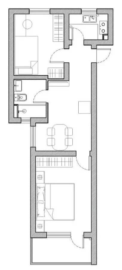
原户型图
原户型存在不足之处:
1、十分狭长,南北进深长达 13.5 米;
2、起居室空间闲置没有得到充分利用;
3、收纳功能不足;
4、厨房只有 3 平米,使用受限;
5、空间异形,整个空间布局缺乏合理性。
改造后户型图
改造策略
1、客卧、卫生间开门位置位移,增加玄关空间,扩大起居室使用空间;
2、卫生间变三分离;
3、L 型起居台、升降桌面,让客厅兼具餐厅功能;
4、客厅和卧室之间增设更多功能区,如开放衣帽间、书架等;
5、阳台与卧室墙体拆除,将阳台并入卧室,扩大卧室空间,还多了一个工作台;
6、次卧也是衣帽间,榻榻米设计既可以充当临时客卧,还能增加储物。
接下来,跟着桔子君一起来看看改造后的房子吧~~
玄关
由于原来的玄关位置空间利用不合理,缺乏相应的储物功能。改造后,原客卧门位置被改成壁龛玄关柜,用来放置平时穿的鞋子,也能满足换鞋、挂衣等出入门时必要的准备需求。
下半部分的鞋柜可以同时做换鞋凳;中间“壁龛”放置一些摆件、挂画或者进出门随手的钥匙等小物件都很方便。内嵌式收纳柜既能收纳鞋子,还能用来收纳全屋的杂物。
收纳柜周围的墙面,屋主给涂上了黑板漆,闲时可以在这里涂鸦画画,平时用来给家人留言,让与家人的互动拥有更多的趣味性!
客厅
进门右拐经过玄关之后,就到了客厅。
客厅整体以白色和原木色为主,整体给人一种温馨放松的氛围。
可升降地台板的选用,升起来可以满足 2 人平时的用餐需求;有客人来将地台降下,可以瞬间变成一群人的休闲娱乐区域,使用灵活方便。
墙边的凹陷区域,添置了一张双人榻榻米沙发;在朝向通道的一面,设计师给屋主的黑胶唱片机预留了一个位置,让这个小小的空间成为屋主休闲放松或者阅读的好地方。
看向沙发的方向,位于右手的墙面采用壁龛设计,用来放置屋主的书籍、装饰品,满足屋主爱好阅读、放松身心的需求,同时兼具装饰点缀功能。
客厅与卧室之间,则用特制的 3 联动木质大移门做隔断区分,平时敞开,可以扩大空间的视觉面积,晚上睡觉关上,区域之间互不干扰。
主卧延续了客厅的主要配色,加上灰色做点缀,整个卧室的睡眠环境温馨舒适。
阳台与卧室之间的隔墙被拆除,阳台被并入卧室。
从卧室看向起居室方向,从客厅延续而来的隔断装置,在卧室一侧变成了穿衣柜兼书架。
放弃传统电视设计,改用幕布投影装置,既不占空间,还能灵活秒变私人影院,满足夫妻 2 人的观影需求。
男主人希望房间也能有一个阅读的地方,设计师就在床和衣柜中间放置了一张舒适的躺椅沙发,旁边可以随手拿取书籍。“我”在阳台工作,“你”在这里阅读,互相陪伴又不互相打扰。
阳台窗户有朝南朝西两个方向,采光极佳,沿窗设计圆弧形工作台,既可以满足夫妻两人日常的办公需求,也不影响衣服的晾晒。
阳台的另外一个方向,放置了洗衣机,同时拥有一个种植台,壁挂洗衣机的电源和排水管通过预埋套管引到了台面下,台面视觉干净整洁。
次卧&衣帽间位于玄关后面,看向次卧方向,右手边内嵌了一个顶天立地柜子,用来存放杂物和鞋子,白色柜体减少衣柜给空间带来的视觉拥挤感。
房子暂时只有夫妻两人居住,所以次卧用的比较少,根据屋主的需求,暂时就以衣帽间作为次卧的主要使用功能。地面的榻榻米设计,既增加了收纳空间,偶尔有人来住,也可以灵活安排。
被当做衣帽间使用,次卧的分区收纳能力不容小觑:榻榻米、朝西的移门衣柜、朝东的折叠门浅柜,分别用作不常用物品收纳区、挂放区、折叠区,存储有序,找拿方便。
厨房
从玄关进门左手边就是厨房,面积仅有 3㎡,所以,厨房的改造遵循“空间借用巧收纳”的原则。
由于原烟道处于被废弃状态,所以改造时干脆直接移除。厨房选用即热水器,但安装在厕所,空出来的墙面空间设计成储物隔板。
“L 型”橱柜设计,让有限的空间能够容纳下水槽式洗碗机、净水器、冰箱、电饭煲等厨房用具;上部吊柜可以用来放置不常用的厨房用具等。
电饭煲放在灵活抽拉板上,加上操作台的开孔设计,让操作台面拥挤有限的空间得到有效解放。
灶台下面,左侧一部分留出柜体做调味品拉篮,右侧上下两层分别作为碗篮和锅篮使用。
改造后整个厨房收纳空间扩大,有序而不凌乱。
卫生间入口调整到了起居室一边。进门左边墙面设计成壁龛和柜体,上面展示,下面储物,美观与实用兼具。
为了扩大起居室的使用面积,将原卫生间的面积进行了缩减。即使如此,卫生间功能干湿分离一点也不含糊,不仅座便器被独立了出来,就连屋主想要的浴缸也被安排上了。
洗漱区和淋浴区利用玻璃移门和浴帘进行干湿分离。沐浴区旁边墙面的壁龛设计能用来收纳沐浴用品及小绿植等。
如厕区与洗漱区互不干扰,可以避免出现早上排队洗漱的窘境。
马桶选用了目前深受追捧的壁挂式,不仅颜值高,还能减少卫生死角。吊柜里是给卫生间和厨房供热水的即热式电热水器。ps:图源于网路,侵权请联系删除~~
今天的分享就到这里!
身边装修案例分享、有家装疑虑困惑、想了解目标风格设计案例……欢迎后台留言或私信小编~~
往期推荐
任务吗裂变宝是什么?
点击【阅读原文】即可在线一键预约免费量房+免费报价。
爱我请给我好看!
客服
消息
收藏
下载
最近








































