查看完整案例


收藏

下载
前言 Preface
在倡导构建服务型政府的背景之下,伴随公众需求的变化与政府角色的转变,诸如市民中心、便民服务中心、行政文化中心等建筑类型纷纷涌现。政务服务类建筑作为一种开放式的行政管理服务设施,不仅是政府开展相关业务的对外窗口,亦应是联结公共生活的空间纽带,它集服务、办公、展示、休闲等多元功能于一体,同时隐含着激发城市内生动力的可能性。扎根在起伏山地中的磁器口服务中心,从它平静地屹立于纷繁市井之时,就娓娓道来其对公共价值回归的探索——倾注对社会基层的人文关怀、融入多元综合的服务功能、实现多方主体的共享诉求。
Under the background of advocating the construction of a service-oriented government, along with the change of public demand and the transformation of the role of the government, building types such as the Civic center, the Convenience Service Center, and the Administrative Culture Center have emerged in succession. As an open administrative management service facility, the government service building is not only the external window for the government to carry out related businesses, but also the spatial link connecting public life. It integrates services, offices, exhibitions, leisure and other diverse functions, while also implying the possibility of stimulating urban endogenous power. This service center, rooted in the undulating mountains, has been telling the story of its exploration of the return of public values since it stood still in the bustling streets – pouring humanistic care into the grassroots, integrating diverse and comprehensive service functions, and realizing the shared demands of multiple subjects.
▼立于山水、古镇与市井之间的磁器口服务中心,
The Ciqikou Service Center located between Mountains and streams, Ancient Town and Marketplace
场地:城市、社区与自然的交汇
Venue: Intersection of City, Community, and Nature
磁器口服务中心是磁器口管委会(街道)对内办公、对外服务的重要场所,其整合了服务、办公、展示、交流等功能,也将在未来成为面向市民开放的“城市客厅”。
场地位于沙坪坝区的核心地带,是磁器口古镇东侧重要的交通节点,向北青山掩映,为凤凰山和丝纺厂仓库旧址;向南依水为邻,是正在建设中的清水溪公园。
The Ciqikou Service Center is an important place for the Ciqikou Management Committee (subdistrict) to work internally and provide external services. It integrates functions such as service, office, display, and communication, and will also become a “urban living room” open to citizens in the future.
The site is located in the core area of Shapingba District, which is an important traffic node on the east side of Ciqikou Ancient Town, setting with the green mountains on the north, and is the former site of Fenghuang Mountain and silk spinning factory warehouse; Next to the water on the south, is the Qingshui Creek Park under construction.
▼场地周边复杂的自然与人文环境,The complex natural and cultural environment surrounding the site
磁器口服务中心是磁器口管委会(街道)对内办公、对外服务的重要场所,其整合了服务、办公、展示、交流等功能,也将在未来成为面向市民开放的“城市客厅”。场地位于沙坪坝区的核心地带,是磁器口古镇东侧重要的交通节点,向北青山掩映,为凤凰山和丝纺厂仓库旧址;向南依水为邻,是正在建设中的清水溪公园。
The Ciqikou Service Center is an important place for the Ciqikou Management Committee (subdistrict) to work internally and provide external services. It integrates functions such as service, office, display, and communication, and will also become a “urban living room” open to citizens in the future.
The site is located in the core area of Shapingba District, which is an important traffic node on the east side of Ciqikou Ancient Town, setting with the green mountains on the north, and is the former site of Fenghuang Mountain and silk spinning factory warehouse; Next to the water on the south, is the Qingshui Creek Park under construction.
▼场地周边的市井烟火气,The hustle and bustle of daily life around the venue
一边是绿意与溪畔笼罩的山地空间,一边是凝聚着过往生活的时代印迹。如何在限定的场地条件下,刻画恰当得体的建筑形象;如何在满足功能需求的基础上,塑造自在闲适的室内外空间;如何在适应周边环境的前提下,激发建筑的多元体验和开放精神,是贯穿项目始终的议题。
On one side is the mountainous space shrouded in greenery and the riverbank, while on the other side is the imprint of the past life. How to depict an appropriate and appropriate architectural image under limited site conditions; How to create comfortable indoor and outdoor space under the basis of meeting Functional requirement; How to stimulate the diverse experience and open spirit of architecture while adapting to the surrounding environment are the topics that run through the entire project.
▼与环境对话的建筑,Architecture in Dialogue with the Environment
入题:复杂环境中的显隐交织
Entry: Explicit and Implicit Interleaving in Complex Environments
作为曾经的制瓷重镇和工业发源地,人工痕迹和自然风景在这里留存至今,相互缠绕成记录场地兴衰转折的物质载体。场地原生的特征既是需要回应的问题,往往也蕴含诸多可供参考的答案,进而成为设计中的切入点和突破口。
▼依山就势的分层平台及多入口,Layered platform and multiple entrances based on the situation of the mountain
As a former porcelain manufacturing center and industrial birthplace, artificial traces and natural landscapes have been preserved here to this day, intertwined as material carriers to record the rise and fall of the site. The inherent characteristics of the site are not only questions that need to be answered, but also often contain many answers for reference, which become the entry point and breakthrough point in design.
▼融入山体的五层建筑体量,The volume of a five story building hidden in the mountain
面对用地与功能的约束,相较于完整的巨大体量,我们更希望建筑以舒展的姿态立于山地之上并与之展开对话。
由此,服务中心在垂直方向上被分为三部分,以应对多方面的环境诉求:下部融入山体的阶梯式基座配合厚重的毛石墙面解构了部分体量,隔清水溪遥望五层高的建筑,丝毫不觉高大突兀,这是隐;上部由玻璃体承托的双层几何体量如雕塑般静立,吸引着教院路往来人群的视线,则为显;中间内收的单层玻璃体和结构柱作为载体,将上下两部分紧密拉结,从远处看,建筑形体好似依山就势的吊脚楼,暗示着与传统原型的关联。
显隐之间,建筑与山体相互交织,成就了更为简洁适宜的体量,使建筑得被锚固在环境中。
▼各层功能示意图, Functional sketch map of each layer
Faced with the constraints of site and function, compared to a complete and massive building, we prefer the building to stand on the mountain in a relaxed posture and engage in dialogue with it. As a result, the service center is vertically divided into three parts to meet various environmental demands: a stepped base integrated into the mountain at the bottom, combined with thick rubble walls, deconstructs some of the volume. Looking at this five-story building from afar across the Qingshui River, it is imperceptible to be tall and abrupt, which is implicit; The double-floor geometric volume supported by a glass body on the upper part stands still like a sculpture, attracting the attention of the people passing by the Jiaoyuan Road, which is explicit; The single-floor glass body and structural columns, which are retracted in the middle, serve as carriers to tightly connect the upper and lower parts. From a distance, the building’s shape resembles a stilted house leaning against a mountain, implying a connection with traditional prototypes. Between the explicit and the implicit, the architecture and the mountain are intertwined, achieving a more concise and suitable volume, anchoring the building into the environment.
▼远处是磁器口古镇与歌乐山,In the distance are the Ciqikou ancient town and Gele Mount
▼从教院路看向建筑,Looking at Architecture from Jiaoyuan Road
界面:突破束缚的多重回应
Interface: Multiple responses to breaking through constraints
传统政服类建筑常以轴线对称、方正稳定和巨构尺度的“原型”强调其在城市中扮演的庄重角色,而磁器口服务中心则尝试突破,它并不拘泥于既有的“标志性”形象,也不盲目追求庄严宏大的“正面性、对称性”构图。
北侧承接教院路的界面与城市无缝衔接,伴随位置和方向的转换,朴素的灰色墙面和适当出挑的檐口,与延展的折形雨棚、镂空的青砖花墙、深灰色金属格栅共同呈现凹凸有致的视觉效果。
透过首层大面积的落地玻璃,能看到远处的歌乐山及城市景观如画卷般在建筑内部徐徐展开。
同时,局部内凹的窗扇避免了开启时对外观产生的扰乱,体现着设计从整体到细节的层层思考。
Traditional government service buildings often emphasize their grave role in the city with a “prototype” of axis symmetry, square stability, and massive scale, while the Ciqikou Service Center tries to break through it. It is not limited to the existing “iconic” image, nor blindly pursues the solemn and grand “orthogonality, symmetry” composition.
The interface connecting the north side of Jiaoyuan Road seamlessly connects with the city, accompanied by changes in location and direction. The simple gray walls and appropriately protruding eaves, along with the extended folding canopy, hollow blue brick and flower walls, and deep gray metal grilles, present a concave and convex visual effect together. Through the large area of ground glass on the first floor, one can see the distant Gele Mountain and urban landscape unfolding slowly inside the building like a scroll of paintings. At the same time, the partially concave window sash avoids the disturbance of the appearance when opened, reflecting the layered thinking of the design from the whole to the details.
▼北侧入口的折形雨棚与金属隔栅,Folded canopy and metal grille of the north entrance
▼办公室外的镂空青砖栏板与内凹窗扇,Hollow blue brick railing and concave window sashes outside the office
▼北侧入口立面细节,North Entrance Facade Details
建筑的另一面则截然不同,由国盛大桥旁的折形楼梯蜿蜒向下,一侧覆盖着密实垒砌的毛石墙,另一侧提供了与自然深度对话的机会。与山势一同扭转的底层基座和简练的体量被焊接在一起,嵌套着斜向出挑的白色盒子,配合着轻盈的玻璃幕墙。虚与实、粗与细、轻与重,如同文学中的对仗关系,不是相互对立,而是形成更浑然有机的整体。
On the other side of the building, it is completely different. The folded staircase next to the Guosheng Bridge winds down, with one side covered with dense rubble walls, and the other side providing an opportunity for a deep dialogue with nature. The bottom base, which twists along with the mountain, is welded together with a straight and concise volume, nested with diagonally protruding white boxes, and paired with a lightweight glass curtain wall. The relationship between emptiness and reality, coarseness and delicacy, and lightness and heaviness is like the antithesis in literature, not opposing each other, but forming a more organic whole.
▼毛石墙体,Rubble wall
▼南向界面,Southbound Facade
▼南侧斜向出挑的盒子,The box slanted out from the south side
游走:山水观览的路径编织
Wandering: Weaving the Path for Landscape Observation
倘若山地环境是设计演进的主要线索,那与之适宜的体量空间则是我们要找寻的答案。建筑顺山势铺陈展开,自然形成逐级跌落的体量,标高为-0.15m、-5.55m、-10.05m 的三层退台让原本均质单一的空间在竖向维度上层层递进,与东西两侧的阶梯、平台一同串联起立体连续的外部观游路径。
If the mountainous environment is the main clue to the evolution of design, then the appropriate volume space is the answer we need to find. The buildings are laid out along the mountain, naturally forming a gradually falling volume. The three floor platforms with elevations of -0.15m, -5.55m, and -10.05m allow the originally homogeneous and single space to progress in the upper floor of the vertical dimension, connecting with the stairs and platforms on both sides to form a three-dimensional and continuous external viewing path.
▼叠台与退台,Stacking and retreating platforms
身处其间,人们得以感知与捕捉周边的风景,或漫步、穿梭于随山体转折变化的阶梯之间,激发出有关过往爬坡上坎的空间联想;或驻足,在二层的屋顶平台向南凭栏远眺,恣意感受微风拂过,如同被自然包裹;或凝望,置身于夕阳笼罩下的架空平台,古镇以舒展的姿态跃然眼前。多层次的路径体系和充满变化的景致不仅塑造出耐人寻味的空间意境,更为身居闹市中的人们提供了远离喧嚣、宁静闲适的别样观游体验。
In the midst of it, people are able to perceive and capture the surrounding scenery, or walk and shuttle between the stairs that change with the turning of the mountain, inspiring spatial associations about past climbing slopes and ridges. Or stop and gaze towards the south railing on the roof platform of the second floor, feeling the gentle breeze caressing freely, as if enveloped in nature. Or gaze at the elevated platform shrouded in the sunset, and the ancient town stands out in a relaxed posture. The multi-level path system and changing scenery not only create a thought-provoking spatial atmosphere, but also provide people living in the bustling city with a unique and peaceful viewing experience that is far from the hustle and bustle.
▼蜿蜒而下的折形楼梯,A winding down folding staircase
这一有机的路径体系在构建步移景异的空间感受之外,也将动线的合理性纳入考虑之中。人群通过室外平台能抵达四个不同的标高层次:开敞的入口广场为教院路的人流提供清晰指引;折梯衔接着经由国盛大桥而来的人群,借退台将访客分流到一至负二层;西侧的架空体量既是办公区域的入口,也为过路行人提供一处可停留休憩的庇护场所。
This organic path system takes into account the rationality of the movement line in addition to building a spatial experience of moving scenery. The crowd can reach four different levels of elevation through the outdoor platform: the open entrance square provides clear guidance for the flow of people on Jiaoyuan Road; the folding stairways connects the crowd passing through the Guosheng Bridge, and the set-back model diverts visitors to the first to second floors; the overhead volume on the west side is not only the entrance to the office area, but also provides a shelter for passersby to stay and rest.
▼沿劳动路入口,An entrance beside the Laodong Road
▼西侧的架空体量与出挑阳台,The overhead volume and protruding balcony on the west side
位于起伏环境中的磁器口服务中心不仅呈现出栖身山地的自然之势,更有意引入远近的景观与光线,塑造流动贯通的室内外公共空间,这既是设计对山地处理手法的尊重续写,也是建筑深度回应场地的真实表达。
The Ciqikou Service Center, located in a undulating environment, not only presents a natural trend of living in mountainous areas, but also intentionally introduces distant landscapes and light to create a flowing and interconnected indoor and outdoor public space. This is not only a continuation of the design’s respect for mountainous handling techniques, but also a true expression of the building’s deep response to the site.
▼观游路径与交通流线有机融合,Sightseeing routes and traffic movement integrating organically
立意:属于市民的开放平台
Purpose: Open platform for citizens
近些年,各类综合性、“一站式”的行政服务机构应运而生,其着力点逐渐由对形象的过度关照转向对多元功能需求的考量,磁器口服务中心的设计便是对这一理念的实践。相较于刻意布置的宏大广场,人们自发的行为与市井生活更显动人,因此,我们希望建筑能作为唤醒公共生活开启的新篇章,让多样的市民活动在此被书写。
In recent years, various comprehensive and “one-stop” administrative service organizations have emerged, and their focus has gradually shifted from excessive attention to image to consideration of multiple functional requirement. The design of Ciqikou Service Center is the practice of this concept. Compared to the deliberately arranged grand square, people’s spontaneous behavior and urban life are more impressive. Therefore, we hope that architecture can serve as a new chapter in awakening public life, allowing diverse civic activities to be written here.
▼退台间漫步驻足的市民,Citizens strolling and stopping between the setback
▼景观台阶上晨练的市民,Citizens exercising in the morning on landscape steps
▼融入市井生活的服务中心,A service center that integrates into everyday life
多重的室外公共空间清晰地表明了磁器口服务中心向公众开放的主旨,以更亲切平和的姿态鼓励着周边市民的探索:
东端的台阶空间和屋顶平台连绵交织,可供市民在闲暇之余晨练、聚会,也作为观影和展示的舞台;
层叠的退台吸引夏日傍晚沿水岸散步的居民,在漫游中为他们带来不期而遇的邂逅和交谈;
下学的孩童在屋顶平台的楼梯旁躲藏追逐……
对于生活在此的市民而言,磁器口服务中心本质上更像是一处日常性的活动场所、一处开放性的服务平台,它承载着公共生活的愿景,诉说着融入日常的际遇,内化成包容、多元的精神锚点,进而改变着人们对政务建筑的理解。
The multiple outdoor public spaces clearly demonstrate the main purpose of the Ciqikou Service Center being open to the public, encouraging the exploration of surrounding citizens with a more friendly and peaceful attitude. The staircase space and roof platform at the eastern end are intertwined, providing citizens with morning exercises and gatherings in their spare time, as well as serving as a stage for watching and showcasing. The stacked retreats attract residents who stroll along the waterfront in summer evenings, bringing them unexpected encounters and conversations while roaming. The children after school are hiding and chasing by the stairs on the rooftop platform, and so on. For citizens living here, the Ciqikou Service Center is essentially more like a daily activity venue and an open service platform. It carries the vision of public life, tells the story of integrating into daily experiences, internalizes into inclusive and diverse spiritual anchors, and changes people’s understanding of government buildings.
▼从附近街道看向建筑,View to building from nearby street
叠置:立体复合的空间营造
Overlay: Creating a three-dimensional composite space
回顾设计,外在的形体与空间关系早已为内部的功能布局埋下伏笔,服务中心的主要功能依照公共属性的强弱分层排布,以最大程度提高空间效率。
一至负二层的公共服务大厅、党群服务中心等空间皆面向水岸布置,明亮敞阔的大厅使办事人员不必被限制于封闭的办事隔间中。
东侧夹层的独立报告厅为消解外部场地的高差变化做了下沉处理(-1.50m),通过东北角平缓的折形楼梯完成一至负一层间的空间转换,既打破水平分层的限制,又产生如戏剧般转折变化的空间效果。
▼剖视图,Cutaway view
Looking back at the design, the external form and spatial relationship have already laid the groundwork for the internal functional layout. The main functions of the service center are arranged in floors according to the strength of public attributes to maximize spatial efficiency. The public service halls, party and mass service centers on the first to negative second floors are all arranged facing the water bank, and the bright and spacious hall eliminates the need for staff to be confined to enclosed work compartments. The independent Lecture hall on the east mezzanine has made subsidence treatment (-1.50m) to eliminate the height difference change of the external site. The space conversion from the first floor to the first floor is completed through the gentle folded staircase in the northeast corner, which not only breaks the restriction of horizontal slicing, but also produces the space effect of dramatic turning changes.
▼连接一层与负一层的错层平台,A staggered platform connecting the first floor and the basement one
▼报告厅内景,Interior of Lecture hall
近 7m 高的梯形中庭统领着二、三层的办公空间,连绵的玻璃界面宛如面向天空敞开的景框,将光线和景观毫无保留地捕捉到室内,结合窗扇的开启,营造舒适健康的节能型室内环境。三层的回廊环绕中庭串联各功能区域,形成张弛有序的内部交通体系;局部悬挑的会议室在平面上将走道打断,进一步带来曲径通幽的空间感受;西侧的大台阶则是交流放松的最佳场所。在这里人们可穿越、可停留、可互动,这些未加定义的复合空间以应对与管理办公相关的空间诉求,进而鼓励着人们去探索空间的更多可能性。
The nearly 7m high trapezoidal atrium dominates the office space on the second and third floors. The continuous glass interface is like a landscape frame open to the sky, capturing the light and landscape unreservedly to the interior, and combining with the opening of window sashes, creating a comfortable and healthy energy-saving indoor environment.
The corridor of three floor surrounds the atrium and connects various functional areas, forming a relaxed and orderly internal transportation system. The partially cantilevered conference room interrupts the walkway on the plane, further bringing a sense of winding and secluded space. The large steps on the west side are the best place to relax and communicate. Here, people can travel, stay, and interact in these undefined composite spaces to meet the demands of managing office space, thereby encouraging people to explore more possibilities of space.
▼屋顶天窗的设计营造节能室内环境,Design of roof skylight creating energy-saving indoor environment
▼兼具多重功能的内庭空间,A multifunctional interior space
破题:突破“原型”的空间实践
Problem Solving: Breaking through the Space Practice of “Prototype”
在接到设计委托之时,我们既感叹于场地中相互制约的矛盾之复杂,又期待着能真正为市民创造一处充满包容性与人文关怀的服务场所。几次现场踏勘,置身山地水岸,感受春夏变化,记录市井日常。磁器口服务中心是我们突破传统政务类建筑“原型”的一次尝试,它并非一处高耸突出的地标式建筑,相反,它是真实的、鼓励市民参与的、最为普通的基层政务服务综合体,在不超过同类建筑单方土建造价的前提下,综合性、便利性、日常性等特点在这座面向所有市民开放的建筑中被体现得淋漓尽致。
When we received the design commission, we not only marveled at the complexity of the mutual constraints in the venue, but also looked forward to truly creating a service place full of inclusiveness and humanistic care for the citizens. Several on-site inspections, exposure to mountainous waterfront, experiencing changes in spring and summer, and recording daily life in the city. The Ciqikou Service Center is an attempt by us to break through the traditional “prototype” of government buildings. It is not a towering landmark building, but rather a real, encouraging citizen participation, and the most ordinary grassroots government service complex. On the premise of not exceeding the single civil construction cost of similar buildings, its comprehensive, convenient, and daily characteristics are fully reflected in this building open to all citizens.
▼栖身山地间的磁器口服务中心,the Ciqikou Service Center located in the mountains
▼夜景鸟瞰,Aerial view in night
历经两年设计建造的磁器口服务中心在投入使用后,既配合街道开展日常办公治理工作,也持续性地为公共生活的开展贡献力量,环境与建筑、服务与生活、公共与公众等多重意义在这里汇聚并叠合成丰富的图景。恰如现象学奠基人胡塞尔所提出的“回归事物本身”——回归服务中心自身的功能与属性,“服务”与“公共”二字如其所是。
After two years of design and construction, the Ciqikou Service Center has been put into use. It not only cooperates with the street to carry out daily office management work, but also continuously contributes to the development of public life. The multiple meanings of environment and architecture, service and life, public and the public are gathered and stacked here to form a rich landscape. Just as the founder of phenomenology Husserl proposed “returning to things themselves” – returning to the functions and attributes of the service center itself, the words “service” and “public” are exactly what they mean.
▼总平面图,Site plan
▼负二层平面图,
Basement two plan
▼负一层平面图,Basement two plan
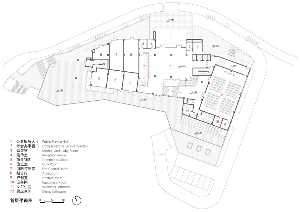
▼首层平面图
Basement two plan
▼二层平面图,Basement two plan
▼三层平面图,Basement two plan
项目名称:磁器口服务中心
设计单位:重庆悦集建筑设计事务所、重庆何方城市规划设计有限公司
项目设计:2020.03—2020.08
完成年份:2022.03
主持建筑师:田琦、何飙、李骏
设计团队:宛良清、李涛、但承虎、谢成平、胥向东、袁文光、吴猛、王月东、陈卫、翁钰展(实习)
施工总承包单位:重庆市建工第七建筑工程有限责任公司
项目地址:重庆市沙坪坝区教院路
建筑面积:10393.20㎡
摄影版权:PrismImage、常文雨、田琦
项目业主:重庆旭辰产业发展集团有限责任公司
客服
消息
收藏
下载
最近








































