查看完整案例


收藏

下载
拾山房民宿外观局部 ©偏方摄影
感谢
悦集建筑
重庆拾山房民宿
/ 悦集建筑
和最爱的人,
邂逅最美的山。
看过诗和远方,
唯有山,是方向。
—-拾山房
▼云海成为了拾山房的一部分 ©李骏
设计的语言并非一定是某种具体的风格描述,每个空间的建造都是为了一个特定的场所,实现一种特定的功能。拾山房绝佳临崖的地理位置,云海的虚无缥缈,日出的磅礴气势和日落的赤朱丹彤,让诗和远方成为场所的一部分。
▼拾山房位于临崖的地理位置上 ©李骏/田琦
▼民宿鸟瞰图 ©李骏
▼民宿的室外平台 ©李骏/田琦
▼拾山房民宿外观局部 ©偏方摄影
▼拾山房民宿外观局部 ©偏方摄影
推过厚重的门,进入一个不同心境和气味的世界。蜡烛闪着微光,耳畔回响松涛和脚下砾石的声音。在大厅里,原始混凝土屋顶不曾隐没在夯土中,阳光透过窗棂洒落进来,磨石地面在我脚下,结实而坚硬,一切显得静谧美好。
▼大厅,原始混凝土屋顶不曾隐没在 ©偏方摄影
▼大厅局部,阳光透过高侧窗洒落进来 ©偏方摄影
▼公共区域,采用磨石地面 ©偏方摄影
▼公共区域局部 ©偏方摄影
框架清晰明了,有节奏的细节呈现也不失从整体的结构去感受。当注视着这些平静自在的状态,感知亦变得沉静,不再渴急。开放而空寂,舒适而安稳,仿佛是平常我们内心乐见的意识聚集在了空间 。
▼双坡屋顶的餐厅空间 ©偏方摄影
▼餐厅局部 ©偏方摄影
▼餐厅细节,阳光透过窗棂洒落进来 ©偏方摄影
朴素的线条组合是木与光的游戏,移门滑过,光影斑驳。春夏之季,推开移门大量自然风引入室内,舒适凉爽。秋冬之季,悬窗的设计保持室内通风良好又降低热能消耗。
▼餐厅空间,悬窗的设计保持室内通风良好又降低热能消耗 ©偏方摄影
▼餐厅细节 ©偏方摄影
建筑的存在不会让我们特别注意到它们,就像是从地上长出来的,但是,又会让你觉得几乎不能想象它们所在的位置缺得了它们。每一个部分都在扮演自己的角色,都沉浸在这个特定的环境中,与当下情境形成对话。
▼从地上长出来的民宿体量 ©偏方摄影
▼民宿与当下情境形成对话 ©偏方摄影
混凝土、夯土、砾石、金属,这些日常所见的材料组合,让整个建筑低调的隐藏在山野之中。去掉矫揉造作的装饰手法,让我们的情感和思绪更好的被周围环境所接纳。
▼民宿采用混凝土、夯土、砾石等日常所见的材料组合 ©偏方摄影
▼民宿材料细节 ©偏方摄影
客房空间在度假中扮演着至关重要的角色,一个用心设计的客房,是我们放松休憩的地方,也是培养与呵护感情关系的场所。无关奢华也无关慵懒,只是让你离开浮躁的城市,悠然躺在床上,眺望远方风景,放松和放空。
▼客房,可眺望远方风景 ©偏方摄影
▼客房局部 ©偏方摄影
▼客房空间细节 ©偏方摄影
▼客房起居室 ©偏方摄影
▼客房卧室,可远眺群山 ©偏方摄影
▼客房卧室细节 ©偏方摄影
从商业运营角度满足酒店不同房型规划。合理的功能配置与动线考虑,舒适的前提下,所有房间面向远山,让风景成为空间的第二主角。
▼客房起居室 ©偏方摄影
▼客房卧室 ©偏方摄影
▼客房卧室细节 ©偏方摄影
酒吧设定在客房区域,成为社交的主要产所。保留建筑原始混凝土顶面,旧木料装饰空间皮肤,壁炉作为空间的视觉核心与吧台黑色手工砖形成呼应。酒店主人旅行收购的复古家具恰到好处点缀其中。
▼客房区域内的酒吧,保留建筑原始混凝土顶面,旧木料装饰空间皮肤 ©偏方摄影
▼酒吧,壁炉作为空间的视觉核心与吧台黑色手工砖形成呼应 ©偏方摄影
▼酒吧空间局部 ©偏方摄影
▼酒吧空间细节 ©偏方摄影
▼酒吧的半室外休息空间 ©偏方摄影
这个空间一定能保留生活的痕迹,从而呈现出特定的丰富性。在这种情景下,我想到材料的沧桑,面材上累积的擦痕,暗淡脱落的漆面,以及使用中磨损的棱边……让人察觉到时光流逝,感受到生活在此处上演。
▼傍晚时分的民宿 ©田琦(上),©偏方摄影(下)
▼从民宿向远处眺望 ©偏方摄影
▼民宿室外休息区,让人们沉浸在特定的环境中 ©偏方摄影
▼民宿夜景 ©李骏/田琦
▼民宿夜景 ©李骏
项目图纸
▼实体模型 ©悦集建筑
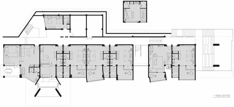
▼一号楼1F平面图 ©治木设计
▼一号楼2F平面图 ©治木设计
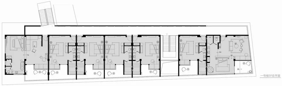
▼一号楼3F平面图 ©治木设计
▼二号楼1F平面图 ©治木设计
项目名称:重庆拾山房民宿
建筑设计:悦集建筑
主创设计:李骏、何飙、田琦
设计团队:胥向东、王源盛、吴猛、王月东
室内设计:治木设计
设计团队:石朝思、易毅、余思静、唐爽
陈设设计:石朝思、易毅
项目地址:中国重庆
建筑面积:2200平方米
完工时间:2019.08
摄影:偏方摄影、李骏、田琦
▼ 网站最新24小时精彩项目集锦
客服
消息
收藏
下载
最近

























































