查看完整案例


收藏

下载
Schiltigheim是下莱茵省(法国东部)的第三大城市(按人口),也是斯特拉斯堡大都市区人口最密集的城市。Schiltigheim发展于19世纪,以酿酒业及相关的工业活动为发展重心。在20世纪后,随着产业的衰退,大量的工业用地遭到弃置和浪费。
Schiltigheim is the third largest town in the Bas-Rhin département (eastern France) in terms of population, and is the most densely populated town in the Strasbourg metropolis. It developed in the nineteenth century, centred on brewing and related industrial activities. These activities declined in the late twentieth century, leaving much industrial land lying waste.
▼项目概览,overview
本项目是由市政府发起的规划项目中的一部分,旨在重建城市的肌理和结构。该场地在成为肉铺之前原本是一座酿酒厂,后来由政府接管,并将其改造为了一个服务于年轻艺术家的展览空间和戏剧表演空间。由于无法满足建筑的安全规定,该空间曾向公众关闭10年之久。
The rehabilitation of the butchers’ cooperative is part of a process initiated by the municipality with the aim of regenerating the town’s urban fabric. The place was originally a distillery, before becoming a butchers’ cooperative, and had been taken over by the municipal authorities, who had turned it into an exhibition area for young artists and a place for drama performances. When the venue ceased to meet the safety standards in force, it was closed to the public — for a decade.
▼周边建筑环境,architectural surroundings
本次的大规模修复主要从以下两个方面来介入:首先,为这座历史城区中心的标志性建筑赋予新的生机,同时保留其遗产特性和建筑的完整性;同时,利用混合型的功能布局和贯通的路径来彰显其作为公共空间的特性,使其能够同时容纳市场、各类店铺、展览空间以及创意工坊。
The substantial rehabilitation project deals with the building in two ways: the emblematic site in the heart of the historic centre of the town has been given a new lease of life, while its heritage and architectural integrity have been preserved. Its mixed programme and the through passage it creates confers on it the status of a public space, accommodating a market, places for shopkeepers, an exhibition area, and a creative workshop.
▼建筑外观,exterior view
▼入口台阶,entrance stair
这座全新的艺术中心和市场被放置在一个具有示范性的建筑环境当中,其周围分布着众多非凡的建筑成果。该项目在体现自身当代维度的同时,也强调了场地中其他既有建筑的结构和美学品质。通过这种方式,它回归到了构成建筑遗产的本质要素当中,即“层次”的划分。透明的飘窗与木结构建筑的不透明材料形成了鲜明的对比。向上倾斜的屋顶为夏季酒吧提供了荫蔽,并从真正意义上扩展了室外展览空间。这种宽敞的布局为文化中心赋予了公共性的身份,使其成为一个可供所有人聚集和交谈的场所。
▼功能空间拆解图,programme axon diagram
This new art centre and covered market is set within an exemplary built context, comprising strips of land and remarkable examples of vernacular architecture. While affirming its contemporary dimension, it highlights the constructional and aesthetic qualities of the existing buildings on the site. In doing so, it. The transparency of the bay windows contrasts with the material opacity of the wood-framed houses. It thrusts itself upwards, providing shelter for the summer bar, which really extends the exhibition area outdoors. This generous arrangement confers institutional status on the cultural centre, which is intended above all to serve as a place where all can gather and talk.
▼向上倾斜的屋顶为夏季酒吧提供了荫蔽,从真正意义上扩展了室外展览空间,the house thrusts itself upwards, providing shelter for the summer bar, which really extends the exhibition area outdoors
▼酒吧和户外用餐区,bar and the outdoor seating area
在内部,实用的功能空间和可调节的照明为建筑带来多样化的场景。展览区域整体达到了最理想的状态:一个宽敞的、拥有多种功能的单体空间。
On the inside, the architecture and the scenography are used to promote spatial polyvalence by proposing efficient internal functioning and modulable light. Here, the exhibition area attains it universal ideal, becoming a single space with multiple uses.
▼走廊贯穿各个功能空间,the through passage serves the whole public space
▼上下层空间关系,the relationship between upper and lower layers
▼通往二层展厅的楼梯,stair leading to the exhibition on the first floor
▼可调节采光的展览区域,exhibition space with modulable light
▼中庭空间,atrium
▼展厅细部,interior detailed view
▼集市空间,market area
▼墙面细部,detailed view
▼从城市街道望向建筑,view from the urban street
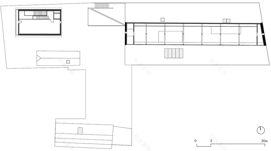
▼首层平面图,ground floor plan
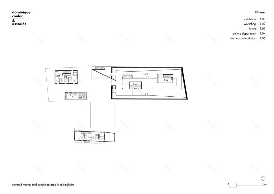
▼二层平面图,first floor plan
▼三层平面图,second floor plan
▼立面图,elevations
▼剖面图,sections
Covered market and exhibition area in Schiltigheim
Client : Ville de Schiltigheim
Architects : Dominique Coulon & associés
Dominique Coulon, Steve Letho Duclos
Architect assistant : Guillaume Wittmann, Mathilde Blum, Diego Bastos-Romero
Construction site supervision : Steve Letho Duclos
Engineers and consultants :
Structural Engineer : Batiserf Ingénierie
Electrical Engineer : BET G.Jost
Mechanical Plumbing Engineer : Solares Bauen
Cost Estimator : E3 économie
Program : Covered market, exhibition area, café, convivial place, ticket office, administrative area
Address : 17 rue principale 67300 Schiltigheim / Google Maps location : 48.60653, 7.75225
Surface : 2100 sqm
Budget : 3 600 000 € H.T
Competition : May 2014
Plans and technical phases : from September 2014 to June 2015
Construction : from December 2015 to Octobrer 2018
Construction companies :
Structure (ALBIZZATI), Charpente (ERTCM), Exterior joinery – Professional stands (HUNSINGER),
Interior joinery (VOLLMER), plastering (GEISTEL), Metal works (HELLUY)
Photography : Eugeni Pons, David Romero-Uzeda
客服
消息
收藏
下载
最近









































