查看完整案例


收藏

下载
tototo04
©田方方 /Christian Richters /ROCKBUND / Simon Menges
洛克·外滩源位于上海市中心著名的外滩北端,由一系列欧洲租界时期建造的历史建筑组成。这些建筑沿着圆明园路东侧形成了连续的街面,欧洲建筑风格与亚洲元素相结合,体现了这一时期殖民建筑的多样性。
▲鸟瞰 © 田方方
▲洛克·外滩源虎丘路鸟瞰 © 田方方
一个由国际建筑师组成的团队规划了这一地区的复兴。它将容纳办公、公寓、咖啡、餐厅和零售功能,同时向苏州河滨及周边公园展现宏伟的城市姿态。
戴卫奇普菲尔德建筑事务所受委托在这个区域的开发中修缮和改造 11 座历史建筑。
▲总平面图 © David Chipperfield Architects
▲东立面图 © David Chipperfield Architects
▲航拍圆明园路© ROCKBUND
▲圆明园路北端视角 © 田方方
▲圆明园公寓 圆明园路视角 © 田方方
▲安培洋行 东立面 © 田方方
▲众安·美丰大楼 东立面 © 田方方
▲圆明园路南端视角 © 田方方
▲洛克·外滩源虎丘路街景 © 田方方
▲洛克·外滩源香港路入口 © 田方方
▲圆明园路街景 © ROCKBUND
修缮的概念致力于以充满尊严和风貌的方式展示这些历经岁月考验的建筑。在历史进程中,这些建筑经历了各种改建和搭建——它们都被拆除,将建筑物恢复到原来的状态。外墙经过仔细的清洁和修复,避免破坏原来的结构。为了适应新的当代功能需要,一些建筑物的现有结构在屋顶区域内得到了扩展。
▲圆明园公寓 修缮前后© David Chipperfield Architects / Christian Richters
▲安培洋行 修缮前后© David Chipperfield Architects / 田方方
▲中实大楼 修缮前后© David Chipperfield Architects / 田方方
▲众安·美丰大楼 改造前后© David Chipperfield Architects / 田方方
从街区西南部的内庭院可以看到中实大楼和亚洲文会大楼的扩建部分。新的外墙采用“上海抹灰”抹面,与邻近的历史建筑呈现相似的品质。
亚洲文会大楼曾经是中国第一座公共博物馆,现在成为了上海外滩美术馆——一座当代艺术博物馆。在这座装饰艺术风格的建筑内,改造后的灵活空间可以实现一系列不同的展示概念,并和上层的体量通过新的中庭形成空间联系。
▲上海外滩美术馆和中实大楼 北京东路视角 © 田方方
▲上海外滩美术馆大楼外观 ©Rockbund Art Museum
▲上海外滩美术馆西立面 © Christian Richters
美丰洋行的三层的历史建筑立面得到了保留和修缮,并以陶土砖堆砌的形式向上增加了十一层,成为了现在的众安·美丰大楼。这座新的红砖塔楼在街区的边缘形成了一个强有力的标志物,将历史悠久的城市肌理与远处的新建高层城市融为一体。
▲众安·美丰大楼 北京东路视角 © 田方方
▲众安·美丰大楼 东立面 © 田方方
▲美丰细节 © ROCKBUND
▲美丰夜景© ROCKBUND
▲众安·美丰大楼 东立面 © 田方方
该建筑群分多个阶段建成:上海外滩美术馆于 2010 年开馆,历史建筑的外墙修缮工程于 2011 年完成。美丰大楼的外墙和内部结构与 2021 年完工,随后,戴卫奇普菲尔德建筑事务所又受委托设计其大堂的室内以及整个街区内巷的景观。
▲上海外滩美术馆 二层门厅 © Simon Menges
▲上海外滩美术馆 四层门厅 © Simon Menges
▲上海外滩美术馆 首层接待台 © Christian Richters
▲上海外滩美术馆 二层展厅 © Simon Menges
▲上海外滩美术馆 五层门厅 © Simon Menges
▲上海外滩美术馆 五层中庭展厅 © Simon Menges
▲上海外滩美术馆 六层咖啡厅 © Simon Menges
▲美术馆 商店© Rockbund Art Museum
▲美术馆室内© Rockbund Art Museum
一系列的小巷连接着东侧的历史建筑和西侧的新建住宅建筑之间形成的内部广场。作为外滩源项目的最后补充,它旨在将这些传统的内向剩余空间转变为整体公共功能和城市界面的延伸,同时为不同的公共活动和功能提供灵活空间。
▲上海外滩美术馆博物馆广场入口© 田方方
整个洛克·外滩源于 2023 年 9 月竣工,这也标志着戴卫奇普菲尔德建筑师事务所 17 年工作的完结。
▲洛克·外滩源圆明园路鸟瞰© 田方方
RAMA 外滩建筑节
戴卫·奇普菲尔德主题阐述
公共空间
我们城市的优势与劣势正与日俱现。在全球疫情、社会分化与气候危机的重压下,我们不得不重新审视建成环境对生活品质的影响。要让城市得以增进公众福祉,我们就需要维系“何为城市”的基本共识,而公共空间始终居于这一愿景的核心。
纵观历史,城市的建成形式在城市规划和建筑两方面都提供了蕴含伟大创造力的难忘时刻。它提供的意象和形式使我们得以定义身份感和场所性。一般来说——在西方城市尤甚——公共广场扮演着极富象征意蕴的角色。它颂扬了文明与社会进步。也许正是在这种观念的掩盖下,那些由松散、临时性、间隙性的公共空间所组成的重要网络,反而被我们忽略了。
▲广学大楼 © ROCKBUND
▲兰心大楼 © ROCKBUND
▲光陆大楼 © ROCKBUND
▲哈密大楼 © ROCKBUND
▲女青大楼 © ROCKBUND
▲真光大楼 © ROCKBUND
那可能是里弄和后巷,是点缀着流动小贩的街角,是某个熟悉的门廊,抑或是朋友之间适意畅谈的长凳。他们为公共与私人领域之间的互通提供了凭依。上海的传统社区保有对这些空间的珍贵记忆。在这座城市非西方的语境中,公共广场并不那么普遍,因而这些临界空间就显得更加重要。这是因为,它们提供了人与人之间交融聚汇、共享时空的场所。
▲RAMA 外滩建筑节空间介入装置 © 田方方
▲洛克·外滩源安仁里北望 © 田方方
▲RAMA 外滩建筑节空间介入装置 © 田方方
▲装置细部 © 田方方
外滩在上海融入世界的过程中具有独特的地位。与这段历史相呼应的则是其空间结构。历史建筑的庄严立面界定了外滩的街景与广场。而在其身后,楼宇之间看似剩余的空间则创造了一个更加随性的开放区域,与城市的传统社区发生着共鸣。这些公共空间各具特色。通过对它们进行有目的性的编排,我们或能揭示公共空间是如何塑造我们的城市,并点亮一个世纪以来外滩特有的公共品质。
▲洛克·外滩源安仁里 © 田方方
▲洛克·外滩源美丰巷 © 田方方
场所的公共性取决于其所能承载的活动,而不仅是其建成形态。它依赖于物理环境,但同样取决于社会基础设施,譬如人与人之间的默契链接,以及分享和参与的意愿。我们希望外滩建筑节能成为启动这一进程的催化剂。
戴卫·奇普菲尔德建筑师事务所的策划方案将把艺术带出博物馆、引入洛克·外滩源的日常生活。它将用城市生活的自发性和共时性消解艺术机构中的静态观演关系。
博物院广场的现况兼具历史文脉与改造更新。我们的设计干预将立足于这一现状而加以扩延,从而为上述活动提供场所。这些空间要去预见,而不是去设定;要富于目的性,但不囿于固定的功能;在戏剧性和日常性之间,它们将建立辩证的关系而加以调解。
▲夜景航拍 © ROCKBUND
外滩建筑节将提升公众认知,令我们意识到自己是如何感知、使用、设计和响应公共空间。这亦会是颂赞城市活力和复杂性的佳时。正是这活力和复杂性推动了城市的创造力,并改善着我们在这日新月异的世界中的体感与经验。
▲活动海报
项目图纸
▲南立面图 © David Chipperfield Architects
▲西立面图 © David Chipperfield Architects
▲上海外滩美术馆 一层平面图© David Chipperfield Architects
▲上海外滩美术馆 二层平面图 © David Chipperfield Architects
▲上海外滩美术馆 五层平面图 © David Chipperfield Architects
▲上海外滩美术馆 六层平面图 © David Chipperfield Architects
▲ 上海外滩美术馆 西立面图 © David Chipperfield Architects
▲上海外滩美术馆 东立面图 © David Chipperfield Architects
▲上海外滩美术馆 AA 剖面图 © David Chipperfield Architects
▲上海外滩美术馆 BB 剖面图 © David Chipperfield Architects
▲上海外滩美术馆 CC 剖面图 © David Chipperfield Architects
▲众安·美丰大楼 东立面图 © David Chipperfield Architects
▲众安·美丰大楼 南立面图 © David Chipperfield Architects
▲众安·美丰大楼 剖面图 © David Chipperfield Architects
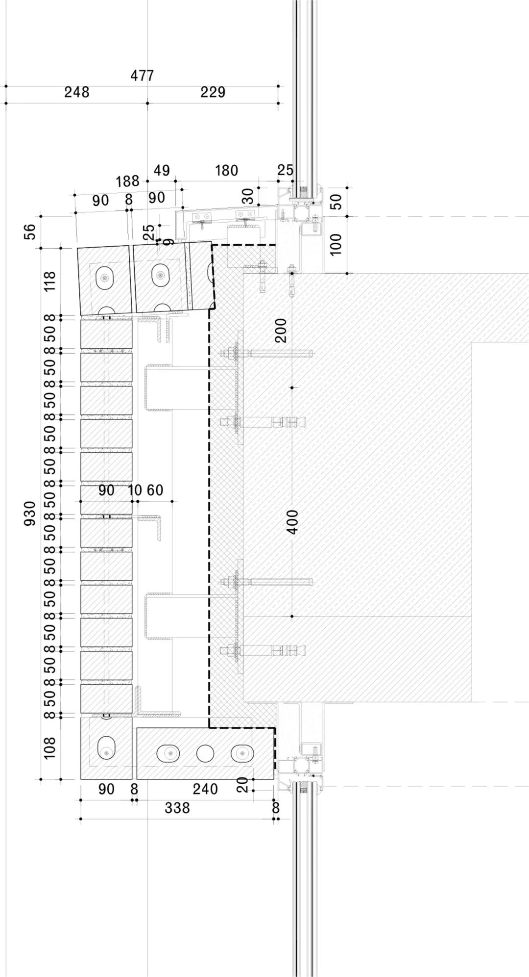
▲众安·美丰大楼 幕墙立面图、平面图、剖面图© David Chipperfield Architects
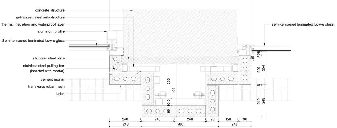
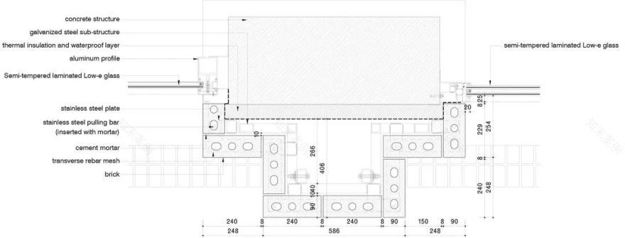
▲众安·美丰大楼 幕墙节点图一 © David Chipperfield Architects
▲众安·美丰大楼 幕墙节点图二 © David Chipperfield Architects
项目开始:2006
项目完工:2023
业主:上海洛克菲勒集团外滩源综合开发有限公司
建筑师:戴卫奇普菲尔德建筑事务所柏林与上海办公室
关于大卫·奇普菲尔德
2023 年,建筑界最高荣誉奖——第 45 届普利兹克建筑奖,于北京时间 3 月 7 日晚 23 点揭晓。英国城市建筑师、城市规划师和活动家大卫·艾伦·奇普菲尔德爵士 CH(Sir David Alan Chipperfield CH)获此殊荣。他是该奖项的第 52 位获奖者。他的作品“接纳现有的一切,在与时间和地点的对话中进行设计和介入,创建物质和文化上都可持久的建筑的一步。”2023 年普利兹克奖颁奖典礼将于今年 5 月在希腊雅典举行。
他的设计微妙而有力,低调而优雅,致力于呈现和定义低调但充满变革的市政面貌。以“惜墨如金”的笔触表达对历史和文化的敬畏、对现存建筑和自然环境的尊重。
“他充满自信但绝不傲慢,从不跟随潮流;他直面传统与创新之间的关联,并秉持对历史负责和为人类服务的态度努力加以维护。他的作品优雅而精湛,但他对自己设计成就的度量却是社会和环境福祉,致力于提高人们的生活质量。”主办方凯悦基金会主席汤姆士·普利兹克先生表示。
△David Chipperfield(大卫·奇普菲尔德),1953 年出生于伦敦,毕业于伦敦 AA 建筑学院,作品遍布全球。国内的上海西岸美术馆、良渚文化博物馆、浙江自然历史博物馆等都是出自其工作室。
我把此次获奖视作一种鼓励,我将继续关注建筑的本质和意义,会更加重视建筑师在应对当下气候变化和社会不平等方面的挑战中能做出的贡献。我们深知,身为建筑师需要扮演一个显著角色,通过不懈地互动互联,不仅要去创造一个更美好的世界,更要去创造一个公平的、可持续发展的世界。我们必须超越这一挑战,并帮助和启发下一代,让他们有远见和勇气来担当责任。
——大卫·奇普菲尔德
▲现代文学博物馆 Museum Of Modern Literature
▲苏黎世美术馆 DavidChipperfieldKunsthausZürich
小编在外网收集了一份最新的大卫·奇普菲尔德合集资料。
希望能够带大家走进大卫·奇普菲尔德的“永恒性”建筑
【建筑大师作品集】
2023 年普利兹克建筑奖得主
大卫·奇普菲尔德 David Chipperfield
案例图片 93 套+作品集电子书 3 本+SU 模型 4 套
共计 5.55G
文件目录部分预览
【案例目录】
11-19 Jane Street
Am Kupfergraben 10
Ansaldo_ Città Delle Culture
b720 Fermín Vázquez Arquitectos
Carmen Würth Forum_ Phase 2
David Chipperfield Architects Des Moines Public Library
David Chipperfield Architects San Michele Cemetery
David Chipperfield Architects 展览
EUROPAALLEE 21. Freischützgasse Houset
Form Matters – Questioni di Forma Arsenali Medicei
Gallery Building “Am Kupfergraben 10 Dav
Hotel Puerta América
Joachimstrasse Architects‘ office
Killesberg Vincitore del concorso per il nuovo quar
Lee Krasner exhibition design 展览设计
MAX DUDLER_ Wiel Arets Architects Europaalle
Michelangelo Pistoletto XXI Triennale di Milano
Morland Mixité Capitale
Neue Nationalgalerie refurbishment
Peek & Cloppenburg Flagship Store
The Bryant
The Circle at Zurich Airport “SOGLIO”
Valentino New York Flagship Store
Villa Schatzlmayr
Villaverde 住宅
上海宁国府邸豪宅项目(带方案)
上海西岸美术馆 West Bund Museum
九树公寓
伊甸园别墅 Villa Eden
公园旁边的公寓
其它
加利西亚住宅
博物馆 Museo Jumex Locatede
卡门·伍尔特论坛 Carmen Würth Forum
厄斯汀服务中心
司法宫的设计 Alberto Izzo & Partners PALACE OF JUSTICE_ SA
啤酒厂 B?tzow Brewery
圣·米凯勒墓地
圣米歇尔公墓扩建 San Michele Cemetery Extensiot
圣路易斯美术馆东楼 East Building_ Saint Louis Art Museum
圣马可广场 Saint Mark’s Square
外滩项目和外滩艺术博物馆 Rockbund Project & Rockbund Art Museum
奈特的房子
威尼斯梅斯特雷博物馆新马球文化馆
安东尼·葛姆利·基维克艺术中心馆 Antony Gormley Kivik Art Centre Pavilion
安萨尔多文化城
巴塞罗那司法城
巴黎工商会举办的设计竞赛中,HEC 管理学院获得一等奖
帕斯夸里·布鲁尼样品展示厅
帝国河畔酒店 Empire Riverside Hotel
席勒国家博物馆室内修复 Interior Restoration Schiller National Museumg
弗柯望博物馆
得梅因公共图书馆
拉斯穆森中心安克雷奇博物馆 Anchorage Museum at Rasmuson Center
新入口建筑
新圣菲利普中心 LSE – The New St. Philips Centre
景德镇陶溪川凯悦嘉轩酒店
景德镇陶溪川陶瓷艺术大道总体规划 Ceramic Art Avenue Taoxichuan Masterplan
柏林住宅
柏林新博物馆
棍棒和石头展览 Sticks and Stones Exhibition
正义之城
汉堡旅馆
河上泛舟博物馆
潘克拉斯广场 One Pancras Square
爱茉莉太平洋总部韩国 Amorepacific Headquarters
现代文学博物馆 Literaturmuseum der Moderne
现代文学博物馆 RIBA(英国皇家建筑师学会)斯特林奖 2007
瓦伦蒂诺伦敦旗舰店 Valentino London Flagship Store
瓦伦蒂诺罗马旗舰店 Valentino Rome Flagship Store
疗养院 Sanatorium Dr. Barner
稻川公墓礼拜堂和游客中心 INAGAWA CEMETERY CHAPEL AND VISITOR CENTRE
纽斯博物馆
维拉诺瓦的公寓
罗马帝国大道
联排别墅 Townhouse O-10
良渚文化博物馆 Liangzhu Culture Museume
苏格兰太平洋码头 BBC 大楼(英国广播公司)
苏黎世美术馆 Kunsthaus Zürich
莫干山路办公楼 Office building Moganshan Road
菲戈艺术博物馆
西溪湿地庄园 Xixi Wetland Estate
詹姆斯·西蒙画廊 James Simon Galerie
诺伊斯博物馆 Neues Museum Also available
诺贝尔奖新中心 Nobelhuset New Nobel Center
贝多芬音乐节 Beethoven Festspielhaus
赫普沃斯·韦克菲尔德画廊 Hepworth Wakefield Galler
道斯和卡百那商店
阿卡沙整体健康中心 Akasha Wellbeing Centre
雅各比工作室 Jacoby Studios
高姆利工作室
现代文学博物馆 Literaturmuseum der Moderne
【电子书目录】
El Croquis 120 DAVID CHIPPERFIELD 大卫奇普菲尔德作品集 1998-2004
El Croquis 150 DAVID CHIPPERFIELD 大卫奇普菲尔德作品集 2006-2010
El Croquis 174-175 DAVID CHIPPERFIELD 大卫奇普菲尔德作品集 2010-2014
部分预览
由于内容过多,就不在这里一一展示,
限时特惠价:30 元
越早买 越实惠
- END-
本产品为电子格式资料,
短信
!
----------------------------------
.END.
- 云想衣裳名师资料集-
免责声明:
以上图片及资料内容来源于网络,由我方整理,版权归原作者及其公司所有;
本资料仅供个人学习研究之用,不得用作于商业用途,若此图库侵犯到您的权益,请与我们联系删除;
2022 新品推荐
案例图集
1. 现代精品酒店图集-9.4G
2. 286 家最美民宿图集-17G
3. 别墅豪宅图集 161 套-16G
4. 暗黑系高端住宅图集-2G
5. 无主灯住宅图集-781M
6. 奶油风住宅图集-5.88G
7. 最新办公案例图集-13G
8. 办公大堂&前台图集-1G
9
电梯厅&电梯轿厢图集
10创意建材展厅图集-5.5G
设计素材
1
2022 米兰家具展·26.7G
2
2021 广州设计周·15.7G
3
2021 年 SU 模型库·59G
4
15 种风格彩平 PSD 合集
5
工装&家装楼梯图集·5.2G
6
国内外豪宅视频合集·52G
7
网红咖啡馆合集·5.3G
8
概念氛围图合集·50G
设计必备
1
大师豪宅平面 CAD 合集
2
CCD 郑中设计平面合集
3
户型优化 PSD 彩平素材库
4
十大主流风格 PPT 模板
▲2023 广州设计周实景图集带参展商联系方 / 11120 张 / 18.7G
▲云想名师资料 2022 年度硬盘-全年更新完毕 (硬装+软装)
将【云想设计美学】设为“星标”,可第一时间接收设计圈最新精选内容。?,订购【大卫·奇普菲尔德丨100 套丨5.55G】
客服
消息
收藏
下载
最近




































































































































































