查看完整案例


收藏

下载
京基智农·山海御园° BaoAn,ShenZhen,2023 美是艺术的目的和推动力。――冈察洛夫▼播放视频
DESIGN OF N+1° 实用生活美学设计全案 °
本案为精装房设计,业主希望打破常规,实现开放式厨房和衣帽间的需求。设计师采用了经典的黑白色调,摒弃了传统的咖色棕色系色调,通过运用不同的形体设计,呈现出不同的风格家居体验,彰显留白的现代艺术。
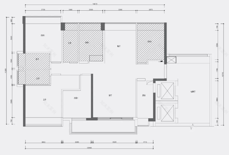
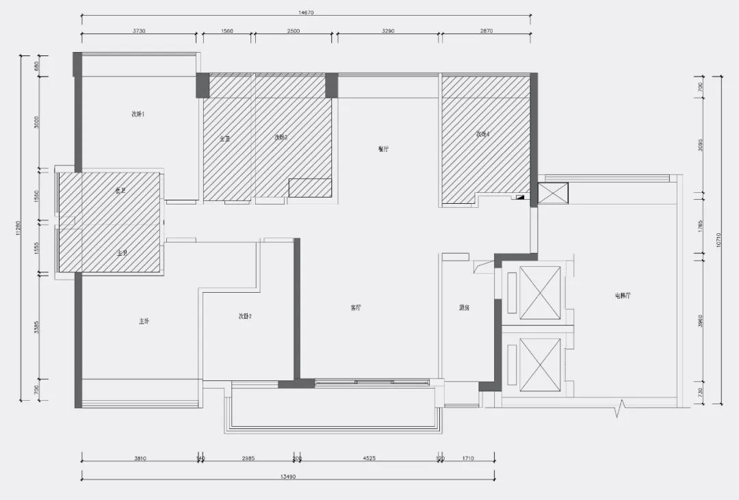
Space Plan 空间平面布局°
设计改造点:
①将厨房与客厅打通,做开放式厨房;
②封阳台窗纳阳台空间入客厅,扩大客厅面积,沿墙体做电视背景储物柜;
③打通次卧,将主卧与次卧连成衣帽间,做成一个套房的形式。
Hallway 玄关°
Living Room 客厅°
将极简白与高级黑的极致魅力尽情展现,营造出空间现代而纯粹的质感。这种设计让人感受到安然自在、简单轻松的感觉,仿佛置身于一个宁静而舒适的空间之中。
通过黑白色调的运用,营造出现代简约而优雅的空间氛围。原有的沙发背景墙被拆除,取而代之的是奢黑纹理的白色大理石水吧台,不仅实用性强,还为空间增添了一丝现代感。自然舒适的灯光环境,进一步加强了空间的自由舒适感,让人在这里感受到家的温馨与宁静。
原阳台门被拆除后,让阳台成为室内的一部分,增加了空间感。电视背景墙的设计兼顾了美观与功能,为空间增添一份独特的风格。整体设计简约而不失现代感,让人感受到舒适与温馨。
白色大理石装饰背景,搭配定制电视柜,柜体设计运用留白的手法,提高空间档次与设计感,天花安装磁吸射灯,线性轨道勾勒出空间的精致与层次,点光源的设计使空间氛围更加柔和。
Dining Room 餐厅°
利用原有的飘台,设计师巧妙地打造成了餐边柜,不同的材质界定出了功能区域,充满了简约的设计美感。角落与餐桌中央摆放的绿植,温馨的质感不言而喻,让人感受到家的温暖和舒适。
马扎灯位于用餐区上方,黑色系餐桌搭配黑色椅子,别有一番特色,让整个用餐区域显得更加高雅和现代。
Kitchen 厨房°
开放式的厨房设计,通过推拉门隔绝了烹饪时带来的油烟,同时保证了空间的通透性和舒适度。橱柜的设计巧妙而实用,让地柜和高吊柜用颜色区分,提高了空间利用率,同时使用起来更加方便和高效。吧台不仅可以休闲使用,当推拉门移动到另一边吧台下方也可以储放一些大件的锅碗。
Gallery 廊道°
Master Bedroom 主卧°
主卧背景采用白色木饰面弧形造型,加入白色格栅内嵌灯带放大视觉空间感。卧室选配简约而时尚又有设计感的床头柜与床头灯,彰显居者独有的情怀。
衣帽间区域地面设计中岛台,白色的烤漆定制柜与茶色玻璃柜门定制柜,利用墙体延伸的梳妆台更显设计感。
Room For The Elderly 长辈房°
淡雅的暖灰色为主要部分,搭配绿色柜体增添清爽感使得配色更加舒适,表现出沉稳品质感。
Children’s Room 儿童房 °
由于业主的宝宝还小,没有购置婴儿床等家具,设计了储物空间与空置区域提供孩子在家里肆意玩耍,在家里搭起帐篷筑起孩子的自由乐园。
Toilet 卫生间°
Balcony 阳台 °
Comparison Of Effect And Real Scene
效果图与实景对比°
效果图°
实景图°
效果图°
实景图°
效果图°
实景图°
效果图°
实景图°
效果图°
实景图°
效果图°
实景图°
效果图°
实景图°
效果图°
实景图°
效果图°
实景图°
效果图°
实景图°
Project Information 项目信息°
设计出品 OFD 一度经纬°设计
项目名称 京基智农·山海御园°
Info.关于 °
One Focus Design 一度经纬°,一度之差,经纬之别。2017 年创立于深圳,是一支年轻职业化的设计新秀。以“设计关联生活”为设计理念,倡导“DESIGN OF N+1 ° 实用生活美学”主张,为中国年轻私宅业主及商业客户提供专业化、职业化的实用生活美学空间设计、工程营造、艺术软装、全屋定制四大板块的设计、产品及服务。致力于 N+1°实用生活美学空间研究、提案与职业化的设计服务,回馈每一位给予信任的客户,同时注重培养职业化设计师以获得市场尊重,以期成为受尊重的年轻职业化设计领跑品牌,并努力让世界看到中国设计。
OFDCustomer 客户楼盘分布
OFDHonor 所获奖项
OFDCustomer 客户楼盘分布
OFDSupplier 合作品牌
OFDSupplier 合作软装品牌
More 更多°
OF 25°RZZ de LUXE 中古店,黑白经典的奢品艺术空间
OF 26° Healing Brand 希灵漂浮健康管理中心,探寻漂浮疗愈的力量
生活提案 54° 深铁懿府,复古与优雅的邂逅,营造开放与自由的居家氛围
客服
消息
收藏
下载
最近











































































