查看完整案例


收藏

下载

翻译
The Porte de Montmartre neighborhood is located in the northwest part of the 18th arrondissement of Paris, bordering the town of Saint-Ouen. It comprises one of the priority sites in the extensive Urban Renewal project undertaken by the city of Paris in its effort to increase engagement and set into motion a real process of change.
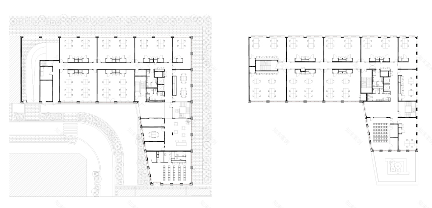
Our project met the programmatic requirements calling for a complex of 59 premises for businesses, with communal areas, a multipurpose hall, a conference room, cafeteria, and 33 parking spots underground.
Our goal is to build a sustainable structure for businesses, the whole integrating a specific quality of life, expressed through a generosity of openings, terraces, workspaces, quality landscape planning, views, multiple orientations . . . in short, architecture that transforms urban and programmatic constraints into veritable assets. It is a terraced structure that splits and turns at a right angle, remaining parallel to a second road.
The L-shaped building has large bay windows looking out from all sides throughout, while a large hall traverses and opens up the ground floor. The entrance halls meet in front of the elevators, preserving an east-west transparency at all levels of the building. The architecture of our building is directly inspired by the principle of a “daylight factory”.
This North American architectural tendency seeks to bring the maximum amount of natural light into the workspaces. The workshop and office buildings are thus designed with open-space floors, lit internally through facades made largely of glass, and topped by terraced roofing.
客服
消息
收藏
下载
最近

























