查看完整案例


收藏

下载
△建筑收分的外墙
摄影:夏至
△图书馆采用了中空的四角对称设计
摄影:存在建筑-建筑摄影
设计单位:江苏中锐华东建筑设计研究院有限公司荣朝晖工作室
项目地点:四川省炉霍县
建成时间:2022 年 5 月
建筑面积:6000 平方米
这是一个艰苦的项目,但也是严酷的条件下创造了宁静和愉悦的项目。
项目位于四川西部藏区大山之间海拔 4000 米的小块冲积地上,两侧的山体巍峨壮观,但也对场地带来了强烈的压迫感,这里唯一通往外界的途径是一条沿着山谷的 4 米宽乡道。
△场地位于大山之间的小块冲积地上
摄影:夏至
△场地鸟瞰摄影:夏至
△场地鸟瞰夜景摄影:夏至
严酷的外部条件迫使建筑用自身力量去抵抗不利因素,创造出一个具有强烈精神力量的场所。结构、空间和秩序的高度统一让建筑表现出一种宗教般的氛围。
△空间、结构、秩序示意图©中锐华东荣朝晖工作室
四角对称设计的中庭
摄影:夏至
四角对称设计的天窗 摄影:存在建筑-建筑摄影
△天窗构成细节
摄影:夏至
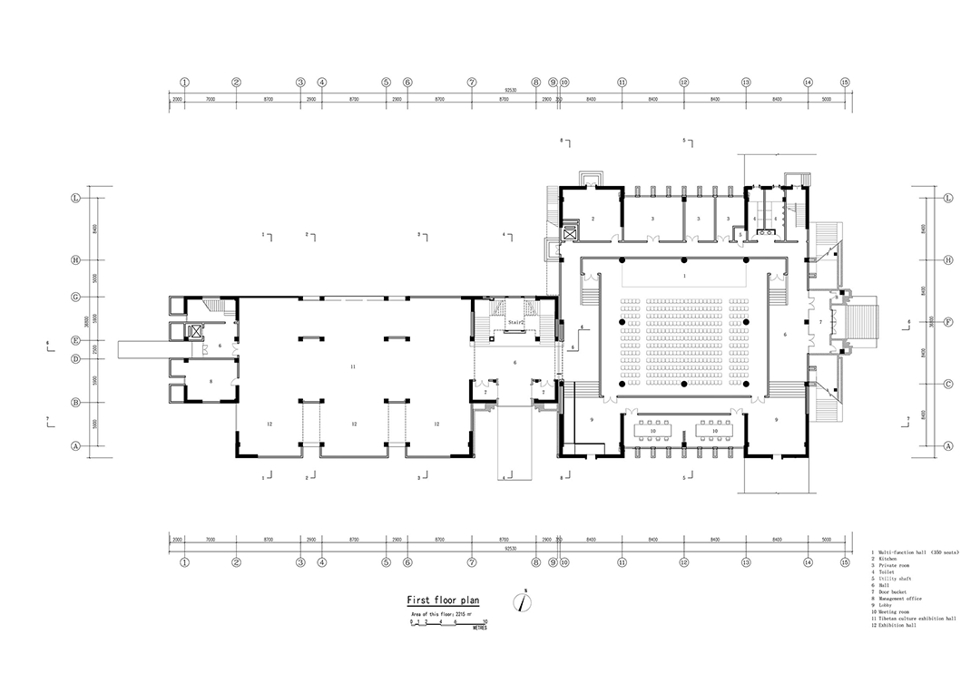
该建筑主要包括图书馆和藏服饰文化博物馆两部分。博物馆采用了典型的 AB 空间模式布局,而图书馆则采用了非常明显的向心系统,两者通过一个共用门厅连接在一起,形成一个整体。
△手绘草图 ©中锐华东荣朝晖工作室
△图书馆和博物馆的空间模式布局©中锐华东荣朝晖工作室
△一个共用门厅连接图书馆和博物馆
摄影:夏至
西南侧建筑外观摄影:存在建筑-建筑摄影
东南侧建筑外观摄影:存在建筑-建筑摄影
图书馆采用了中空的四角对称设计,上部中厅的天窗以 45 度角度扭转,突出了中心的存在。高出屋顶的天窗为内部带来丰富的自然光线,赋予图书馆内部多样的视觉效果。
△图书馆剖透视©中锐华东荣朝晖工作室
△图书馆下部中庭摄影:存在建筑-建筑摄影
△中庭周围的阅览空间
摄影:存在建筑-建筑摄影
扭转的天窗与中庭内的砖柱形成系统性的扭转关系。
图书馆下部的会堂空间与上部的用途正好相反:上部的中庭公共空间变为下部的会堂空间,而上部的使用空间则变为下部会堂的服务空间。
△天窗与砖柱形成丰富的空间关系
摄影:存在建筑-建筑摄影
△转角形成的休憩空间 摄影:存在建筑-建筑摄影
△多功能厅 摄影:夏至
在藏区,阳光只要有机会就会毫不犹豫的穿透空间,和建筑共同演绎静溢和光明的对话。空间呈现出了一种祥和的氛围,令人感受到宁静和温暖。
△手绘草图 ©中锐华东荣朝晖工作室
△阳光透过天窗洒向中庭
摄影:存在建筑-建筑摄影
△阳光在空间内部组成多样的视觉效果
摄影:存在建筑-建筑摄影
△阳光穿透空间,呈现出了一种祥和的氛围
摄影:存在建筑-建筑摄影
△阳光洒在座椅区
摄影:存在建筑-建筑摄影
座椅区
摄影:夏至
由于生产力水平和建筑建造技术相对滞后,再加上藏地气候恶劣,粗糙是藏地建筑的一种基本特质,但这种粗糙背后也蕴含着强大的力量。收分的外墙是很明显的藏区建筑特点,而外部喷浆外墙材料的使用赋予建筑强烈的手工感,自然挂下的浆体呈现出类似布达拉宫泼甜墙工艺的效果。
△建筑收分的外墙
摄影:夏至
△喷浆外墙细节
摄影:夏至
△泼甜墙工艺 图源网络
与整体的粗糙形成反差,局部的精细工艺具有一种敬畏之情。砖材的容错性和获取便捷性,以及砖拱施工工艺的成熟,使砖成为参与项目的人表达敬畏之情的理想选择。两个入口处的砖拱都是经过真实的发卷完成的,尽管开始时工人们有所抵触,但当木模拆除后,砖拱呈现出来时,每个人都为自己表现出的敬畏之情感到骄傲和欣喜。
△项目外观摄影:夏至
△ 东侧入口处的砖拱
摄影:夏至
△ 南侧入口处的砖拱
摄影:夏至
△粗粝的外墙和砖材的精细摄影:夏至
△ 东侧入口夜景
摄影:存在建筑-建筑摄影
东侧
入口砖拱夜景摄影:夏至
大面积的材质对比赋予建筑以力量和真实感,没有多余的装饰。位于东南角高处的窗户是建筑上为数不多的装饰构件,具有抽象的藏式窗户风格。在洞口的处理上,设计充分考虑施工的顺序,特别是对窗框、门框和墙交接缝的遮挡。同时,在窗洞口内的 100 毫米范围内采用精细抹灰处理,使建筑显得更加精致。
△ 西南侧建筑外观 摄影:存在建筑-建筑摄影
△抽象的藏式风格窗户
摄影:夏至
△喷浆外墙和藏式风格窗户
摄影:夏至
考虑到高原地区的施工条件,内部装修采用了直白的建构呈现方式,其中最重要的工作是设备的整合。空间分隔完全采用了土建方法后,书架和家具成为装修的主要组成部分,这些组件在成都预制完成,然后在现场进行安装。
△ 天花与天窗细节 摄影:存在建筑-建筑摄影
△天窗与吊灯细节
摄影:夏至
△在阅读的藏区人们
摄影:存在建筑-建筑摄影
△书架和家具细节
摄影:夏至
△ 室内 摄影:夏至
尽管藏区条件艰苦,但不缺乏真诚和信仰。项目的资金来自慈善基金会的筹集,面对这份善意,所有产于者都是小心翼翼并且竭尽所能。业主本人甚至在工地居住了长达 3 年多的时间,以行动践行信仰。所有人的努力使项目完成度超出了预期,再次证明了一点:困难不是问题,态度决定一切!
△雪山圣光
摄影:会济
夜晚亮灯后建筑外观
摄影:夏至
摄影师在项目拍摄中捕捉到了一幕:阳光穿越云层洒在图书馆上,周围一片漆黑。
这一幕的呈现不得不让人思考物质背后的精神力量,这大概是人存在的终极意义。
△阳光穿越云层洒在图书馆上,周围一片漆黑
摄影:存在建筑-建筑摄影
模型照片
△实体模型©中锐华东荣朝晖工作室
△模型室内细节©中锐华东荣朝晖工作室
设计图纸
△一层平面©中锐华东荣朝晖工作室
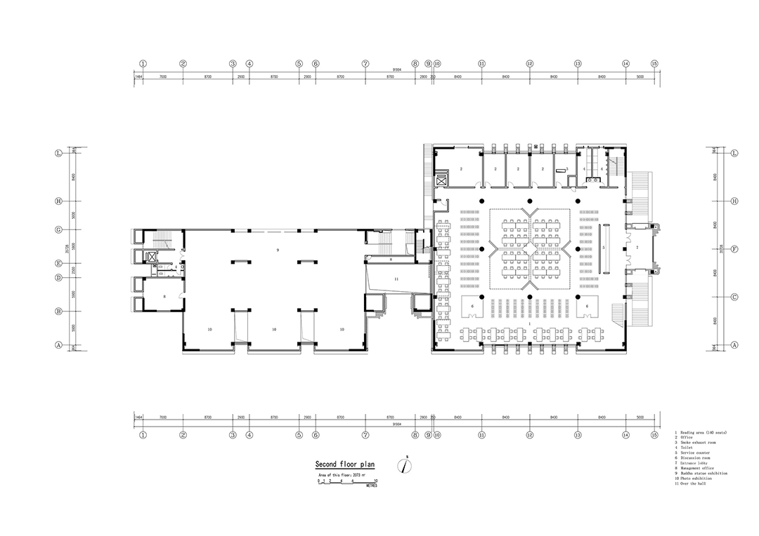
△二层平面©中锐华东荣朝晖工作室
△三层平面©中锐华东荣朝晖工作室
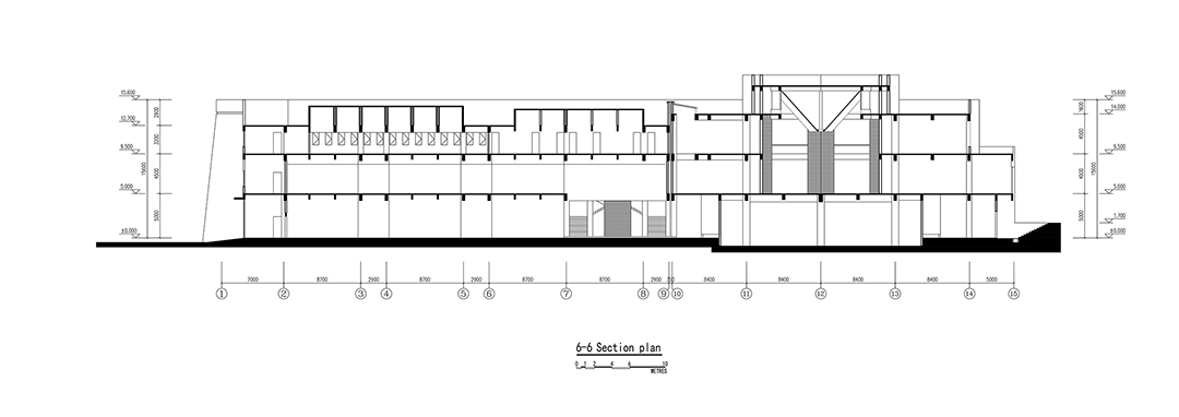
△剖面图©中锐华东荣朝晖工作室
△节点大样©中锐华东荣朝晖工作室
完整项目信息
项目名称:德巴图书馆
项目地点:四川省炉霍县
设计单位:江苏中锐华东建筑设计研究院有限公司荣朝晖工作室+杭州心象建筑设计咨询公司
主持建筑师:荣朝晖
建筑设计团队:顾爱天、王雪丰、刘永平
室内设计团队:宋鹏、姚十、张帅、章慧
景观设计团队:章洪寅、邵勤、杨杰
灯光顾问:张鹤清
建筑面积:6000 平方米
结构体系:框架结构
设计时间:2018.11-2020.10
施工时间:2020.12-2022.05
摄影:夏至、存在建筑-建筑摄影
视频:夏至
视觉/饶安林
校对/楼樱
本文由江苏中锐华东建筑设计研究院有限公司荣朝晖工作室
客服
消息
收藏
下载
最近












































































