查看完整案例


收藏

下载
谁信门前车马隘,别是人间闲世界
坐中无物不清凉,山一带,水一派
流水白云长自在
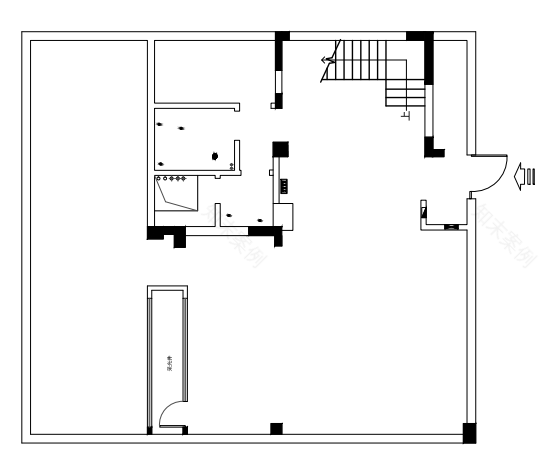
原始平面
平面布置解构破局该项目为市区的一幢独栋别墅,地上两层,地下两层,庭院为错落式结构。第一次现场测量时,发现一层原本不大的客厅要容纳客餐厨;超高的挑空又占据二楼大量的空间,给人以局促压抑的感觉。而且整个客餐厅的窗户面较小,采光不足且不能与庭院互动。“人际关系之间,最好的就是舒服,对于空间来说,特别是自己的家。同样重要的就是舒服。”设计师杨磊便将所有空间重新结构:■将原本一楼闭塞的客餐厨重新整理,只保留客厅功能■增设一部电梯,餐厨整体下移打开,敞开■封上挑空与露台,将更多的空间给予休憩■空间流动,内外交织居住其中闲适的、恬静的岁月变得意义非凡
-2F
家庭共享
艺术与情感的融合」
Family Shared Area
The fusion of art and emotion
作为一家人主要的娱乐场所,负二楼柔软的家具和温馨的环境共同营造出一个温暖宜人的氛围。在这里,时间仿佛变得缓慢,可以安静的观赏影片,品茗静坐,也可以活力的运动,慢弹秦声。
包罗万象,又寂寞虚空,蕴含着不可思议的力量,却又深不可测。
家是有机的实体,内部空隙的部分除了填充满足居住者需要的实际功能,更诗意的构思便是为光提供生长的机会。
为了解决地下层的采光,茶艺区北侧庭院预留方形开口,光顺着采光井倾泻而下,照亮室内。
-1F
情感纽带
感知每一天的力量 」
Emotional bonds
Feel the power of each day
顶面与立面的分割法线,在这个案子里面是一种形式上的克制作用,用于给视觉感知一个文章中符号的意义。
餐厅映照着家庭的点点滴滴,投射在大小错落的天花板上,玻璃格栅隔离了其它区域,空间分离而不隔离,互相交流汇合,冲破桎梏。
品味三餐四季,身心也变得更鲜活。
1F
空间布局
交互式的自由平面」
Spatial Layout
Interactive, free-form
明月清风,宁静以致远,丢掉以电视为中心的传统意义客厅,在这里可以享受与家人朋友的热烈交谈,也可以松弛地独处。
极简的生活,不是一味的断舍离,而是消除不必要的东西,为生活留出空间与时间,在所需之处感受幸福,幸福源自内心,源自充满意义的生活。
在光的余韵中,穿插、叠合、交错的体块有了自己的形象和台词,以全新的姿态重塑着空间的气场。
2F
E时代的私人空间
个性与平衡 」
Private space of Z Times
Personality and balance
居所不仅是日常生活的载体,更是我们愿意交付身心的归属地,这是我们与家的深度链接,属于彼此的完美契合。
贯穿“外在简单、内在丰盈”的设计核心,从公共区域到私密空间,自然舒适的氛围始终萦绕,人置于其中,忘却日常的疲惫,安心享受伸手即可触碰的美好。
项目名称|揽月府
项目地点|中国 · 西安
项目类型 | 住宅空间
设计主创|杨磊
设计面积|480m²
设计公司|旗盛装饰
工程管理|旗盛装饰工程管理
ABOUT DESIGNER
杨磊
从业12年
毕业于西安美术学院
客服
消息
收藏
下载
最近

































