查看完整案例


收藏

下载

翻译
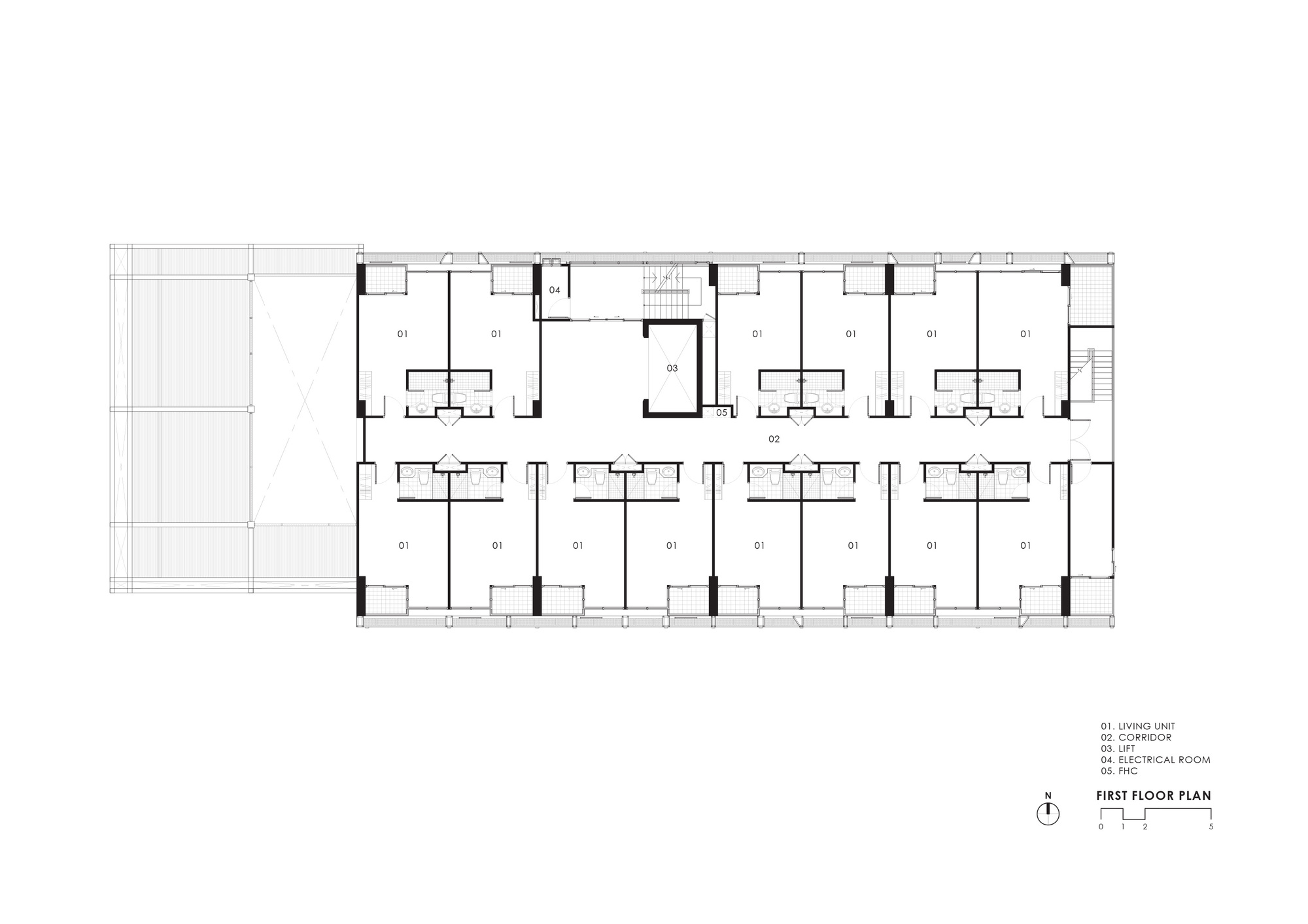
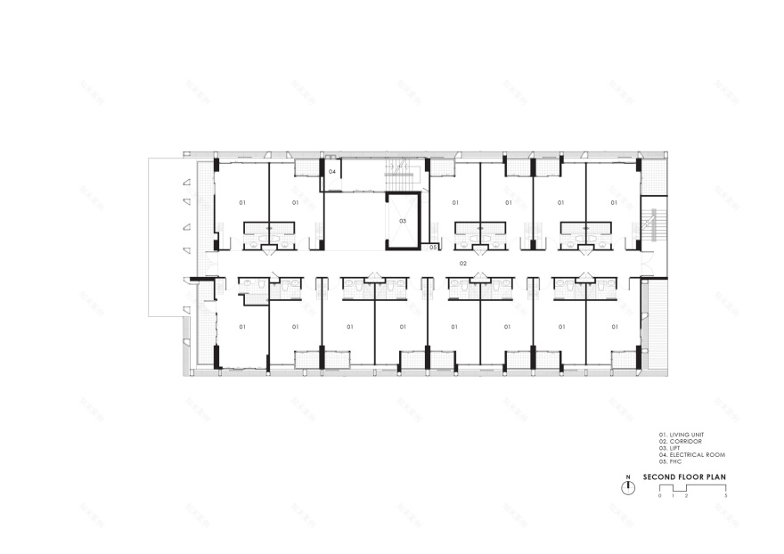
The central part of Nakhon Si Thammarat, one of the most ancient cities on the southern part of Thailand, is the location of Navakitel Design Hotel. The site is surrounded by shophouse and residence. This hotel consists of 68 accommodation units, lobby on the ground floor and open terrace on the third floor for organizing hotel activities.
The initiation of the project was to design an apartment with a reinforced concrete structure. In order to transform the function of an apartment to a hotel, the architect decided to maintain the remaining building floor plan which had already been built up to the second floor. From the construction drawing, the room types are categorized according to the room size, which each floor have similar rooms type.
The architect chose the thin and sharp steel plate for this 7-storey concrete building to melt the thickness of the building. By using the solid steel plate and expanded metal to create some dimension and blur the solidity of the building, it also allows natural light to penetrate into the building.
In this project, the architect also elaborately designs the building system, which is usually being neglected. The architect had consulted with electrical engineers to integrate the building system with the lighting decoration and other equipment in the interior space, including guest room, lobby and corridor. Instead of concealing it with gypsum ceiling, this systematic part is being exposed and the result of the collaboration between architect and engineer later become part of building aesthetic.
Using the expertise of local craftsmanship (including ironworkers, carpenters and masons) these know how were applied to the architecture and interior design in order to reflect the unique characteristics of Nakhon Si Thammarat through the hotel design.
客服
消息
收藏
下载
最近





































