查看完整案例


收藏

下载

翻译
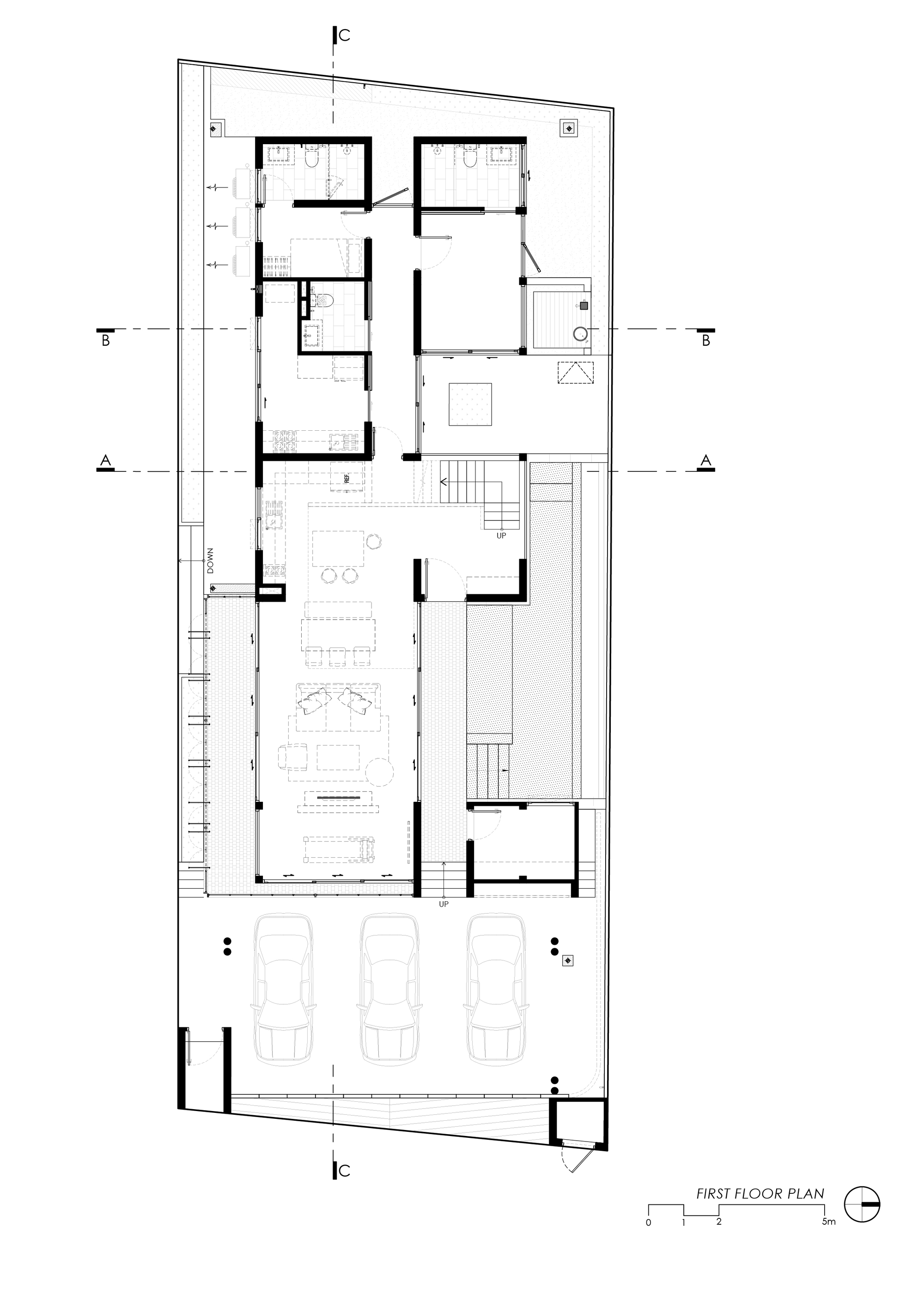
WEHA HOUSE is a tropical house of a small family located in Bangkok, Thailand. With a passion for aviation of the owners, they required a house with a connection to nature. Hence, the concept of the house was created to reflect their characteristic. The architect intended to dissolve the boundary between the indoor and the outdoor space by using the space organization and the material which allow a visual relation between the residents as well as the outside nature.
The adaptation of the house to the local tropical weather becomes a main characteristic of the house. Instead of insulating the living space from the heat and humidity, the architect decided to allow these qualities to become part of the design. The permeable façade made of steel mesh wrapping around the house decreases the solidity of the mass as well as allows natural ventilation and light to penetrate within the living space without depriving the residents’ privacy. Moreover, the transparency quality of material allows plants to grow and become part of the architecture.
▼项目更多图片
客服
消息
收藏
下载
最近
































