查看完整案例


收藏

下载

翻译
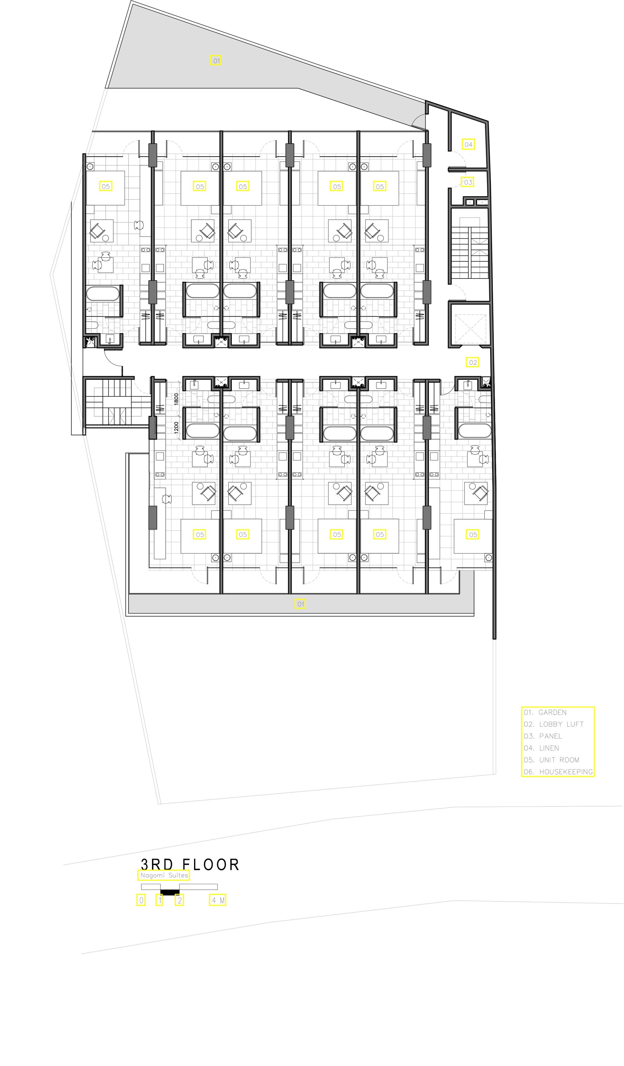
Nagomi Suites is an accommodation with full serviced suite room facilities located in South Jakarta. Located only 200 meters from Ayodya Park, a green public space in the neighbourhood, Nagomi Suites applied the concept of continuous greenery into the building from the park. Consisting of 6–story, the greenery concept also been done vertically by giving each story layers of the garden, so every room units are having a view of the private garden.
The building façadeis facing west means receives the strongest sun at the hottest part of day time in tropical areas, Nagomi Suites applied balconies on the top story room unit as sun shading. Nagomi Suites consist of 40 suite rooms. Each room has an area of 40.5 square meters; facilitated with private pantry, a dining area, a bathroom with bathtub, and the private garden. The top story used as a penthouse with one master bedroom, one bedroom, living area, dining area, also with a large rooftop terrace garden.
The corridors of Nagomi Suites building utilize natural cross-ventilation from vent blocks that applied in the north and the east facade of the building. As the existing site already further below the main street, it used as basement parking zone with less landfill work on the site. The basement also functioned as a building-service room. While in the one level up from the basement functioned as the main lobby, next to the back office house and commercial area. The Nagomi Suites building material is mainly finished with exposed concrete and bengkirai wood.
客服
消息
收藏
下载
最近





























