查看完整案例


收藏

下载
© Soopakorn Srisakul
(Soopakorn Srisakul)
架构师提供的文本描述。这座建筑位于曼谷典型的城市场景中,环境复杂多样,由摩天大楼、小木屋甚至临时食品店组成。建筑师面对最大的商业空间的需要,同时保持建筑质量的紧密性的网站。该项目是一个多阶段的建设任务;一个两层的附属建筑是第一次建造,而现有的,一层楼的建筑仍然作为食品法庭运作。在附件完成后,现有建筑物的屋顶被抬高,覆盖在现有地基上建造的新建上层楼板。一楼提供了一个空间,一个最小的艺术,出租商店,停车场和一个临时亭的公共大厅。底层的设计是基于一个3.5x3.5m的现有结构网格。
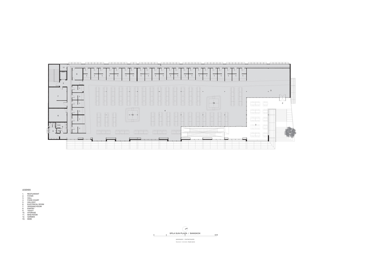
Text description provided by the architects. The building is located in a typical urban scene of Bangkok, a heterogeneous context, an ensemble comprising of skyscraper complexes, tiny wooden houses or even temporary shelters for food stalls. The architect confronts the need for maximum commercial space while maintaining an architectural quality within the tightness of the site. The project is a multi-phase construction task; a two-story annex is first constructed while the existing, one-story building still operates as a food court. After the completion of the annex, the roof of the existing building is raised up to cover the new-built upper floor plate constructed on the existing foundation. A ground floor provides spaces for a minimart, rental shops, parking and a common hall for temporary kiosks. The design of the ground floor is based on an existing structural grid of 3.5 x 3.5 m.
Cross Section
© Soopakorn Srisakul
(Soopakorn Srisakul)
上面的一层是专门为美食广场而设的,一边是长方形的餐厅,一边是各具特色的食品店。食品店后面有一条通往中央洗涤区的公共服务走廊。这种安排最大限度地增加了座位容量,并在公共道路上创造了一个不受阻碍的漂浮立面,导致餐厅和行人向下的视觉连接。一个长长的锯齿状柜台被投射成一条动态的线条,形成一个僵硬的餐厅形状。两个独立的亭被故意放置在餐厅里,有节奏地划分它,同时保持被分割的空间之间的相互作用,给大厅带来一种流动空间的感觉。
An upper floor is dedicated to a food court, a rectangular dining hall flanked on one side with a raw of individual food parlors. The food parlors are backed with a common service corridor leading to a central washing area. This arrangement maximizes the seating capacity and creates a non obstructed floating façade along the public road leading to a visual connection between the dining hall and the pedestrian downward. A long servery counters are projected slightly inclined to introduce a dynamic line into a rigid shape of the dining hall.Two free-standing kiosks are placed deliberately in the dining hall dividing it rhythmically while maintaining the interaction of divided spaces bringing a perception of flowing space into the hall.
© Soopakorn Srisakul
(Soopakorn Srisakul)
一个主要的室外楼梯指示行人从地面上的一个小露天广场一直到楼上的食物场。在剪刀安排中,两条自动扶梯对商业区和食品场之间的使用者进行了调节。该建筑预计与相邻的建筑物一致,外观与相邻的建筑协调,在城市环境中赋予透视视图的视觉连续性。正面的四个“流行”部分强调了建筑的长度。
A main outdoor stair directs pedestrian from a small open square on the ground level up to the food court in the upper floor. Two escalators in scissor arrangement regulate the user between commercial area and food court. The building is projected align with the neighboring buildings, the façade harmonizes to an adjoining building giving the visual continuity of perspective view in urban context. Four “Pop-up” parts of façade accent the lengthiness of the building.
Longitudinal Section
© Soopakorn Srisakul
(Soopakorn Srisakul)
浮面与各种尺寸的纤维水泥板的重复模组合在一起。不同颜色的面板有助于像素化一个巨大的建筑质量成为一个温和的外观,同时不断说明建筑物的存在。与五颜六色的外皮不同,室内以白色为主,在建筑内外形成了严格的边界。
The floating façade is cladded with a repetitive module of the various sized fiber cement panels. The different shade of the panels helps to pixelate a gigantic building mass into a mild appearance while keeps stating an existence of the building at the same time. In contrast to the colorful outer skin, the interior is dominated by white creating a strict boundary between inside and outside of the building.
© Soopakorn Srisakul
(Soopakorn Srisakul)
Architects Poonsook Architects, Normalstudio
Location 1058/102 Thanon Phahon Yothin, Khwaeng Chom Phon, Khet Chatuchak, Krung Thep Maha Nakhon 10900, Thailand
Lead Architects: Supat Vongruttana, Veranit Amornprasertsri, Siranat Puttipipatkhachorn, Tanakit Sinon, Nimitchai Amornprasertsri
Area 3500.0 m2
Project Year 2016
Photographs Soopakorn Srisakul
Category Shopping Centers
Manufacturers Loading...
客服
消息
收藏
下载
最近



























