查看完整案例


收藏

下载
“宅中有院,园中有屋,屋中有院,院中有树,树上见天,天中有阅,不亦快哉!”
——林语堂《来台二十四快事》
林语堂先生笔下的带了院子的房子,是每个当代人心中最理想的起居之所,在我们心中,每人都有一隅属于自己的理想的院子,这里或有繁花,亦或是简洁。
“院”与“园”是中国传统住宅建造里不可缺失的建筑符号,院和园不仅是一个家,更是国人一种由来已久的文化情结,它体现了人们对于精神和个人空间的追求。
建筑外景
室内、建筑和景观的高度一致性,也让每一个到来的人都感知
如“游园“一般的
路径,是光、景和线条的模式,它们各自独立,又形成了互相映衬的彼此。
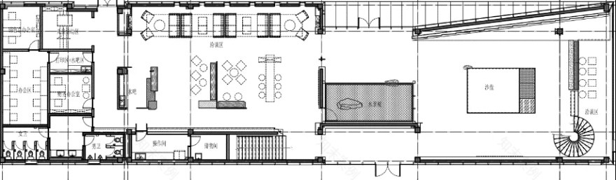
生活馆L1平面图
生活馆L2平面图
项目信息
项目名称:蓝城·台州澄园生活馆
地点:浙江台州
设计公司:WJ STUDIO万境设计
主创设计:胡之乐
设计团队:叶长青、刘淑贤、康芳、张永慧
业主:台州开投蓝城投资开发有限公司
项目面积:生活馆 837㎡
完工时间:2020年11月
项目主材:灰镜、不锈钢、大理石面、木饰面、石材
项目摄影:张锡
文案:Lucie
WJ STUDIO万境设计创始人 / 设计总监 曾就职于日本 PROSHMA,在 GOA 大象设计公司担任设计总监及项目负责人,配合建筑设计大师 Renzo Piano 首个中国项目,并担任中方技术负责人,2014年创办万境设计。 他认为,设计是一种思维方式,他不仅注重建筑内外空间的延续性和创造性思考,更加关注设计的内容体现,从理解建筑、周边环境以及产品核心要素出发,善于打造具有时间延伸性的空间作品。
WJ STUDIO万境设计创始人 / 设计总监
曾就职于日本 PROSHMA,在 GOA 大象设计公司担任设计总监及项目负责人,配合建筑设计大师 Renzo Piano 首个中国项目,并担任中方技术负责人,2014年创办万境设计。 他认为,设计是一种思维方式,他不仅注重建筑内外空间的延续性和创造性思考,更加关注设计的内容体现,从理解建筑、周边环境以及产品核心要素出发,善于打造具有时间延伸性的空间作品。
客服
消息
收藏
下载
最近


























