查看完整案例


收藏

下载
今天的线下商业空间对设计有着比以往更高的需求,单一功能的销售空间已无法满足新一代的消费群体。商家们期望能在线下与消费者建立更深的联结,传递品牌价值,从而建立更高的客户粘性。
Today, people have higher expectation than ever on in-store experience, For businesses, there’s more focus than ever on going beyond the expected product or service to deliver a customer experience that truly differentiates. It is viral for retail store design to identify a way by which the brands can establish a strong connection with consumers, deliver brand value, and build sticky customer relationships.
考虑到店铺位于历史悠久又充满活力的北京坊,SODA将Vivinevo的首家店铺设计成了一座“香氛艺术馆”:以品牌的特色体验为主题,销售功能融于其中,同时为北京坊的步行街增添艺术氛围。
Considering the surrounding area, BEIJINGFUN, a historic and vibrant place, SODA imagines the VIVINEVO’s first store with the perspective of art gallery, integrates brand experience into retail space, and develops an innovative solution to meet and exceed customers’ expectations. The VIVINEVO Fragrance Art Gallery designed by SODA is becoming a popular destination in BEIJINGFUN.
▼项目入口,entrance of the project ©陈惜玉
SODA希望能通过馆外的花墙吸引过往行人的注意,用洋溢的花香邀请行人走进犹如一瓶香水般的入口,逐步接近一滴涌动的香水,浸入一滴香水,并在最后带走一瓶属于自己的定制香水。
SODA designs a flower façade to attract people from a distance, and invites them walk into the gallery through a perfume-bottle-shape entrance where customers are immersed in floral fragrance. A surging surface of a drop of perfume is enlarged and showed up following by. Customers are soaked in perfume and leave the gallery with a customized one for their own.
▼街景,花墙吸引行人注意,street view, flower facade attracting people from a distance ©陈惜玉
香水是变化的,液态的;香味是无形的,气态的,是随时间而变化的。设计师希望艺术馆的空间也能是一个动态的,多层次的,可以随时间变化的香的容器。香水在容器里的状态便成为内部空间的设计来源。SODA将“媒体空间“的设计理念和在此领域的研究成果应用在这个项目中,来实践对“气味”的表达,创造将虚拟内容与实体环境融合的多维体验环境。
Perfume is liquid, intangible, and gaseous. It is always in changing along the atmosphere though the time. The space as imagined container for perfume came into being. The dynamic and multi-level feature of fragrance was interpreted and became tangible in the interior design. SODA applied the “media space” research and practical experience in the tangible design of smell, and integrated the virtual content with the physical space.
▼平面生成,plan generation ©SODA建筑师事务所
此次设计打破了传统的商业空间设计思路,通常空间设计要是以视觉呈现为主体,而香氛艺术馆要展现的主体是嗅觉,这让设计师在研究用户体验时更关注: 如何提供嗅觉体验? 如何结合嗅觉和视觉? 如何提供嗅觉和视觉之外的其他感官体验?
This project made a breakthrough in the design of tangible smell experience. Unlike the traditional commercial spaces, whose primacy were visual experience at scale, VIVINEVO fragrance art gallery focus on the customers’ smell experience, which brought up the following questions: How to provide an olfactory experience? How to combine smell and vision? How to provide sensory experiences other than smell and vision?
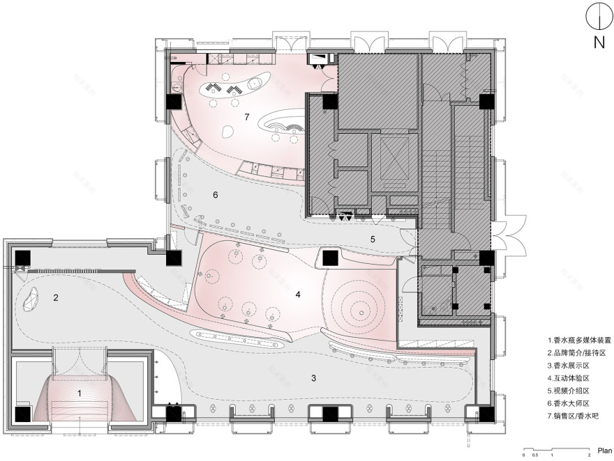
▼平面图,plan ©SODA建筑师事务所
为解决以上问题,设计师用大量的多媒体结合空间造型,设计了两个大型的动态展示区: 入口:是代表SODA设计语言的“实体像素”装置,设计师用将近5000个香水瓶组成了华丽的入口,不仅能更好的展示品牌,同时能有效的吸引过往的行人。
In order to answer the questions above, designer planed two dynamic digital combined exhibit modules. The entrance: SODA language—physical pixel installation. The designer collected. 5000 perfume bottles and made a media structure out of them. The entrance is turned out into a colors-changing media that keeps rendering the atmosphere day and night.
▼入口的像素装置,pixel installation at the entrance ©陈惜玉
▼组成装置的香水瓶细部,details of the perfume bottles making up the installation ©陈惜玉
▼入口接待台,reception at the entrance ©陈惜玉
主展厅:是一面20米长,水珠形态的“动态历史墙“。变幻的色彩在曲面墙上流动,营造出香水的主题氛围,同时展示香水的历史,材料等与展品相关的信息说明。
The main hall: a 20m length irregular curved surface with digital projection. The projected changing perfume texture renders the atmosphere of the space. The projected information adds another layer on the texture and the exhibition, delivering the related knowledge of perfume to the customers, such as history and raw materials.
▼主展厅,the main hall ©陈惜玉
另一方面,为增强体验的生动性,SODA将交互设计的理念贯穿到整个空间设计中。 通感交互体验区:是一个结合影像,气味,及声音的三感体验空间。参观者拿起听筒,听到音乐的同时触发感应,画面便会切换到相应的主题。挤压香氛瓶,闻到与主题对应的气味。通过这样的方式,将气味与听觉、视觉连通,留下更深入的印象。
SODA applied interactive space design method in this project to strengthen the participation in creating memorable experience. Synesthesia interaction: a moving image, odor, sound combined multi-sensory space. By picking up the receiver, the customers will trigger the change of background sound and the video, immerse themselves in the situation of a specific perfume while squeeze and release the odor. The synesthesia experience connects with memory and impressive the customers.
▼流动的参观路线,fluid circulation ©陈惜玉
▼通感交互体验区,Synesthesia interactive area ©陈惜玉
内容交互体验区:注重探索式的体验,由一个交互动画,让参观者通过触碰的交互方式了解香水的制作过程。
Content interaction: an interactive process that makes people have a strong desire to explore. Customers touch the digital content and get immediate response while being amused by the interaction.
▼内容交互体验区,Content interactive area ©陈惜玉
空间的流线也带有趣味性,顾客可选择不同的参观方式,获得不一样的记忆和交互体验,最后的收获也有所不同。
The circulation route is flexible and free to explore. Customers will be entertained while they visit the gallery following their own paths.
▼不一样的空间体验,different spatial experiences ©陈惜玉
▼空间细部,space details
在经历了“路过-吸引进入-视觉嗅觉体验-交互式体验”之后,最终到达参与式调香体验及消费区。调香区提供了丰富的香气原料,参观者可以根据个人的喜好,调制出属于自己的独特的香水,完成一次寻香的旅程。
After Passing by, being attracted, experiencing a visual and olfactory feast, and playing with enjoyable interactions, customers finally arrive at the participatory perfume modulation and consumption area, where they are provided with rich fragrances to make their own unique perfumes according to personal preferences. An end to journey toward, but it is the journey that matter.
▼夜晚的橱窗,show window at night ©陈惜玉
▼室外立面图,external elevation ©SODA建筑师事务所
▼剖面图,section ©SODA建筑师事务所
客服
消息
收藏
下载
最近























