查看完整案例


收藏

下载
西澳大利亚新博物馆位于珀斯的文化中心,为原本的博物馆提供了新的展览、活动、商业以及餐饮空间,展示西澳大利亚的自然文化藏品。西澳大利亚是地球上最古老的连续文化的家园,拥有不同寻常的人与环境,其人口越来越多元,已经成为了全球生物多样性的热点区域。新馆由改造后的历史保护建筑和新建筑组成,向人们分享西澳大利亚的丰富故事。
▼建筑外观,external view of the building ©Peter Bennetts, courtesy of Hassell + OMA
Located in Perth’s Cultural Centre, the New Museum for Western Australia provides spaces for exhibitions and events, and new retail and dining opportunities for the Western Australian Museum, showcasing the State’s natural and cultural collections. Formed with renovated heritage-listed buildings and new volumes, the New Museum has been conceived as a framework to share the diverse stories of Western Australia—a State characterized by its extraordinary people and places and home to the oldest continuous culture on earth, an increasingly diverse, multicultural population, and a world biodiversity hotspot.
▼新博物馆鸟瞰,项目位于珀斯文化中心,aerial view of the project located in the Perth’s cultural center ©Peter Bennetts, courtesy of Hassell + OMA
▼从街道看向项目,建筑掩映在茂密的植物中,view to the project from the street, hidden behind the lush plants ©Peter Bennetts, courtesy of Hassell + OMA
▼项目立面由穿孔金属板组成,the facade is covered by perforated metal panels ©Peter Bennetts, courtesy of Hassell + OMA
▼立面细部,closer view to the facade ©Peter Bennetts, courtesy of Hassell + OMA
在新博物馆中,历史和当代的结构相互依托。项目中保留并改造的建筑包括建于19世纪中期的Old Gaol;1899年建成的Jubilee大楼;1908年建成的原艺术画廊;以及建于1913年的Hackett大厅,曾是国家图书馆的阅览室。新建建筑围绕老建筑设置,形成两个博物馆的核心元素。其中之一是两条充满趣味性的流线,提供丰富的参观体验;另外是一个位于博物馆中部的公共空间,作为城市会客厅,供人们举办各种文化项目及日常活动。
In the New Museum, heritage and contemporary structures complement each other. Preserved and revitalized buildings on site include the Old Gaol dating from the mid-19th Century, the Jubilee Building built in 1899, the original Art Gallery, built in 1908 and Hackett Hall—the State Library’s reading room built in 1913. New volumes wrap around these heritage buildings to create two core elements of the Museum: two intersecting circulation loops that offer a variety of curatorial possibilities, and a ‘City Room’—a public space at the Museum’s center for cultural programs and daily activities.
▼建筑外观,新建筑将老建筑包裹在中间,external view of the building, the new construction wraps around the preserved buildings ©Peter Bennetts, courtesy of Hassell + OMA
▼建筑外的公共广场,public plaza outside the building ©Peter Bennetts, courtesy of Hassell + OMA
新建筑的一部分悬挑于Hackett大厅上方,形成一片有遮挡的室外空间,为城市提供了一个举办公共活动的场所,所有人都可以参与其中。城市会客厅是博物馆内两条流线的焦点,馆内游客可以看到公共空间中的活动。参观者不仅可以在展厅内探索,还可以聚集在一起,相互交流。
The addition of the new structures—including a large volume cantilevered over the Hackett Hall—has created a sheltered outdoor space, or the City Room. It is designed for public events, and accessible to everyone for daily gatherings. Visually connected to the two circulation loops inside the Museum, the City Room is the project’s focal point—at once inviting the public to explore the exhibitions, and encouraging Museum visitors to gather and exchange dialogues.
▼新建筑部分悬挑于Hackett大厅上方,part of the new structures cantilevered over the Hackett Hall ©Peter Bennetts, courtesy of Hassell + OMA
▼新老建筑的夹缝中可以眺望城市风景,view to the city from the crack between the new and preserved structures ©Peter Bennetts, courtesy of Hassell + OMA
两条流线环将老建筑和新体量连在一起,形成多条参观路线,连接展廊、活动空间和商店。游客可以从不同角度探索馆藏,创造属于他们自己的观展经历。
The two loops link the existing buildings and new volumes to create multiple visitor routes that connect exhibition galleries, event and program spaces, and commercial leases. Visitors are encouraged to explore the Museum’s collection with different perspectives and create their own experience.
▼博物馆内的两条流线提供不同的观展体验,two circulation loops in the museum provide different visiting experience ©Peter Bennetts, courtesy of Hassell + OMA
▼从博物馆内看向城市会客厅,view to the City Room from inside the museum ©Peter Bennetts, courtesy of Hassell + OMA
▼穿孔金属板立面在室内留下丰富的光影,light shadow effects of the perforated panel ©Peter Bennetts, courtesy of Hassell + OMA
保留的历史建筑昭示着基地的社会和文化历史。新建筑体量为长方形,立面由穿孔金属板组成,白天时在阳光下闪耀,夜晚则可以照亮黑暗。无论是对于珀斯文化中心、还是城市,乃至整个国家,新博物馆都是一座独特的新地标。
The preserved historical buildings evoke the site’s social and cultural history. Clad with perforated metal facades, the new rectangular volumes shine under sunlight and glow in the dark. The New Museum is a landmark building in Perth’s Cultural Centre—for the city and the State.
▼夜景,灯光透过穿孔金属板照亮黑暗,night view, the volume covered by perforated panels glow in the dark ©Peter Bennetts, courtesy of Hassell + OMA
▼总平面图,master plan
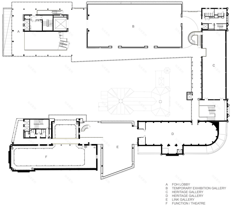
▼一层平面图,first floor plan
▼二层平面图,second floor plan
▼三层平面图,third floor plan
▼立面图,elevations
▼剖面图,sections
Status: Construction complete Client: State Government of Western Australia, Multiplex Location: Perth, Western Australia Program: Museum 19,000m2 Partner-in-Charge: David Gianotten Project Director: Paul Jones Project Leaders: Fred Awty (Competition Phase), Mirai Morita (Schematic Design), Christopher Hing Fay (Design Development to Construction) Project Team: Thorben Bazlen, Marina Cogliani, Jack Davies, Haram Hong, Eunjin Kang, Alan Lau, Fedor Medek, Marcus Parviainen, Paola Provinciali, Yash Ravi, Takehiko Suzuki, Shinji Takagi, John Thurtle, Elizabeth White, Polina Zhalniarovich. JV Partner: Hassell Managing Contractor: Multiplex Structural Engineer: BG&E Services Engineer: Wood & Grieve Façade Engineer: Hera Heritage Architect: Element ESD Engineers: Atelier 10 Building Surveyor: JMG Signage & Wayfinding: FOD
客服
消息
收藏
下载
最近

























