查看完整案例


收藏

下载
由建筑事务所 C.F. Møller Architects 设计的 Haraldplass 医院扩建项目于 10 月 13 日在卑尔根正式对外营业。该项目设有两个采光中庭,消除了过多的传统长廊带给人的枯燥感。
A new extension to Haraldplass Hospital is being opened in Bergen on 23rd October. The project has been designed by C.F. Møller Architects and is characterised by two atria that deliver plenty of daylight and eliminate traditional long corridors.
▼项目鸟瞰图,bird-eye’s view©Joergen True
Haraldsplass 医院的开发商、基金会和旧建筑都是独一无二的,我们对于能够参与进这个扩建项目深感荣幸,希望能够通过自己的方式延续 Haraldsplass 美丽的、引以为傲的建筑特色。研究和经验表明,人们的行为活动是受周边环境影响的,因此作为建筑师,我们专注于项目基地的周围环境。Haraldsplass 的建筑有着不同历史时期的独特性和品质,因此,我们与 Haraldsplass 的合作尤为鼓舞人心。同时,建筑师 Per Grieg 设计的于 1940 年建造的大楼也为 Haraldsplass 提供了强有力的发展框架,C.F. Møller Architects 的合伙人兼建筑师 Christian Dahle 这样说道。
“The developer, the foundation and the old building at Haraldsplass are completely unique, and it has been an honour to continue the proud and beautiful built heritage at Haraldsplass. As architects we are absorbed in our surroundings, and research and experience show that we are affected by our surroundings. It was thus especially inspiring to work with Haraldsplass, which features distinctiveness and qualities from different periods. It is, however, the architect Per Grieg’s building structure from 1940 that is the very backbone of the place,” says Christian Dahle, partner and architect at C.F. Møller Architects.
▼从远处看医院,exterior view from distance©Joergen True
扩建项目顺着 Møllendal 河的走势延伸,创造出一个曲线立面,故而保证了每一间病房里的病人都能够享有山谷和城市的景色。
Every patient will have access to a view of the valley and the city, as the new building will follow the course of the Møllendal River, creating a curve in the façade.
医院外观,exterior view©Joergen True
扩建项目为急诊室增加了 170 个床位。
The new building adds 170 additional beds to A&E.
▼医院的曲线立面,a curved façade©Joergen True
立面细节,facade details©Joergen True
与传统医院建筑不同,扩建项目里没有过多的长走廊,而是设置了两个大型的有顶中庭。这两个中庭分别容纳了两种截然不同的公共空间:一个是设有接待处、咖啡厅、小商店和座椅休息区的公共入口空间,另一个则更具私密性,专门服务于医院的病人和探病者。中庭能够确保建筑的室内采光,同时创造出一个良好的室内景观朝向。病房则围绕着中庭布置。
Unlike the situation in traditional hospital buildings, there are no long corridors. The wards units are situated around and along two large covered atria, which create the framework for two different communal areas: A public arrival area with a reception, café, shop and seating area, and a more private room solely for patients and their guests. The atria will ensure that daylight is drawn into the building, creating easy orientation and a good overview.
▼从南侧看,扩建项目与原医院统一,the extension integrates with the original one from the south view©Joergen True
Christian Dahle 说道:“本项目之前,我们有幸参与了位于挪威奥斯陆的 Akershus 大学校医院项目和位于卑尔根的 Haukeland 大学的两个小项目——一间刚刚完成的急诊室设计和一座实验大楼,总结出了很多经验,因此在 Haraldsplass 医院扩建项目中,我们将之前的经验付诸于实践,将研究科研室和实验室结合起来,为患者提供更好的诊断服务。”
中庭,courtyard©Joergen True
原来的医院于 1940 年对外开放,原房间数可为 100 名患者、Deaconess 基金会的成员和护理学院的学生们提供住处。从那时起,医院的特色便是每一名患者都可以欣赏到城市和海湾的美景。
The original hospital was opened in 1940. There was room for 100 patients, sisters from the Deaconess Foundation and students at the college of nursing. A hallmark was the fact that patients had a view of the city and the fjord.
中庭仰视视角,view of courtyard looking up from the bottom © Joergen True
我们把 Haraldsplass 称为 Ulriken 山脚下的一只美丽的天鹅。许多医院的建筑和环境都给人一种冷漠的疏远感。但 Per Grieg 设计的医院建筑结构精细而紧凑,同时造型优美,给人一种亲切感。Per Grieg 也是卑尔根最伟大的建筑师之一,他所设计的建筑对整个建筑行业都有深远的影响。他在国外历练,获得建筑灵感,设计出伟大的建筑,但他并没有忘记自己的家乡和过去。就像 Deaconess 基金会来自于国外,现在扎根于卑尔根一样,”Christian Dahl 说道。同时,她还详细阐述了这种思想精神对 Haraldsplass 扩建项目的意义。
“Per Grieg 设计的 Haraldsplass 医院项目是他漫长的职业生涯中最重要的作品之一。我们认为,尊重和理解场地的特性十分重要,也希望能够通过新的住院楼进一步提升场地特性。Haraldsplass 医院是一家历史悠久的医疗机构,其对他人的关怀体现在方方面面:医疗工作者、住院的病患、学生和职工都能够体谅并关爱他人。”
“We usually call Haraldsplass the beautiful swan at the foot of the mountain Ulriken. Many hospitals have buildings and surroundings that people find alienating. Per Grieg’s architecture is precise and tight in its structure, and at the same time beautiful and friendly. Per Grieg was also one of the big, important Bergen architects who made an impression on and inspired the entire architectural environment. He got his inspiration from abroad, but was aware of his roots and his history. Just as the Deaconess Foundation came from abroad and is now rooted in Bergen,” says Christian Dahl, and elaborates on the importance this has had on the approach to the work on Haraldsplass.“Per Grieg’s Haraldsplass is one of the most important works in his long career. We believe it is important to have respect for and understanding of the qualities of the place, and wanted to further these qualities with the new beds building. Haraldsplass is an institution that has a long history of care, and this care radiates from the place, the people working there and the buildings accommodating Haraldsplass’s patients, students and staff.
▼从病房看中庭,courtyard view from the ward©Joergen True
C.F. Møller Architects 因其在医疗建筑方面的专业性而享誉全球。C.F. Møller Architects 于近期完成了多个医疗建筑项目,如位于奥斯陆的 Akershus 大学校医院、位于马尔默的 Skåne 大学校医院急诊和传染病科室设计,以及 Aarhus 大学校医院设计等。目前,C.F. Møller Architects 的工作重点在德国、英国和丹麦的医疗建筑设计上。他们所有的项目都基于现实,通过这种设计手法设计出的建筑也被誉为治愈系建筑。
C.F. Møller Architects is recognised worldwide for its expertise in healthcare. C.F. Møller is behind Akershus University Hospital in Oslo, the Emergency and Infectious Diseases Unit at Skåne University Hospital in Malmö and Aarhus University Hospital, which are among the most recently completed projects. C.F. Møller Architects is currently working on health buildings in Germany, England and Denmark. The hallmark of all its projects is an evidence-based approach that is also known as Healing Architecture.
中庭细节,courtyard details©Joergen True
在挪威,C.F. Møller Architects 目前参与了两个重大项目,皆位于奥斯陆境内。其中一个项目是奥斯陆中央火车站的“透明水晶(“Fjordporten – Nordic Light”)”项目,旨在将交通、工作、休闲、文化和商业空间融为一体,通过传统与创新相结合的方式,打造一个具有前瞻性的交通中心。该项目由 C.F. Møller Architects 与 Reiulf Ramstad Arkitekter 合作完成。在这个项目基地的正对面,即 Biskop Gunnerus Gate 14 B 地段处,是 C.F. Møller Architects 与 Kristin Jarmund Arkitekter 和 Urban Planners Rodeo Arkitekter 合作的另一个高层建筑。该项目包括了一个广场、一座酒店和数座高层建筑,不仅创造了一个全新的城市空间,还为市民建立了一个迷人的生活空间和高效的城市连接空间。
In Norway C.F. Møller Architects is currently involved in two major projects, both of them in Oslo.
One of the projects is Fjordporten – Nordic Light at Oslo Central station, which merges transport, work, leisure, culture and business to form a forward-looking and robust hub by combining tradition and innovation.
The project has been created in collaboration with Reiulf Ramstad Arkitekter.
Right opposite this project, at Biskop Gunnerus Gate 14 B, C.F. Møller Architects is involved in another project, which is also a high-rise building and has been developed in collaboration with Kristin Jarmund Arkitekter and Urban Planners Rodeo Arkitekter.
A new urban space is being established here, with a square, a hotels and high-rise buildings, creating attractive living spaces and efficient urban connections.
▼从病房看城市,a view of city from the ward © Joergen True
Biskop Gunnerus Gate 14B 地段设计将成为环境和可持续方面的开创性国际项目。该项目将加强该地区的城市和经济发展,同时展现奥斯陆的雄心壮志,使该地段能够更好地组织大量城市人流,同时成为一个具有吸引力的居住场所。
Biskop Gunnerus Gate 14B will be a pioneering international project as regards the environment and sustainability. The project will strengthen the area’s development and clarify Oslo’s ambition to make this particular part of the city better at handling a large volume of road users, at the same time as being an attractive place to live in.
▼医院室内,interior view©Joergen True
▼总平面图,site plan
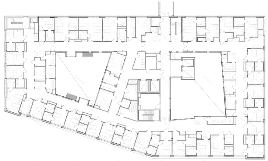
一层平面图,1F plan
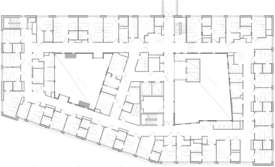
▼二层平面图,2F plan
▼三层平面图,3F plan
四层平面图,4F plan
▼五层平面图,5F plan
▼地下一层平面图,-1F plan
▼地下二层平面图,-2F plan
▼南立面图,south elevation
▼北立面图,northelevation
▼东立面图,east elevation
▼西立面图,west elevation
▼纵剖面图,long section
▼横剖面图(从中庭向南看),cross section_atrium south
▼横剖面图(从中庭向北看),crosssection_atriumnorth
▼可持续设计剖面分析图,section of sustainability principles
Client: Haraldsplass Diakonale Stiftelse
Size: 14200 m²/187 beds
Address: Bergen, Norway
Year: 2011-2018
Architect: C.F. Møller Architects
Landscape: Asplan Viak
Collaborators: LAB Entreprenør AS, Rambøll Norge, Sweco Norge, Asplan VIAK
Prizes: 1st prize in architectural competition, 2012
客服
消息
收藏
下载
最近































