查看完整案例


收藏

下载
如今的商业随着网络信息的高速高效,竞争日趋激烈,特别是餐饮业,早已不再是酒香不怕巷子深的时代。设计方在为门店的风格定位前,先研究了业主的产品、受众顾客以及门店所在的商圈,在与业主的反复讨论后得出做一家符合年轻女生对时下流行元素审美需求的空间,是在这个商圈以及与业主的产品最合适的方案。
Nowadays, with the high-speed and high-efficiency of network information, the competition is becoming increasingly fierce, especially in the catering industry, it is no longer the time when the fragrance of wine is not afraid of the deep alley.Before positioning the style of the store, the designer first studies the product of the owner, the customers of the audience and the business circle where the store is located. After repeated discussions with the owner, it is concluded that the most suitable solution is to be a space that meets the aesthetic needs of young girls for the popular elements of the present.
▼符合年轻女生审美的欧式门廊,european-style porch that fits the aesthetics of young girls
在空间风格达成共识后,设计方开始对空间布局进行规划。原始建筑空间在不大的实用面积内有4个出入口,对于客座的安排以及顾客的用餐氛围都有较大的影响。设计方将其中部分的门扇变成了展示客区氛围的橱窗,巧妙的使缺点变成了优点。同时设计方考虑到两侧入口都是顾客的主入口,将吧台与蛋糕柜做成了异形,使两侧的入口都是迎接顾客的景。
▼手绘设计图,sketches
After reaching a consensus on space style, the design side began to plan the spatial layout. The original building space has four entrances and exits in a small practical area, which has a great influence on the arrangement of the seats and the dining atmosphere of the customers. The designer turned some of the door fans into window displays showing the atmosphere of the guest area, ingeniously turning the disadvantages into advantages. At the same time, the designer considers that both sides of the entrance are the main entrance of customers, the bar and cake cabinet made into a special shape, so that the entrance on both sides are to greet customers.
▼部分的门扇变成了展示客区氛围的橱窗,the door fans into window displays showing the atmosphere of the guest area
▼吧台与蛋糕柜被设计成为异形,使两侧的入口都是迎接顾客的景,the bar and cake cabinet made into a special shape, so that the entrance on both sides are to greet customers
▼室内外就餐空间,indoor and outdoor dining space
设计方在考虑具体的空间造型、材质、灯光形式时。了解到这个建筑的前身是美国海军游泳俱乐部,经过重新修缮与改造,作为商业体再次启用。设计方考虑到门店的面积并不大,但希望有足够的视觉吸引力,便决定大面积使用拉丝不锈钢冲孔板,配以多彩的霓虹灯,使不锈钢感染霓虹灯的色彩,无论是从室外或是室内都营造出多彩的美式风格,设计方的概念中心即邀请客人们来一场美式的泳池派对。
The designer is considering the specific space form, material and lighting form. Knowing that the predecessor of the building was the Naval Swimming Club of the United States, it was rehabilitated and renovated and reopened as a commercial entity. Designers consider that the area of the store is not large, but want to have enough visual appeal, they decided to use large-scale wire-drawing stainless steel punching plate, with colorful neon lights, stainless steel infection neon colors, whether from the outdoor or indoor to create a colorful American style, the design of the concept center is invited Let’s have an American swimming pool party.
▼拉丝不锈钢冲孔板配以多彩的霓虹灯的异形门框,brushed stainless steel perforated plate with colorful neon shaped frame
▼多彩的霓虹灯搭配, colorful neon mix
▼拉丝不锈钢冲孔板细节,the detail of brushed stainless steel perforated plate
当今的商业项目,很多业主希望自己的门店能成为网红,即追求更多的关注度带来更多的客流量提升更多的销量,福木设计的负责人希望提醒各位设计师与业主需要先了解产品客群地点的属性,才能综合呈现出一个另人瞩目的项目,从来只有最适合的设计,没有最好的设计。
In today’s commercial projects, many owners want their stores to become instant online shop,to pursue more attention to bring more passenger traffic to increase sales. FMD Design Officers want to remind designers and owners that they need to understand the attributes of the location of the product crowds in order to present a comprehensive impressive picture. The project has never been the most suitable design without the best design.
▼吧台摆设细节,the detail of the bar
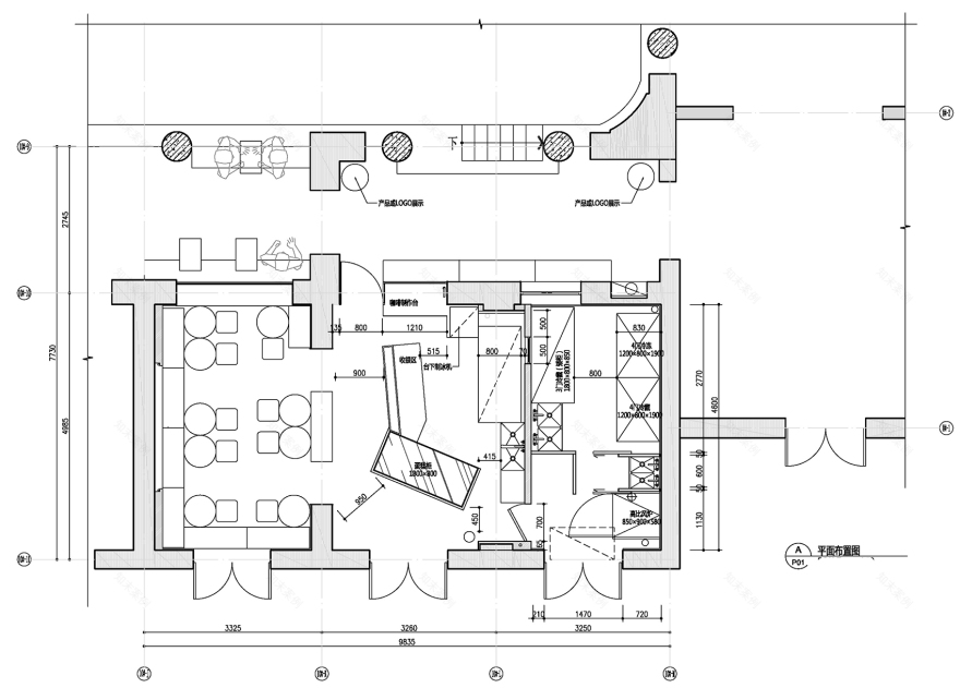
▼平面图,the plan
客服
消息
收藏
下载
最近













