查看完整案例


收藏

下载
在设计方与业主对本餐厅的商业模式的探讨中,希望针对餐厅周围的家庭客与情侣们提供一个更为私密且互不干扰的用餐环境,同时希望呈现日式的美感。
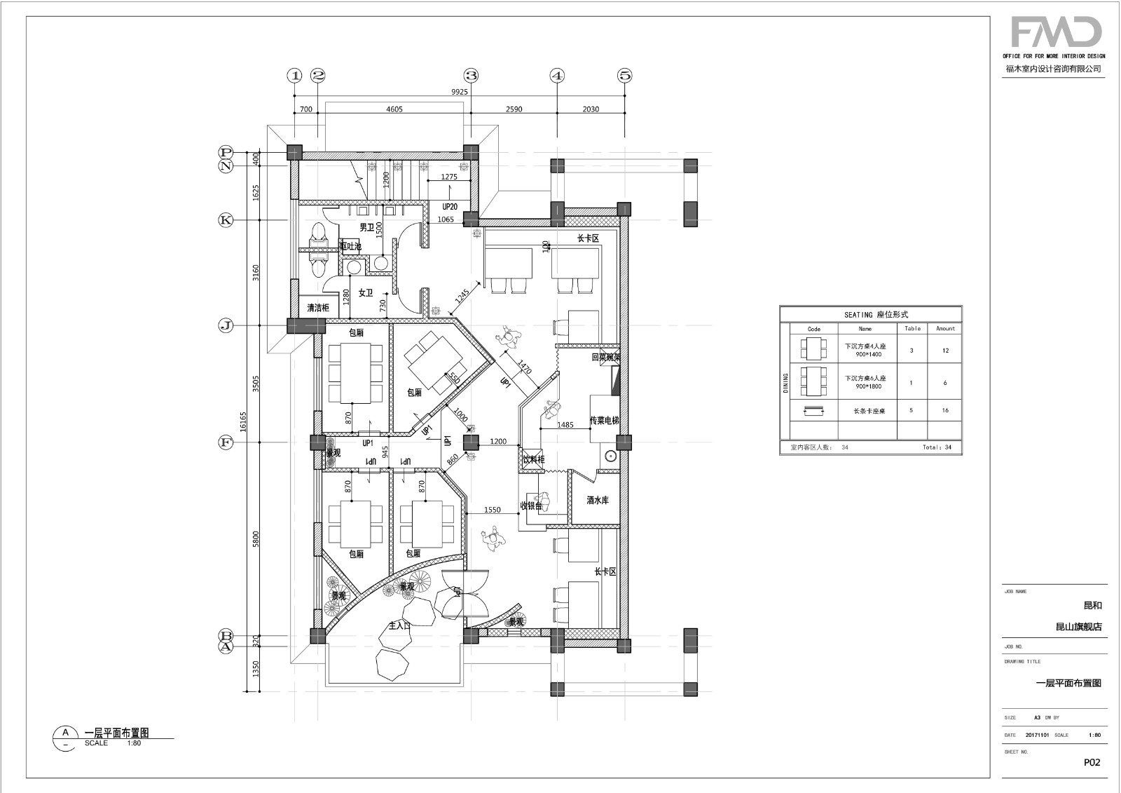
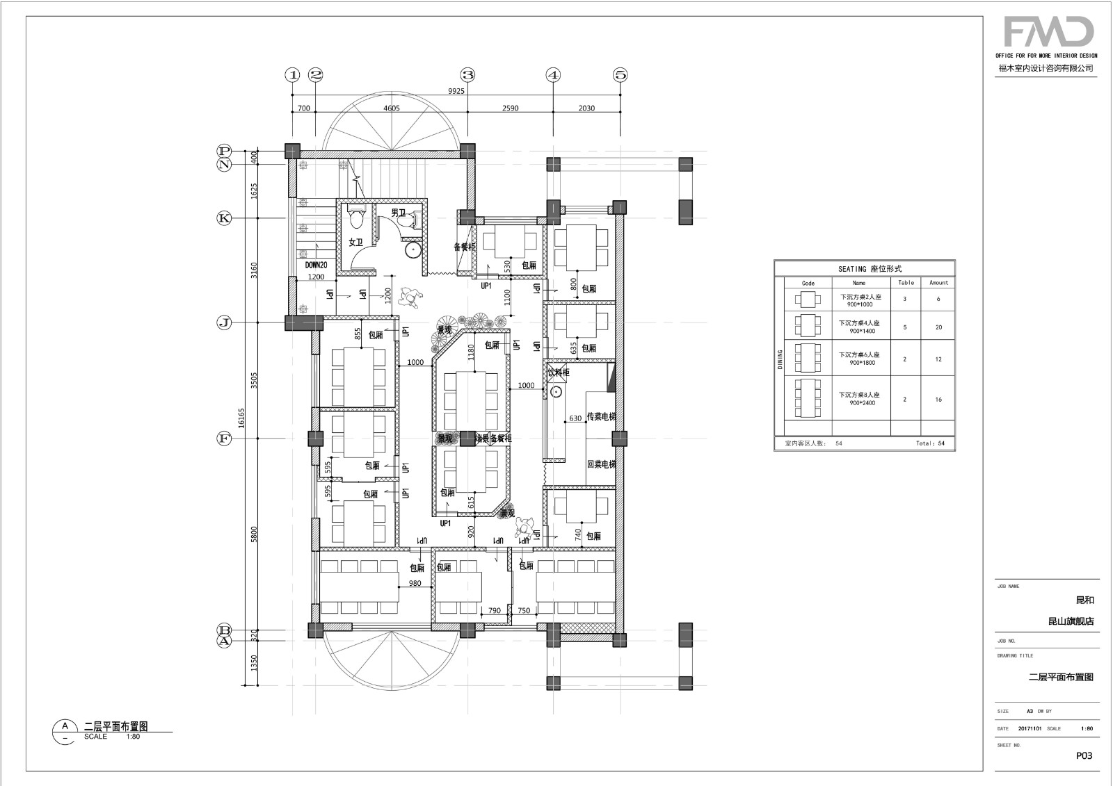
在商业模式达成共识后,设计方对空间布局进行了规划。这是一个客区总共245平方米的两层空间,在这个并不大的空间里,我们总共规划了十六间包间,同时每层都具备备餐服务区以及盥洗室。在公共区域的规划上,设计方运用东方园林的手法,从入口便开始引导顾客从侧面进入餐厅,并在过道上故意造出端景,避免了过多的独立房间造成公共过道在视觉上的呆板与狭窄。
在思索立面材质运用时,设计方运用了镜面反射以及雾面玻璃,使餐厅中无论是包间内还是过道上的客人都能在视觉上得到呼吸感。同时又在这些材质上附上了木质格栅与竹编,用于表达日式美学质感。
设计方在顾客过道的尽头或间隙处,均精心布置了日式美感的造景,表达了空间对来客的恭迎。
在包厢的内部,设计方希望为食客们营造更舒适的氛围,故以灰色系与木质为主,且通过不同的材质来演绎,为空间增添了日式美的质感。
在材质的细节上,设计方更最求材料本身的美感以及为原本平淡的水泥材质通过手工锻造呈现出新的纹理美感。
当一个商业项目与一个空间结合在一起时,一定会有一种最合适的融合形式,而室内设计正是将其呈现的必要工作。此项目的初衷——为业主餐厅的主体客群从功能布局以及视觉体验上设计一家顾客们心目中的日料餐厅。
关于F.M.D福木设计
福木设计公司(FMD)是由章静女士与强艺耀先生共同在上海创立,历经十五年的磨砺与沉淀,专为商业空间进行定制化室内设计,秉持只有最适合的设计理念,从顾客的角度出发,为广大的商业客户研发适合其特性的室内空间。使室内设计不仅满足美学需求,更使其商业的价值最大化。
设计主案:强艺耀 顾盼风 郑鹏
摄影:Sunny Tu
客服
消息
收藏
下载
最近























