查看完整案例


收藏

下载
故园寻梦
在全现代的商场里,不缺时尚,不缺花样的造型,但一定缺少“自然”,用天然造景打造高品质的就餐体验,也是这个场所独有的可存在的条件。 —— 设计师 朱寿耀
01 绿竹幽径
淮左·竹西引自《扬州幔》:“淮左名都,竹西佳处,解鞍少驻初程。” 淮左·竹西是福州首家淮扬菜系餐厅,位于刚落成的综合性高端商业体——融侨外滩壹号。在本项目中,设计师将“自然”这一截然相反的插件置入商场环境,从品牌到空间,设计师试图挖掘更深层的淮扬文化,而非对自然的直接摹写。 入口处,映入眼帘的是象征祥瑞的石狮,一块方正的墨色岩石映衬着娟丽的字样,清秀雅致,水面映照宁静的心境,盈盈动人,笔直矗立的石柱与竹影相得映彰,铺垫着幽深的自然印象——一个藏于现代商场中的桃源之地。
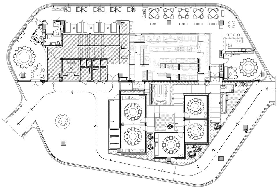
由于原始建筑的局限,室内可利用区域只有临江面的一个通道及小厅。经过精巧的构思,一处融合着淮扬氛围的户外区域成为点睛之笔,原本受限的空间条件转化为独有的优势。 设计师在户外区域打造了六个包厢,将包厢的地面抬高,同时通过木屏风与商场行人的视线之间产生的高度差,确保包厢私密性的同时,也使空间保持通透。
橙红的木色搭配雅致的灯光,光影与明暗塑造着丰富的色彩层次,呈现细腻的光韵与质感。 红之典雅、黄之暖意,既有沉稳之质,又有流转的温度,一种于平静中暗自涌动的美在空间中流转,引我们重温一场旧梦。 02 故园寻梦
空间与景观的层次分明,木、玻璃、镂空隔断——非透明、透明、半透明的分隔,不同的材质与形态相互参差、重叠,交织形成一个层叠的自然景观,在远近、高低以及角度的变化中,不同的景致向我们打开、切换,增加了空间的叙事,迷离而梦幻。 通过地台的抬高,高低错落,引申出古典园林的空间秩序。在有限的空间内,原本单一的空间被解构为丰富、变化的体验,区分于商场的动线。在文化的沉淀之下,空间成为了故事的剧场。拾级而上、步过庭园、进入厢间,古典的游园定义了空间的格局,空间的过渡便是故事的发生。
在福州当地,喝茶是生活的日常、习惯。因此,在户外景观区的六个包厢中,设计师将其中一个包厢设计为茶室。茶室拥有最佳的观赏景观,坐在茶室内,可以享受到中庭的景观。对着庭中的松枝,煮茶听曲,感受静寂之美。 “竹坞寻幽,醉心既是。”茶室的厢名为竹坞,意为竹林深处、幽静之地。如置身于竹林之中,一壶热茶、一份逸致与闲情,身心俱静,怡然自得。
园林的精神意象为室内打造了一处自然的场景。这种自然不是成立于景观,而是产生于行径之下的尺度,它关乎身体与空间,无形的意境牵引着我们的思绪与记忆。它制造了一种错觉,试图将我们从商场的环境抽离,而进入一个幽深的自然情境,一个梦境。 03 淮扬印象
关于淮扬的古城印象,既有琼花内敛与温婉的意韵,又有雕梁画栋的繁华旧景。 琼花是扬州的符号。隔断、吊灯镂空的纹样为琼花元素,与朦胧柔和的灯光相衬,勾勒着简洁而雅致的线条。门把手与屏风同样应用了琼花作为文化元素,刚柔并济,处处是温雅,又尽显克制。
彤楼漆柱,是苏式古典建築的一個特色,在木的表面涂上大漆以装饰建筑。设计师采用这一传统的装饰,在木柱以及墙以黑漆饰面,以显高贵典雅气质,同时偏红的木色铝材又使空间保持一种亲和、温馨的质地。
淮扬菜的精神在于强调美食的精细、雅致。文化如何沿袭、品牌如何塑造,基于它们之间的独特语言与联系的思考,设计师从空间本身去表达淮扬文化,塑造空间的品格。 设计师捕捉淮扬菜于精神层面的追求以及情绪的表达,它不仅呈现着耐人寻味的东方美学,同时也兼具简洁的现代性。
04 欢言得憩 结合空间的格局,用餐区域划分为室外的景观区域以及室内的散座区和包厢,两个不同的区域增加了内部空间的丰富性。在景致上,户外是庭院幽深的自然景观,室内则是临江的宽阔视野,相互呼应。
从细微处表达淮扬的温婉,朦胧的幔帘、器物之美、一支安静幽玄的扬州昆曲,一曲江南幽婉回转,走进几百年前的江南梦,往昔流连,再回首、且珍重。 淮扬之美,在于山林之清秀,在于烟花之温婉,也在于时间所沉淀的历史文化。
软木雕画是福州的传统手工艺,被列为国家非物质文化遗产。一幅长卷既展现了古代扬州的繁荣景象,又展示了福州这一传统文化。 设计师没有从过多的形式上去表达江南,而是依据对其文脉的理解去塑造空间真正的品格,将独特、细致的文化符号融合现代,使其成为一种延续。由此提供一种暗示,这个雅致、安静的空间本身便是一种阐述,并且是具有包容性的。
淮左·竹西整体设计浸透着东方的品格,揉进现代美学,一境一景、一器一物优雅呈现。 重新思考淮扬文化的价值,重构淮扬传统符号的演绎之余,设计师从精神的层面留出一个空间,我们既从身体去体验一个空间,又在想象里去体验一个空间。
项目名称:淮左 · 竹西
项目地点:中国 · 福州
项目面积:580m2
完成时间:2020.12
空间设计:YaoDesign 耀设计
主案设计:朱寿耀
协作设计:陈丽媛 & 路威
项目公司:汐越餐饮
施工单位:城宇装饰
品牌设计:杜微白
软装设计:居合陈设
照明设计:克瑞思曼
景观设计:柳栐
艺术装置:青骑士艺术社
导视落地:中策标识
项目摄影:李迪
客服
消息
收藏
下载
最近























































