查看完整案例


收藏

下载
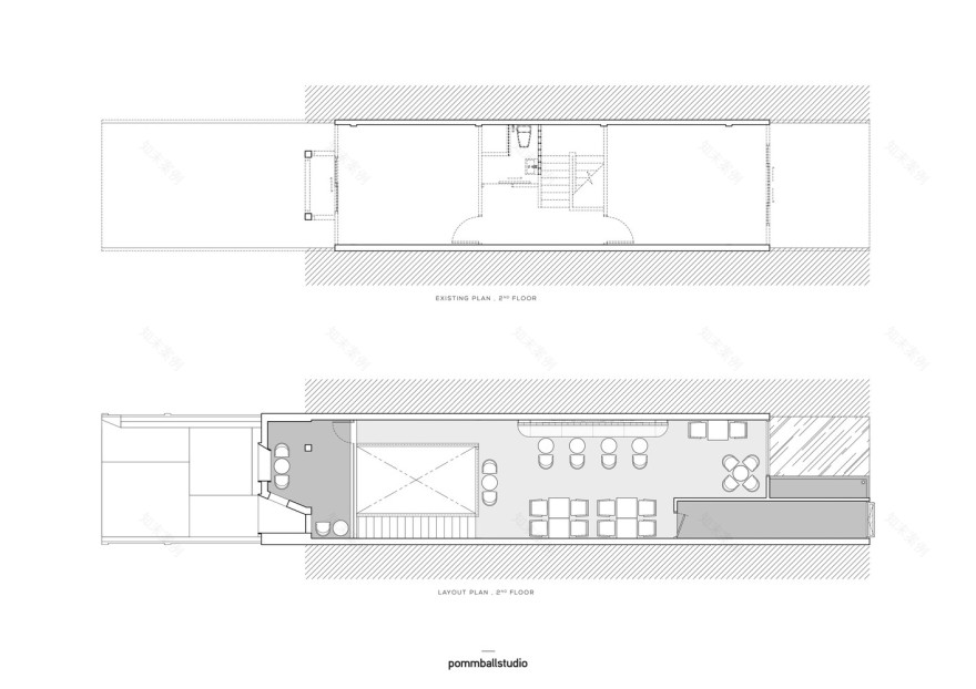
8号中转站是一个在泰国清迈的咖啡店。这个项目的出发点是屋主想要将它们的房子变成一件咖啡店。房屋独特的地理位置是在清迈国际机场附近的一条死路上。
通过捕捉第一印象来设计,设计师创造了一个有趣的建筑立面连接到室内空间,并把自然光线通过直接或间接的方式引入室内,创造了一个即兴创造空间。该基地给人一种从一个地方到另一个地方的想法,就像机场一样。它的设计主题是交通空间,后来也成为一个咖啡店的名字“8号中转站”。
在把客人带入高天花板咖啡吧之前,立面作为欢迎通道向客人打开。建筑师把最有标志性的物件加入功能性设计的一部分,比如说栏杆,把一个我们通常在机场或者客舱和登机区域的看到的巨大的电梯设计为座位区。甚至连行李收集袋都是室内设计的一部分。这些都是设计师的噱头,可以帮助你以最便捷的方式快速与这个地方建立联系。
另一个需要提到的重要的事情是帮助连接空间从门到楼梯到栏杆没然后柜台和墙壁以反映过渡概念的材料。
客服
消息
收藏
下载
最近
































