查看完整案例


收藏

下载
© Matthew Millman
(马修·米尔曼)
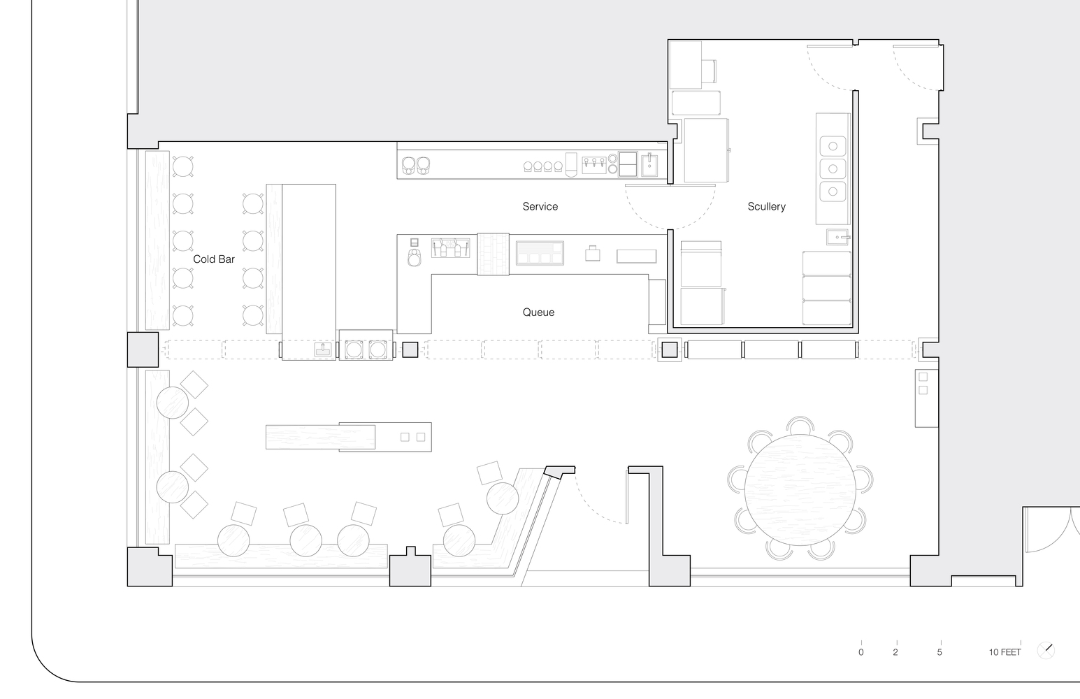
架构师提供的文本描述。第一个博林西温斯基杰克逊设计的咖啡厅将完成蓝瓶,这一新的1,200平方英尺的南公园的位置,把街道上的店面的前科勒仓库,成为一个轻填充,故意最小的内部空间。该设计揭示了网站的内在美,剥离轻浮和不必要,提升建筑最基本的属性,如原来的砖墙和厚重的木材支撑柱,并加强与繁华的索马街道的有形联系。
Text description provided by the architects. The first of several Bohlin Cywinski Jackson-designed cafés to be completed for Blue Bottle, this new 1,200-square-foot South Park location transforms the street-level storefront of a former Kohler warehouse into a light-filled, deliberately minimal interior space. The design reveals the site’s inherent beauty by stripping away the frivolous and unnecessary, elevating the most essential attributes of the architecture, such as original brick walls and heavy timber support columns, and enhancing the visible connection to the bustling SoMa streets.
© Matthew Millman
(马修·米尔曼)
进入咖啡厅后,一格漂浮的木箱迎接顾客,在整个空间形成一系列阴影和阳光;框架内摆放着一袋可供购买的咖啡和服务器具,创造出引人注目的商品展示。柔和的调色板温暖的木材,淡蓝色的墙壁和混凝土地板补充了公司的品牌和咖啡工艺,这是蓝瓶的标志。
Upon entering the café, a lattice of floating wooden boxes greets customers, creating a series of shadows and sunlight throughout the space; bags of coffee and serveware available for purchase are nestled within the framework, creating an eye-catching merchandise display. A subdued palette of warm wood, pale blue walls and concrete flooring complements the company’s branding and the craft of coffee making that is the hallmark of Blue Bottle.
新的功能包括冰咖啡吧和该公司有史以来第一台Mavam浓缩咖啡机,它只使客人能看到最必要和视觉上最吸引人的机器;公司咖啡制作中不可或缺的其他设备被整合到一个脆的不锈钢和桦木胶合板中。顾客可以在整个空间里坐在实心的灰烬长椅上喝咖啡,也可以坐在窗前的宴会席上喝咖啡。
New features include an iced coffee bar and the company’s first-ever Mavam espresso machine, which makes only the most necessary and visually appealing machinery visible to guests; other equipment integral to the company’s coffee making is incorporated into a crisp stainless steel and birch plywood bar. Patrons can sit and sip coffee on solid ash benches throughout the space, as well as banquette seating placed along the windows.
© Matthew Millman
(马修·米尔曼)
Architects Bohlin Cywinski Jackson
Location 2 S Park St, San Francisco, CA 94107, United States
Principal Greg Mottola, FAIA
Project Manager Christopher Orsega, AIA
Designer Alex Gregor
Area 1200.0 ft2
Photographs Matthew Millman
Category Coffee Shop
客服
消息
收藏
下载
最近














