查看完整案例


收藏

下载
以“庄园”形象作为设计的出发点,主要的结构要素成为工程的主要特征。这座建筑横跨一座翻修过的大楼和一个庭院。
这个设计是对著名的“阿卡普尔科椅子”的致敬,同时巧妙地提到了食物的供应。这种独特的椅子是20世纪50年代首次生产的,它通常由色彩鲜艳的乙烯基软木制成,在墨西哥作为户外休息室非常受欢迎。为了这个项目,亚历克西斯设计了一种自己的椅子和一张酒吧凳子。
法庭的后酒吧引用了南美建筑师埃拉迪奥·迪雅斯特的作品。
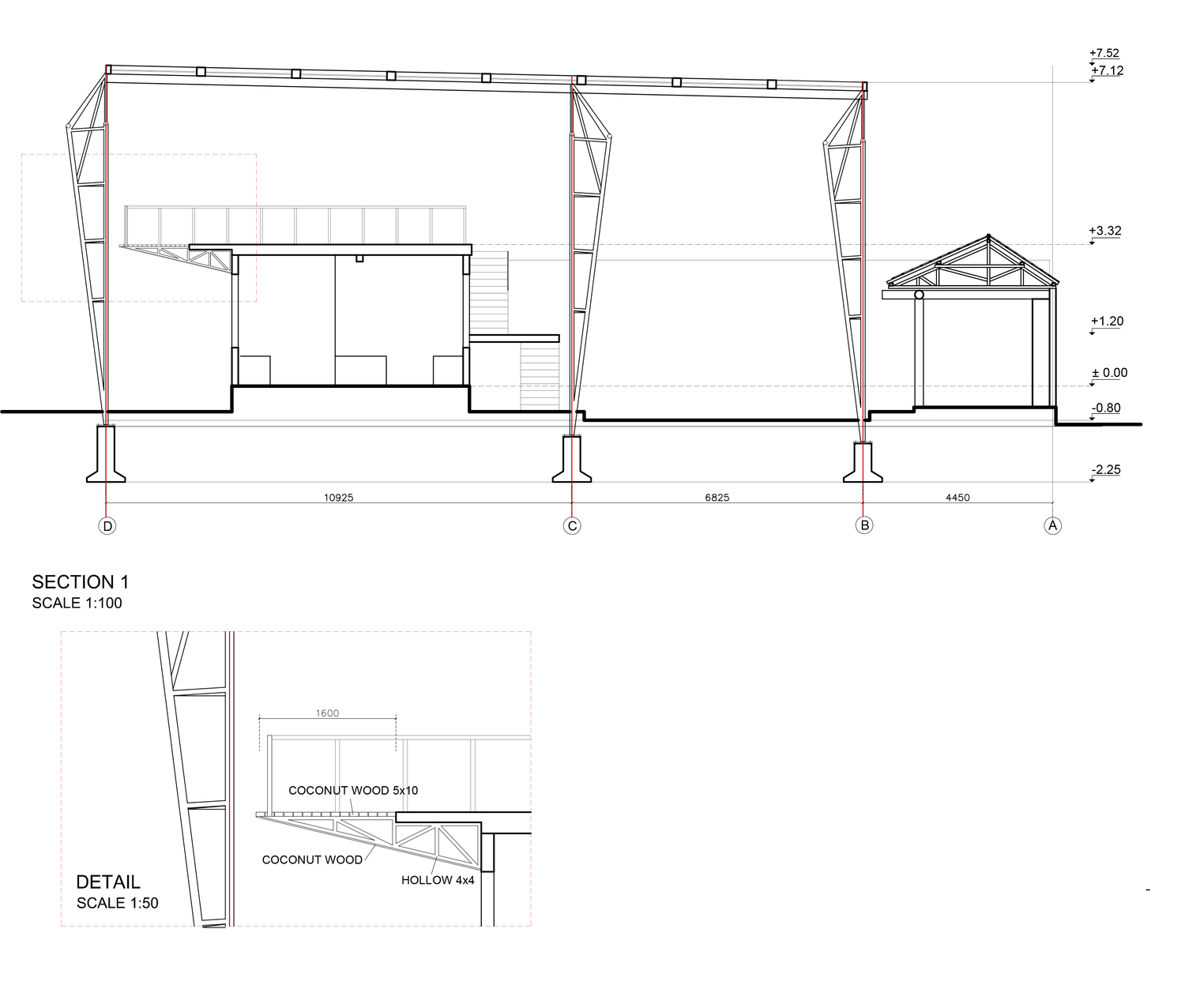
垂直结构元素是桁架、拱顶和拱门的混合体,与旧卡车轮胎中回收的橡胶交织在一起。这种结构框架为植物和鲜花提供了生长空间。餐厅的厨房从街道上通过两扇大窗户俯瞰,楼梯通向上方的遮蔽露台。
这家名叫Pacha Mamaí的餐厅,以素食为特色,提供墨西哥菜。
建筑:哈尔工作室,印度尼西亚
图片来源:Alexis Dornie
Firm Alexis Dornier
Type Hospitality + Sport › Restaurant
STATUS Built
YEAR 2016
SIZE 3000 sqft - 5000 sqft
BUDGET Undisclosed
keywords:architecture, architecture news, interiors, interior design, portfolio, spec, brands, marketplace, products La Pacha Mama
关键词:建筑,建筑新闻,室内设计,组合,规格,品牌,市场,产品拉帕查妈妈
客服
消息
收藏
下载
最近




















