查看完整案例


收藏

下载
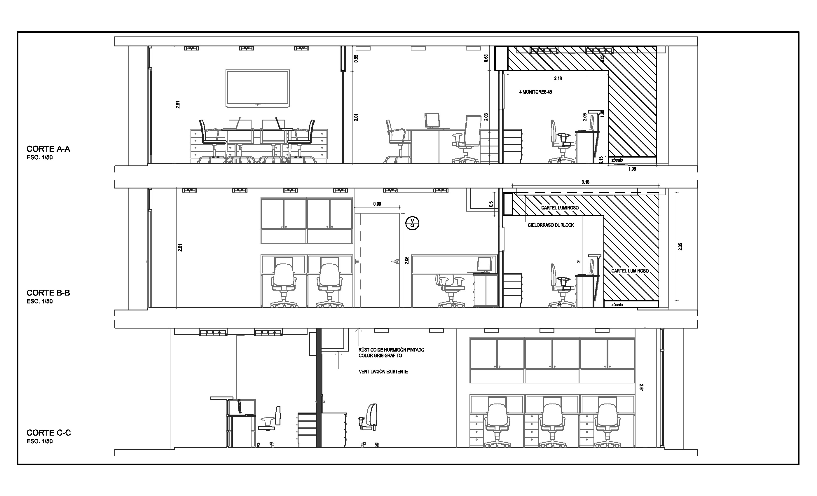
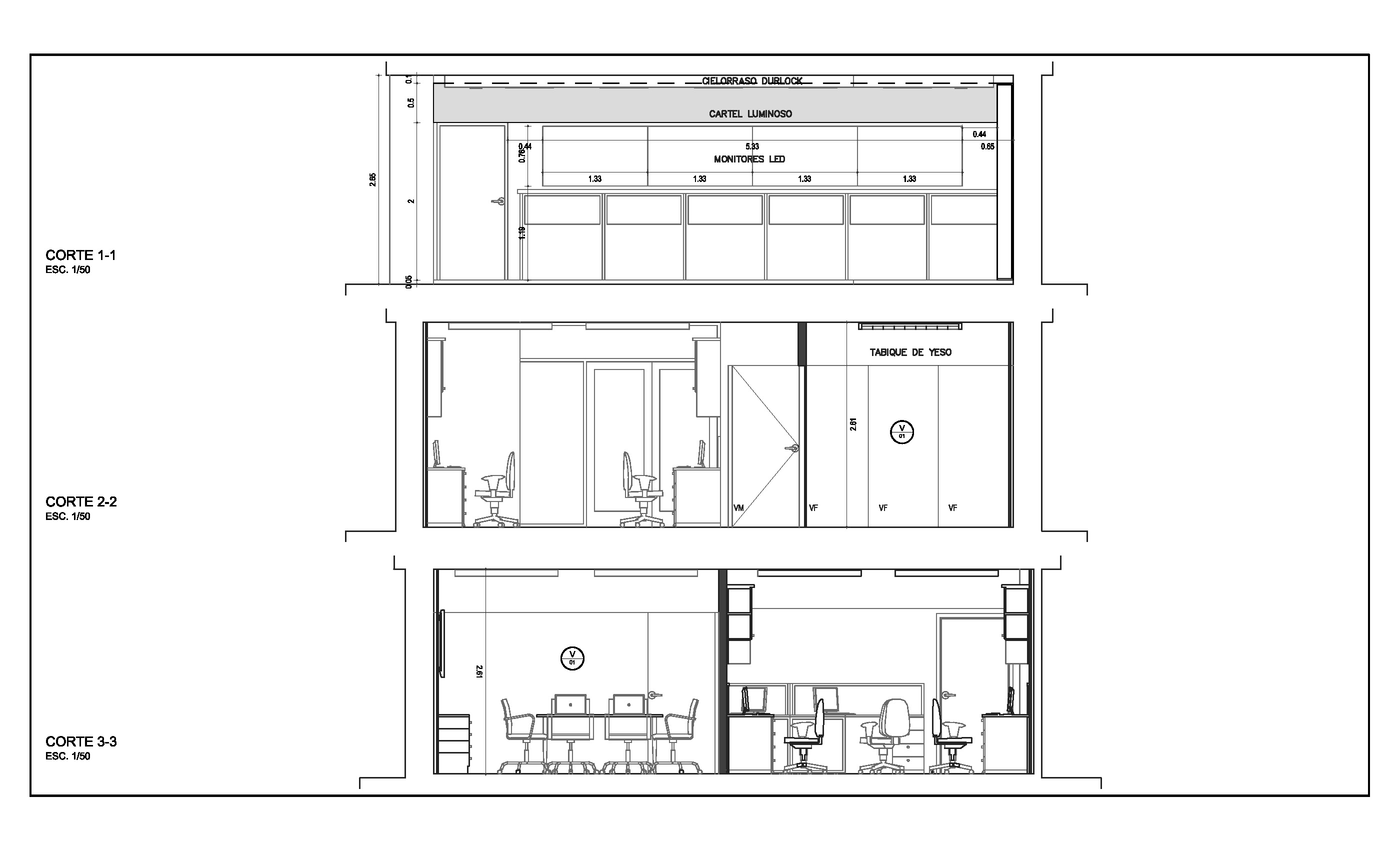
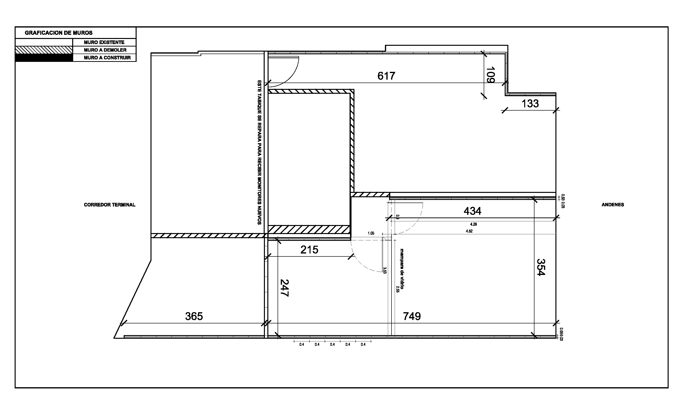
该委员会包括合并位于蒙得维的亚公共汽车终点站的该公司的两个当地办事处。办事处应包括公共和私营部门的服务,连接公共汽车的平台。这项工作将在短时间内完成(工作22天),在夜间,各办事处应在整个工作和预算过程中运作。这导致了人们对城市物流工作的思考。
Firm MedioMundo
Type Commercial › Office
STATUS Built
YEAR 2015
SIZE 0 sqft - 1000 sqft
BUDGET $10K - 50K
keywords:architecture, architecture news, interiors, interior design, portfolio, spec, brands, marketplace, products Oficina Colonia Express
关键词:建筑、建筑新闻、室内设计、组合、规格、品牌、市场、产品Oficina Colonia Express
客服
消息
收藏
下载
最近






















