查看完整案例


收藏

下载
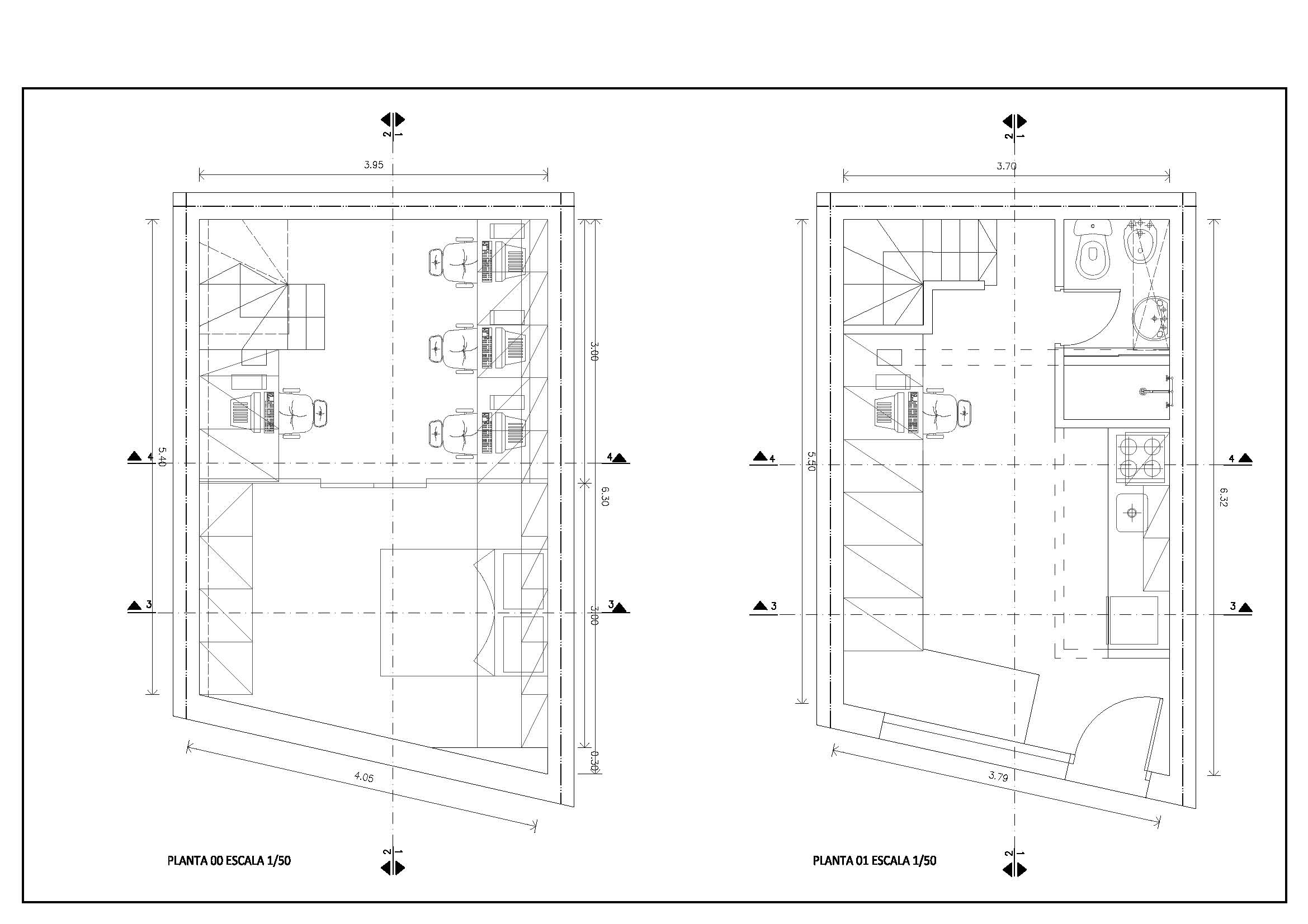
这是一个低预算的项目。这座城市一座小建筑的一个单元,位于一楼,面向行人,由一层半地下室和一层楼组成,面向两层间共44平方米的行人。这两个工厂都没有内部隔断,尽管空间的分配机会不多,因为决定因素是卫生设施的位置。半地下室应该有居住的条件,必须放在地面上,通往街道、浴室和厨房。
Firm MedioMundo
Type Commercial › Office Residential › Apartment Private House
STATUS Built
YEAR 2012
SIZE 0 sqft - 1000 sqft
BUDGET $10K - 50K
keywords:architecture, architecture news, interiors, interior design, portfolio, spec, brands, marketplace, products Apartamento Estudio
关键词:建筑,建筑新闻,室内设计,组合,规格,品牌,市场,产品
客服
消息
收藏
下载
最近


















