查看完整案例


收藏

下载
© Seth Powers
塞斯权力
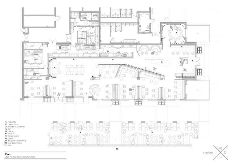
架构师提供的文本描述。这家餐厅坐落在上海郊区,位于新成立的迪斯尼小镇上,从一个大湖的内部可以看到风景。
Text description provided by the architects. The restaurant sits in the outskirts of Shanghai in the newly formed Disney town, with views from within over a large lake.
占据一个混凝土框架建筑,设计寻求占领这个平庸的框架;暴露板,柱和管道工程,而在某些地区的诚实背景用抹灰和铺层。
Occupying a concrete framed building the design seeks to occupy this banal framework; exposing slabs, columns and ductwork whilst shrouding the honest backdrop in certain areas with planes of plaster and ply.
© Seth Powers
塞斯权力
中央白色天花板平面组织餐饮空间,从内面对餐厅的看法和向外的看法,向外的湖外。内部采用深色皮革和黑色桌子的语言,与白色天花板平面相抵。而外面有深红色温暖的皮革,仔细暴露和整齐地完成了上面的导管工作。
A central white ceiling plane organises the dining space dividing between inward facing with restaurant views and outward with views towards the lake outside. The inner adopts a language of dark leather and dark tables offsetting against the white ceiling plane. Whilst the outward has deep red warm leather with carefully exposed and neatly finished ductwork above.
© Seth Powers
塞斯权力
白色天花板平面弯曲到餐厅空间的另一端的墙壁,用一种梯度的白色油漆将铺布和石膏混合在一起。
The white ceiling plane curves to wall at the far end of the restaurant space, with a gradient white paint that blends ply and plaster together.
© Seth Powers
塞斯权力
一个私人餐厅是完全封闭的这种方法,与切口在形式,创造门窗开口,忽略了僵硬的径向肋骨,使房间的形式。
A private dining room is fully enclosed with this method, with incisions in the form to create door and window openings that ignore the rigor of radial ribs that give the room form.
© Seth Powers
塞斯权力
© Seth Powers
塞斯权力
照明装置是专门为该项目开发的;一个精心平衡的高度可调滑轮灯;铸造混凝土配重,铸造树脂下降吊坠与黄铜罩扩散的COB LED内。
Lighting fixtures were developed especially for the project; a carefully balanced height adjustable pulley light; cast concrete counterweight, cast resin drop pendant with a brass cowl diffused COB LED within.
© Seth Powers
塞斯权力
Architects Atelier INDJ
Location Shanghai, China
Category Interiors Architecture
Design Team Ian Douglas-Jones, Calvin Zhou, Lynn Xu, YimingYang
Area 446.0 m2
Project Year 2016
Photographs Seth Powers
客服
消息
收藏
下载
最近

























