查看完整案例


收藏

下载
© Hannah Anthonysz
c.汉娜·安托尼斯兹
架构师提供的文本描述。寄予厚望
Text description provided by the architects. Great Expectations
当你进入荷兰最大的建筑德鹿特丹250平方米的阁楼(由OMA/Rem Koolhaas设计)时,在第43层143米的高度,你会怎么想?从空气中看到的鹿特丹,到处都是流经市中心的水。总长25米的玻璃幕墙从地板一直延伸到天花板,让您可以看到Maas河,流经城市,驶向鹿特丹港。你将俯视伊拉斯谟大桥(由联合国工作室设计),马克塔尔(由MVRDV设计),市中心,德尔夫特,在晴朗的一天,甚至海牙也是视图的一部分。
What would you expect, when entering a 250 m2 loft at De Rotterdam, the biggest building of The Netherlands, (designed by OMA/Rem Koolhaas), at the height of 143 meters, on the 43rd floor? Rotterdam seen from the air shows the omnipresence of water flowing through the city centre. The 25 meter total glass façade stretching from floor to ceiling, offers you a view of the Maas river, flowing through the city towards the Rotterdam harbour. You will look down upon the Erasmus Bridge (designed by UN Studio), the Markthal (designed by MVRDV), the city centre, Delft and on a clear day even The Hague is part of the view.
Existing Situation
现状
像河一样流动
Flow like the river
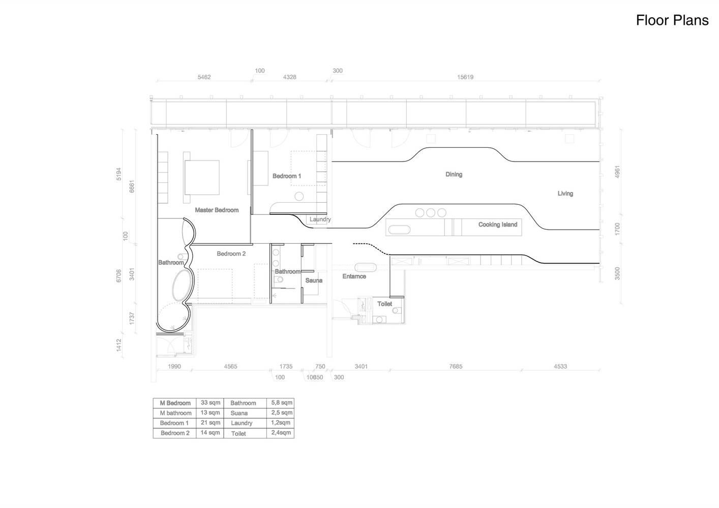
假设你爬上143米高,进入一个35米宽的起居室,可以看到鹿特丹城市景观的全景。哪个内部可以与这种压倒性的观点相匹配?从上面你会发现城市是流动的:水是城市的重要组成部分。我们把“Flow”作为室内设计语言。我们用它来做波浪形的地板和天花板图案,还有一个20米长的弯曲胡桃木墙。有了这些姿态,我们能够创造一个大的开放的150平方米的生活区和宏伟的,并创造了在这个开放的空间,以及亲密的地方。弯曲的胡桃木墙隐藏了所有的生活必需品,如电视和储藏室,以及隐藏的入口处卧室。为了避免巨大的玻璃墙引发对开放空间的“无保护”体验,使用了长而波纹的木质屏幕作为背景。它盖住了客厅和厨房的橱柜。它引导你到卧室区域,因为墙壁和门是卧室的一部分。一个8米长的“流动”烹饪岛将从烹饪区转变为酒吧区,并将为您提供最好的全景景观之一。这种家具是专为小规模的家庭仪式以及大型聚会活动而设计的。
Suppose you go up 143 meters high and enter a living room with a 35 meter wide panoramic view on the Rotterdam cityscape. Which interior could match this overwhelming view? From above you will discover that the city is a flow: the water is an important part of the city. We took 'flow' as a design language for the interior. We used it for wavy floor and ceiling patterns and a 20 meter long curvy walnut wooden wall. With these gestures we were able to create a big open 150 m2 living area with grandeur and create places within this open space that feel intimate as well. The curvy walnut wall hides all the living necessities such as the television and storage room, as well as hidden entrances to bedrooms. To avoid that the huge glass walls will evoke an ‘unprotected’ experience of the open space, the long wavy screen of wood is used as a background. It covers the cupboards of the living room and kitchen. It guides you to the bedroom area, as the wall and doors are part of the bedroom. An 8 meter long 'flowing' cooking island transforms from a cooking area into a bar area and will give you one of the best panoramic views. This furniture is designed for small family rituals as well as big party events.
© Hannah Anthonysz
c.汉娜·安托尼斯兹
© Hannah Anthonysz
c.汉娜·安托尼斯兹
两套公寓,一套豪华顶层公寓
Two apartments, one luxury penthouse
为了建立一个宽敞的家,两个物业合并成这一豪华顶层公寓。一套公寓被设计成一个大的起居区,包括厨房。第二套公寓包括3间卧室、2间浴室、一个按摩浴缸和一个桑拿浴室-主卧室的浴室长达6米,朝向鹿特丹港-除了主卧室的床外,还有一个按摩浴缸-一扇玻璃门,后面有半室外体验。即使是两人淋浴,你也可以欣赏风景,因为你可以一路看完13米长的浴室和卧室。
In order to create a spacious home, 2 properties are combined into this one luxury penthouse. One apartment is designed as one big living area including kitchen. The second apartment includes 3 bedrooms, 2 bathrooms, a jacuzzi and a sauna - 6 meter long bathroom for the master bedroom with a view towards the Rotterdam harbour - a jacuzzi besides the bed in the master bedroom - a glass sliding door behind for semi outside experience. Even from the 2 person shower you can enjoy the view because you can look all the way through the 13 m long bathroom and bedroom.
© Hannah Anthonysz
c.汉娜·安托尼斯兹
Architects 123DV
Location Rotterdam, The Netherlands
Category Penthouse
Design Team Samaneh Rezvani, Liong Lie, Silke Roerig, Rajiv Sewtahal, Jasper Polak
Area 250.0 sqm
Project Year 2015
Manufacturers Loading...
客服
消息
收藏
下载
最近































