查看完整案例


收藏

下载
© Daisuke Shima
c.Daisuke Shima
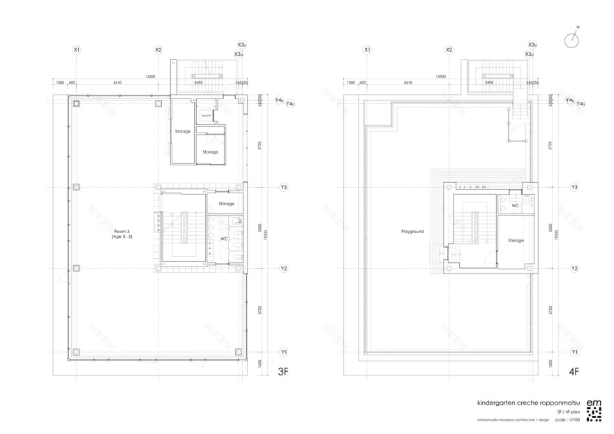
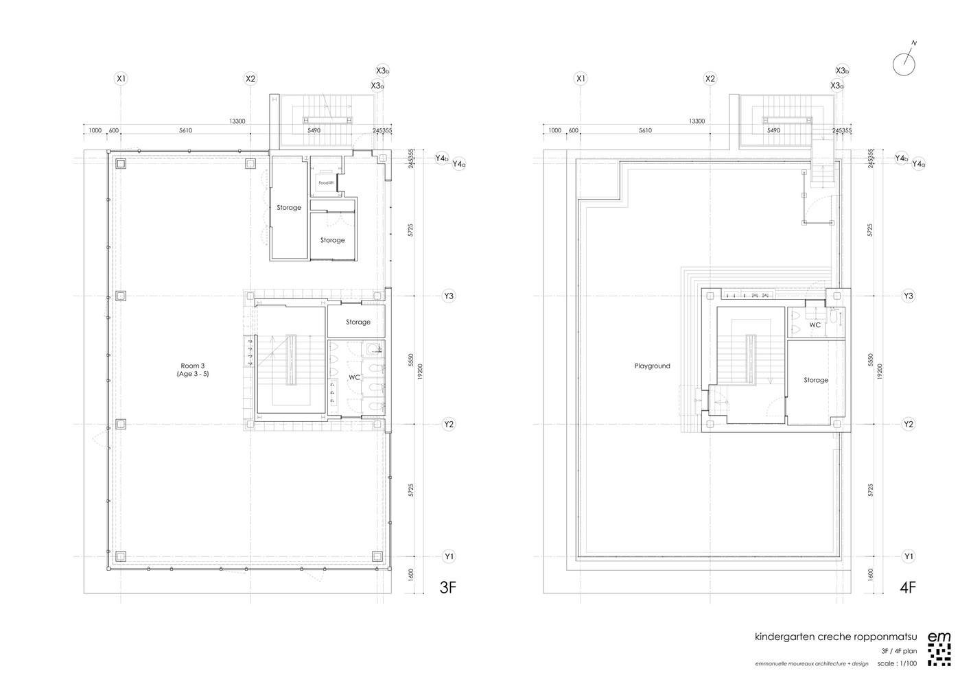
架构师提供的文本描述。托儿所是一所位于福冈市居民区的幼儿园,可容纳90名0至5岁的儿童。伊曼纽尔设计了建筑、室内空间、标识和图形标志,并设想开设一所新幼儿园,让孩子们在心灵和身体上自由成长。在五颜六色的树林后面跑来跑去,这所幼儿园让孩子们有机会通过在任何地方感受到多种颜色来培养丰富的情感。
Text description provided by the architects. Creche Ropponmatsu is a kindergarten located in a residential area in Fukuoka city, accepting capacity of 90 children, age between 0 to 5 years old. Emmanuelle designed the architecture, interior space, logos and graphical signage, with a vision to open a new kindergarten where children can grow up freely in mind and body. Running behind the colorful grove, this kindergarten gives opportunity for children to raise rich sensibility by feeling many colors wherever they are.
© Daisuke Shima
c.Daisuke Shima
集合的颜色跳入眼睛在一个眩目,因为许多颜色是使用在正面和内部空间。在立面上,有22种颜色在63棵4米高的五颜六色树中,有节奏地伸展枝条,并将建筑物包裹起来。当给出一种开放的感觉时,用五颜六色的树木包裹它,给人一种距离感,并在视觉上以温和的姿态保护孩子。在托儿所里,墙上排列着200个彩色的25种颜色的盒子,每个盒子都属于每个孩子,用来储存他们的私人物品。每当孩子们使用他们自己的工具或者换衣服时,他们就会找到并捡起他们颜色的盒子。
Collections of colors jump into the eyes in one glace, as many colors are used in the facade and in the interior space. On the facade, there are 22 colors used in 63 multi-colored trees of 4 m in height extend the branches rhythmically and wrap the building. While giving full-sized glass with a feeling of openness, by wrapping it with colorful trees, gives a sense of distance to the outside, and visually protects the children in gentle gesture. In the nursery room, 200 colorful boxes in 25 colors are lined up on the wall, where each one of them belongs to every child to stock their personal goods. Every time children use their own tools or get changed, they find and pick up the box of their color.
© Daisuke Shima
c.Daisuke Shima
连接这4层楼的楼梯使用18种颜色,孩子们被许多颜色包围着,因为墙的颜色在楼梯上下移动时会发生变化。
The stairs that connect the 4 floors uses 18 colors, where children are surrounded by many colors as the colors of wall changes as they travel up and down the stairs.
© Daisuke Shima
c.Daisuke Shima
© Daisuke Shima
c.Daisuke Shima
五颜六色的树木也被纳入幼儿园的标志。该标志还用于其他领域,如儿童制服和公共汽车,以给人一种统一的感觉。
The colorful trees are also incorporated in the logo of the kindergarten. The logo is also used on other areas such as Children’s uniforms and bus, to give a sense of unity.
© Daisuke Shima
c.Daisuke Shima
在五颜六色的环境中消磨时间,可以最大限度地提高孩子的敏感度,激发每个孩子的个性。幼儿园周围五颜六色,五彩缤纷,色彩丰富,希望培养孩子们丰富的情感和个性。怀着这个希望,五颜六色的小树林每天都在注视着孩子们的成长。
Spending time in colorful environment helps to maximize the sensitivity of children and bring out the personality of each child. Surrounded by many colors, touching many colors, living with many colors – the kindergarten wishes to develop rich sensibilities and individuality of children. With this hope in mind, the colorful grove watches the growth of children every day.
Architects Emmanuelle Moureaux Architecture + Design
Location 2 Chome-15-5 Kusagae, Chūō-ku, Fukuoka-shi, Fukuoka-ken 810-0045, Japan
Lead Architects Emmanuelle Moureaux
Area 697.0 m2
Project Year 2017
Photographs Daisuke Shima
Category Day Care
Manufacturers Loading...
客服
消息
收藏
下载
最近















